
概况图书信息综合楼总建筑面积31266平方米,是包含图书馆、行政楼、风雨操场、网络教室、餐厅等多功能的校园综合体。基地位于校园核心区域,处在校园中心景观轴线之上,南侧为校园中心景观湖,北侧为山体公园。


挑战用地十分紧张且不规则,建筑则需容纳图书馆、办公、风雨操场等多种功能,人员流线复杂,这是本项目最大的挑战。如何弱化大体量的建筑对于南侧中心湖与北侧山体公园的空间阻断和隔离,来保持校园南北景观的延续和视线的贯通,也是亟需解决的问题。


策略借鉴传统“冷巷”的智慧,引入五个南北向的夹缝天井,将建筑体量化整为零,划分为六个条状建筑,不同的条块对应不同的功能。纵向院落也将南北向景观和视线联系起来,使建筑成为南北校园空间对话的重要媒介。同时不同功能块通过相互之间的天井院落促进自然通风采光,摒弃空调,实现低造价下的被动式环保理念。


为解决图书馆、行政楼、风雨球场三大功能块的交通和动静分区问题,在三者之间设置了一个中心共享交通体,通过这个开放式综合门厅进行分流来解决复杂流线的问题,同时将“动”的风雨球场和“静”的图书馆严格分隔开,避免相互之间的噪音干扰。


立面纵向条块在南侧保持齐平,北侧平面根据路型进行斜切和转折的变化,屋顶则通过高低起伏的折顶将几大功能体块组合成一个整体,南北立面再覆以间距、进深不等的混凝土竖向百叶,强调建筑的整体性和标志性。















项目图纸

△总平面图

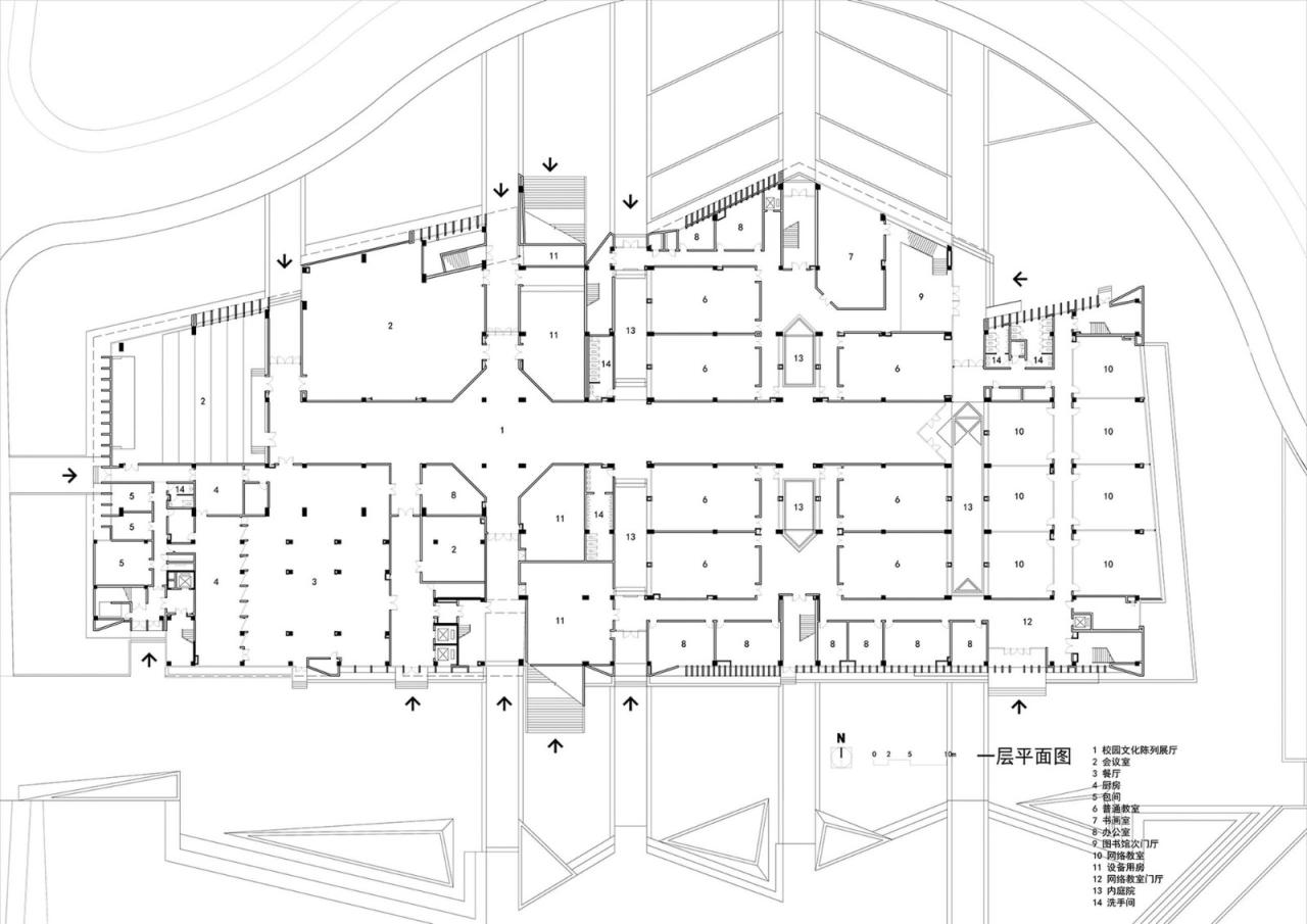
△一层平面图

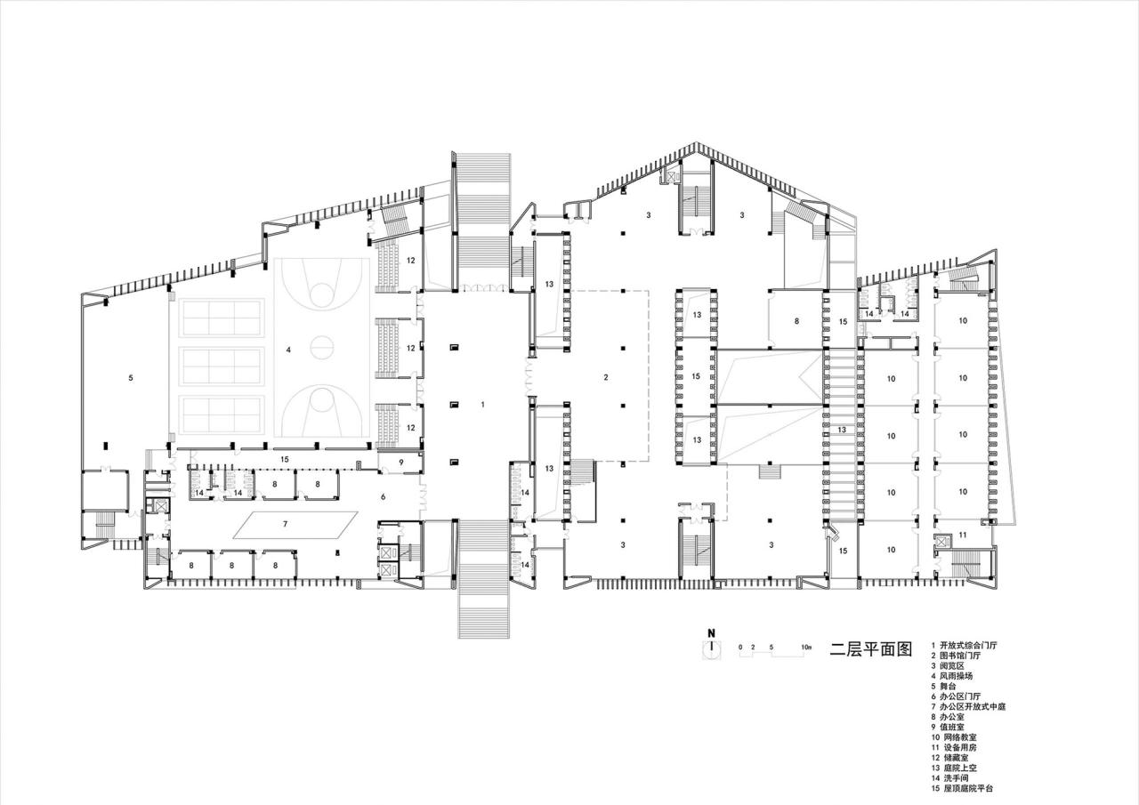
△二层平面图

△三层平面图

△立面图

△立面图

△立面图

△立面图

△剖面图

△剖面图

△分析图
项目信息
建筑师:Architectural Design and Research Institude of SCUT
面积 :31266m²
项目年份 :2020
摄影师 :SFAP
主创建筑师 :陶郅, 郭钦恩, 陈子坚
设计团队 :郭钦恩, 练文誉, 陈弢, 何岸咏
结构设计 :赖洪涛, 何智威, 林斯嘉, 熊勇
电气设计 :黄晓峰, 陈涛
给排水设计 :肖静芳, 颜正慧, 余小龙
暖通设计 :陈祖铭, 谌杰, 黄志详
景观设计 :郭钦恩, 艾扬, 黄承杰
室内设计 :郭钦恩, 谌珂, 艾扬, 黄承杰, 练文誉
委托方 :江西建设职业技术学院
地点 :中国,南昌

BIM建筑网





评论前必须登录!
注册