
项目位于日本京都的下鸭,地处鸭川西侧,向东可望见比睿山。基地周边是由传统联排别墅和被围墙和树篱围绕的宽敞豪宅组成的混合环境;而近年的高效土地使用需求还使该地区出现了重建的三层建筑。由此,项目前提旨在应对高水平的土地利用需求和更新之中、具有悠久历史的景观环境。



建筑师被当地的住宅景观所震撼,各种不同年代和尺寸的屋顶彼此相叠,与作为背景的山地景观相融,同时也是联排别墅、豪宅和现代建筑相互融为一体的环境。



因此,建筑师希望找到一种与这些相叠屋顶景观有所联系并强调放大的设计方式;并非是一个大型屋顶之下的相叠体块,而是许多小型屋顶的集合。建筑师借由几片屋顶的分割作用,将因土地使用率高而不断增长的住宅体量变得松散,使之能融入当地城镇。同时,在每片屋顶之下,建筑师还营造了一个独特空间,使得它们之间的关系也能相应浮现。



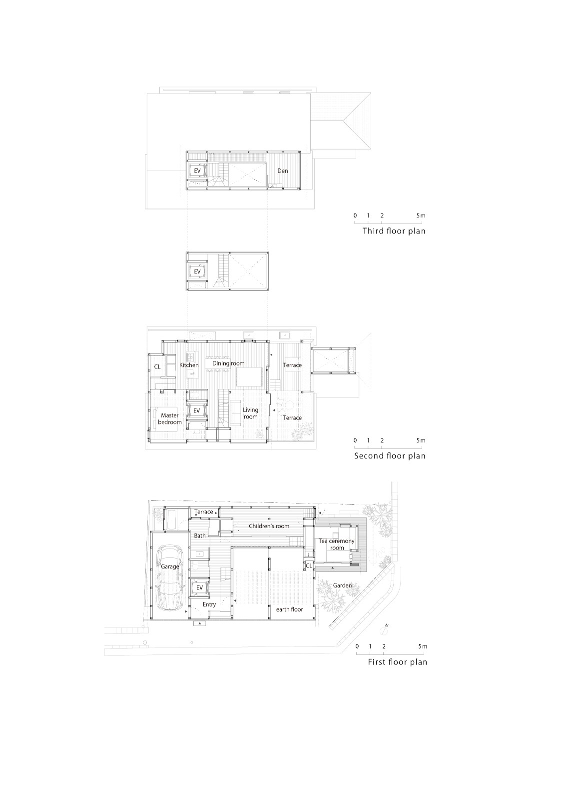
具体而言,私宅一层是茶室、儿童房和doma,即一层中一块可供人们穿鞋使用的铺砖区域;各片屋顶临街而设。茶室还与二楼的露台相连,儿童房和doma则分别与餐厅和露台联通。私宅二三层的餐厅、客厅、露台和顶楼的观景室均通过屋顶相连,使光线和空气都可流通入内(空气流通量还得到了一定的加强);而客厅的生活起居空间既可整体使用也能单独隔开。



这样一来,以屋顶为特征的各个功能空间于此相互碰撞、融合与重叠,旨在创造一个拥有多种居住场景和舒适关系的私宅空间。














项目图纸

△基地示意图

△平面图

△剖透视

△剖透视

△立面图

△爆炸图
项目信息
建筑设计:Tomohiro Hata Architect and Associates
面积 :206206.0平方米
项目年份 :2021
摄影师 :Toshiyuki Yano
厂家 : Worldfrontier
主创建筑师 :畑友洋, Misato Takagi
结构工程师 :Takashi Manda Structural Design, Takashi Manda Structural Design– Takashi Manda ,Taijiro Kato(ex-staff)
总承包商 :Arthome Co.,Ltd, Arthome Co.,Ltd – Takahisa Kato, Masato Hayashi(consultant), Shigeo Niwa
景观设计 :Sone Zoen Co.,Ltd.- Ayako Sone, Seiji Sogabe
景观建筑师 :Sone Zoen Co.,Ltd.
地点:日本,京都

BIM建筑网





评论前必须登录!
注册