
未来(Mirai)之家建立于一个别墅住宅区的转角处,占地 622 平方米,它是一座响应当地印度拉贾斯坦邦炎热的沙漠气候的文脉住宅。基于该住宅的地理位置,它的南面和东面只有少量的开放性,为了方便未来在它们的相邻处开发更多的住所。住宅的北面和西面朝向一个道路交叉口,在这两个方位坐落着更多的开放空间,如花园和场地现存树木等等。


这座住宅为一个三代同堂之家而规划设计,它共有三层,包含 4 个卧室、2 个起居室、一个健身房和一个书房。从剖面来看,房子的每个部分的层高各有不同,卧室是单层高,餐厅是双层高,起居室取其中间值为 1.5 层高,形成了许多有趣的空间体量。一个着重曲线和纹理的外墙结构包裹着房屋,沿着周边穿插有致地创造出夹缝型的半开放空间,并在面向花园的两侧形成更深长的空地。这种外墙结构能够大幅度减少热增,同时为住宅每个房间提供阴凉的开放空间。




设计出这种能够减少热增益的外墙结构为的是应对当地炎热干旱的气候,当炎夏来临,温度超过 40℃ 的天气长达八个月之久,而这种外墙可以使整座房子保持凉爽。这座雕塑般的住宅与当地环境、气候和业主的需求一一照应,在每一层楼都创造出了别具生趣的空间体量,和开阔的封闭式与半封闭式空间。



未来之家的设计旨在创造高能效空间,能够帮助降低各个房间的热增益和间接自然光。这座住宅由本土的砖、和砂岩与石灰膏所建而成,联合了当地的工匠和临近的承包商建造,并装有水循环系统,雨水收集系统和太阳能板来用于生产能源。该住宅以可持续的方式建造落地,具有气候响应性。











项目图纸

△分析图

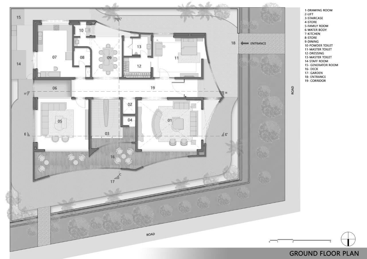
△一层平面图

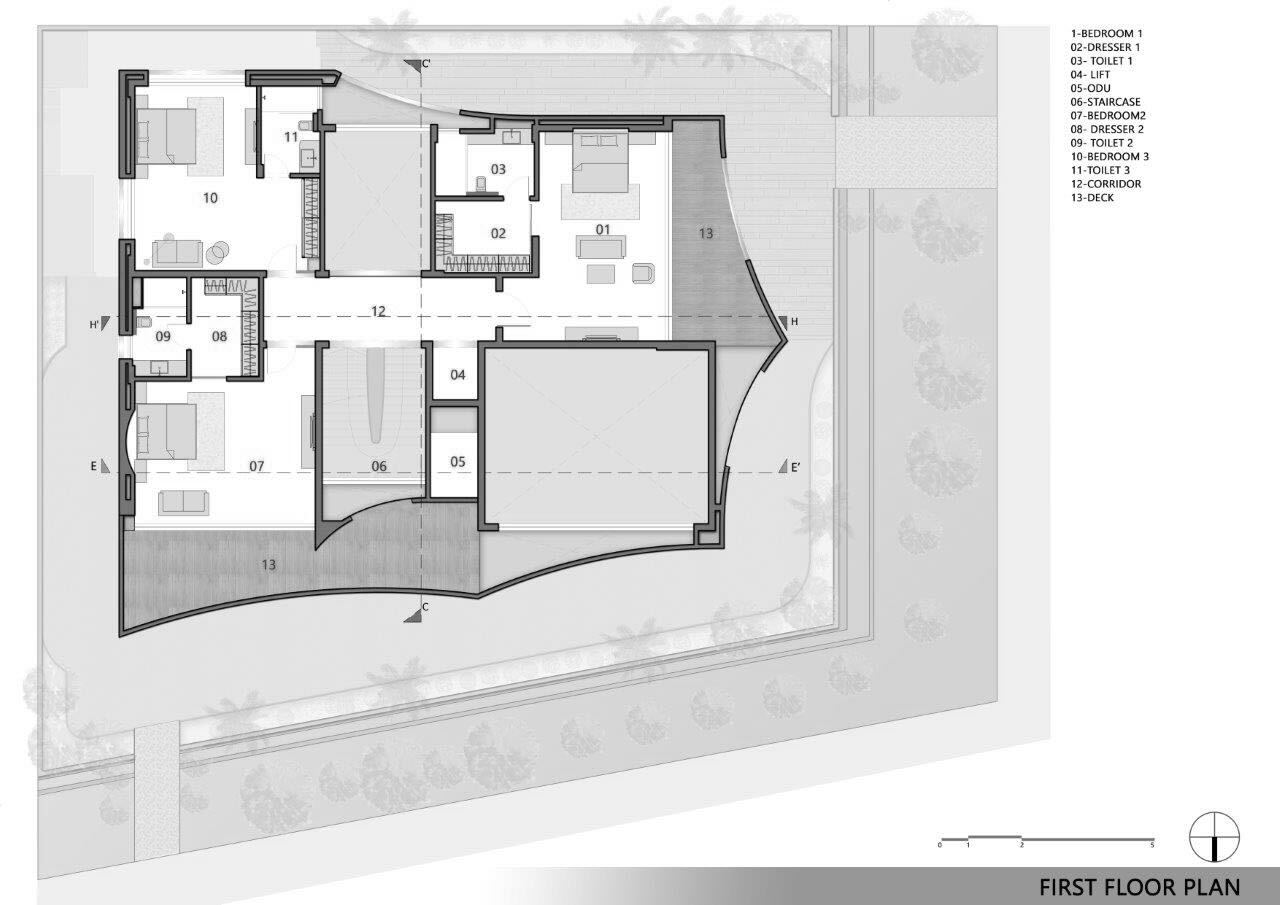
△二层平面图

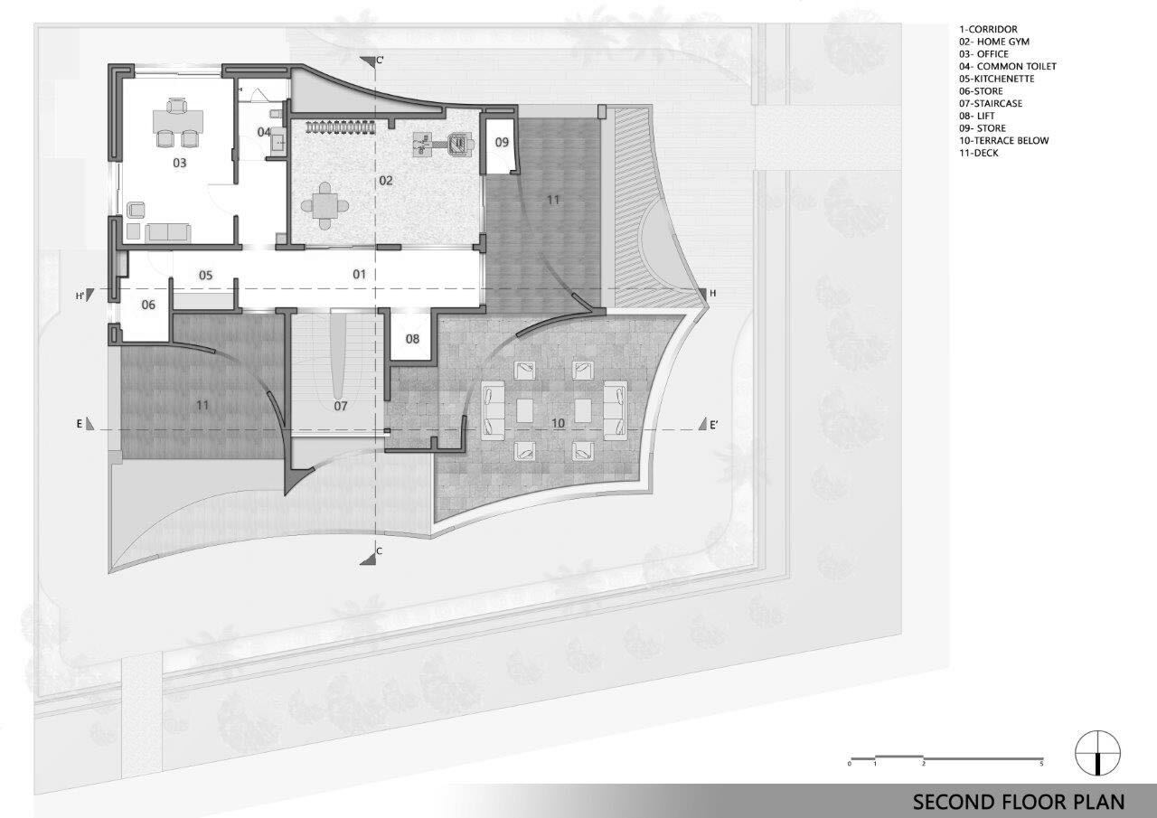
△三层平面图

△剖面图

△剖面图

△剖面图
项目信息
建筑设计:Sanjay Puri Architects
面积 :920m²
项目年份 :2022
摄影师 :Dinesh Mehta
厂家 : Burberry Grey Marble,Flex Stone,Gessi,Ledos,Modular Kitchen,Olie Living,Siematic,Suco,The Wicker Story
主持建筑师 :Sanjay Puri , Nina Puri
建筑设计 :Sanjay Puri Architects
地点 :印度,Bhilwara

BIM建筑网





评论前必须登录!
注册