
对一个问题如果有许多解决方法,其中的那种给使用者传达美和情感的,就是建筑。——路易斯.巴拉干
本案位于阜阳市颍州区。片区内拥有瑶池公园,瑶池与颍河贯通。临湖临景的优越景观环境为地块的独特性奠定了基础,而项目的规划设计把环境赋予的独特性推向了极致。

△区位图
概念
轻盈的姿态、半透明的界面,使得建筑如同氤氲的云雾从水面升起,漂浮于大地之上。
尊重人们的主观感受对空间场所的理解,建筑因此能够从固有的边界中解放出来,融入一片绿意盎然,带给人们对自然的体验和新的社区生活方式。

建筑形态生成的过程可以理解为:将体量从地面轻轻托起,体量与地面之间的空隙,成为这座建筑的首层空间。室内与室外,仅以大面积落地玻璃隔开。视觉上,内外完全贯通连续,从室内大厅到室外水景平台、再到广场,浑然成为一个整体。
漂浮的体量,使周围地景穿越建筑自由延展,在钢筋水泥的夹缝中,实现一个有诗意的场所。这是我们希望为社区生活带来的场景。避免固化的边界和功能,将束缚未来无限可能性的“形”抽离出去,引入自然本身。们因此对项目独特的景观资源获得了最充分感知。

空间 | 流线
好的城市空间会创造新的生活方式及场景,构建人与人之间新的关系和连接,这也是场所营造对未来城市生活的引领所在。


示范区设计致力于对空间场所的打造。为了回应城市与场地的需求,我们坚持以城市设计为先导的城市复兴,将部分公园和城市道路归入范畴统一设计,加强和城市之间的互动。希望可以唤起人们对这座城市的认同感,从城市展厅出发,以创新延续城市旺盛的生命力。


流线设计由精神堡垒而起,以入口广场为统一汇聚点,由水景墙转入,形成了空间尺度上的收放,也实现了由城市外部空间到内部空间的转折过度。景墙在视野上巧妙的制造了可见而不可达的心理预期感。



人们在场地内行走的空间体验是这个项目设计的重点之一,行进方式由一条曲折的景观步道舒缓地串联起整个序列性的片断。在景墙的引导下,以疏离目标、迂回接近为原则,层层递进,一步一景,原本单调乏味的线性空间也由此变得丰富而立体。



几步转折后,空间再度打开,映入视野的是超大尺度草坪和水景,销售中心似艺术品般悬浮在水上,制造令人赞叹的视觉体验。销售中心一层采用全玻璃幕墙,在室内外空间构成限定和联系,同时在两者间创建相依和谐的关系。


细部设计 | 现场控制
极简的形体及材质对构造节点的设计和现场工艺的把控提出了严苛的要求。由于本案涉及多种材料的交接,设计方利用数字模型作为幕墙定位工具,通过精准划分及拼接定位,对接施工方以保证设计效果的完美实现。


由于施工工期紧迫,设计师在现场与业主及施工单位多次探讨幕墙安装方式和工艺,甚至对龙骨的排布也提出了严格的要求,目的就是为了营造一个工艺和美学的高度统一的艺术品。


在细部设计中,设计师在数字模型上反复推敲分缝效果,最终确定每块铝板和玻璃的尺寸及拼接定位与收边。不同幕墙之间统一采取抽缝的工艺处理,最终呈现出精致简洁大气的形体效果。


在材料的选择上,为了更好的体现漂浮主题,外墙选择了超白玻璃、穿孔铝板和U型玻璃三种材料。其中对穿孔铝板进行参数化设计,将阜阳山水以水墨的形势刻印在建筑上,向城市文化和环境致敬。
在孔洞尺寸的设计上,考虑日景及灯光的双重展示个性,最终选用20mm,15mm,10mm的规格进行排列,呈现出透彻到朦胧的多层视觉效果。



△穿孔幕墙图
灯光
灯光邂逅水景,科技与创意结合,光电幕墙聚焦入口空间,各种景观元素围合界定内外部空间。
在夜幕降临时三种幕墙在灯光的衬托下开始彰显各自的性格,或张扬或内敛,相互依存,协和共生。通过精细化处理凹槽等细部做法,实现了远有三重立体、近见阴影韵律细节的效果,就像三重乐器在半空中交相呼应,演奏美妙的都市乐章。



项目图纸

△总平面图

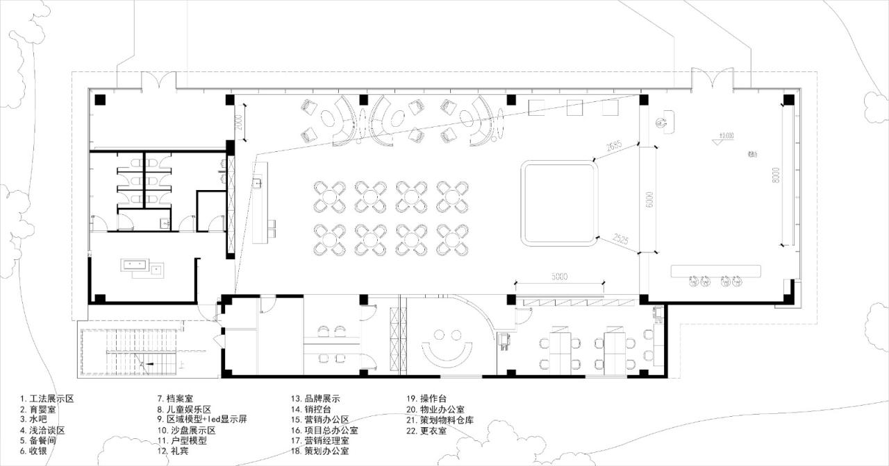
△一层平面图

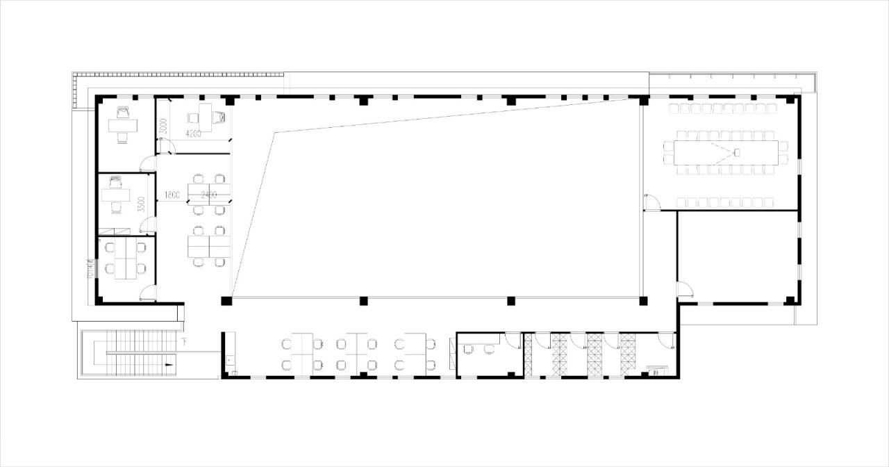
△二层平面图

△立面图

△立面图
项目信息
开发业主:中梁控股集团
项目地点:安徽省阜阳市
项目功能:住宅、底商
项目面积:309509m²
容积率:2.4
主持设计师:顾子元
建筑设计团队:上海华策建筑设计事务所有限公司建筑二所
设计时间:2021.3
施工时间:2021.5
摄影团队:桔伴视觉-左斯洋
建设单位:阜阳市颍荣企业管理咨询有限公司
景观设计团队:上海集塔景观建筑设计有限公司

BIM建筑网





评论前必须登录!
注册