
2009 年,卡拉柯伊港 5 号转口港被分配给 Mimar Sinan 美术大学,大学将其改造成伊斯坦布尔的绘画与雕塑美术馆,继而赋予场地清晰的公共使用功能。在这之前,尽管该基址位于城市中心的重要区域,却几乎没有任何的社交属性。因此,该项目意在建造一座独创的、高质量博物馆,以收藏数千件的珍贵作品,包括从奥斯曼帝国晚期到现代土耳其绘画的重要作品。

Emre Arolat Architects 作为项目的委托建筑事务所,在设计过程中的初始调研阶段就研习了该地区的物理和社会历史。在这框架之中,转口港和办公大楼自 1950 年代末就在视觉记忆中占据特殊位置,脱颖而出,超越了该地区作为港口和工业地区的身份;而几个世纪以来,该地区也一直与城市的其他区域有所差异。因此,建筑师强调了保护这些建筑的重要性,它们的规模和结构特征都是非常突出的;特别是转口建筑在平面上线性重复的水平几何形状钢筋混凝土,是一个最值得关注的特征,而建筑师主要的设计目标之一就是延续这一要素。由此,建筑师设计了一个三维网格结构,新博物馆的画廊将被放置其中,从而在拆除墙壁和地板的同时,较大程度地保留建筑的钢筋混凝土承重系统。


而在美术馆的展陈方面,建筑师考虑到随着时间的推移,展出作品会根据策展方式的变化而分类,以根据空间的使用方式进行组团和分配。因此,项目目标便是根据这种建筑类型的各种场景使变化的主题成为可能。



建筑师在透明立面的设计上,并未采用传统的框架玻璃方案来覆盖作品,以保护其免受外在元素的影响,而是采用了过去结构工业中的原始系统。这些画廊的组织方式部分相交、部分相隔,但都通过全新打造的通道和桥梁相互连接。这样一来,画廊之间的界面就形成了一种环境,提供了意想不到的视角,使观众能在纯净环境中与作品建立纯粹的关系,同时也牵涉画廊与城市之间的联系纽带。



在转口大楼旁、沿 Meclis-i Mebusan 大道一侧的狭长办公结构,其承重系统有着严重的弱点,尤其是原始外墙。因此,建筑师计划用类似的记忆感觉对其进行重建。在这部分内形成的三维空间使入口和扩散空间被工作室和公共功能所丰富。建筑师还通过尽可能渗透的有效策略对底层部分进行处理,以加强该结构与周围其他建筑物和开放空间的连接关系。


建筑师希望所有的这些结构特征都将有助于伊斯坦布尔 Mimar Sinan 美术大学绘画与雕塑美术馆在城市文化景观中构建一个全新、原始且清新的中心地带。








项目图纸

△基地示意图

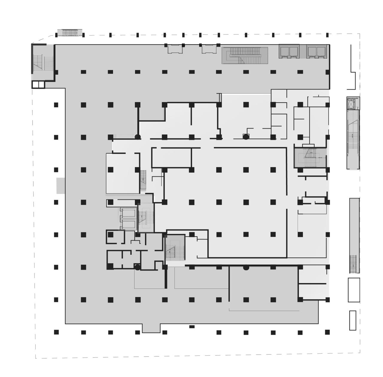
一层平面图

△二层平面图

△四层平面图

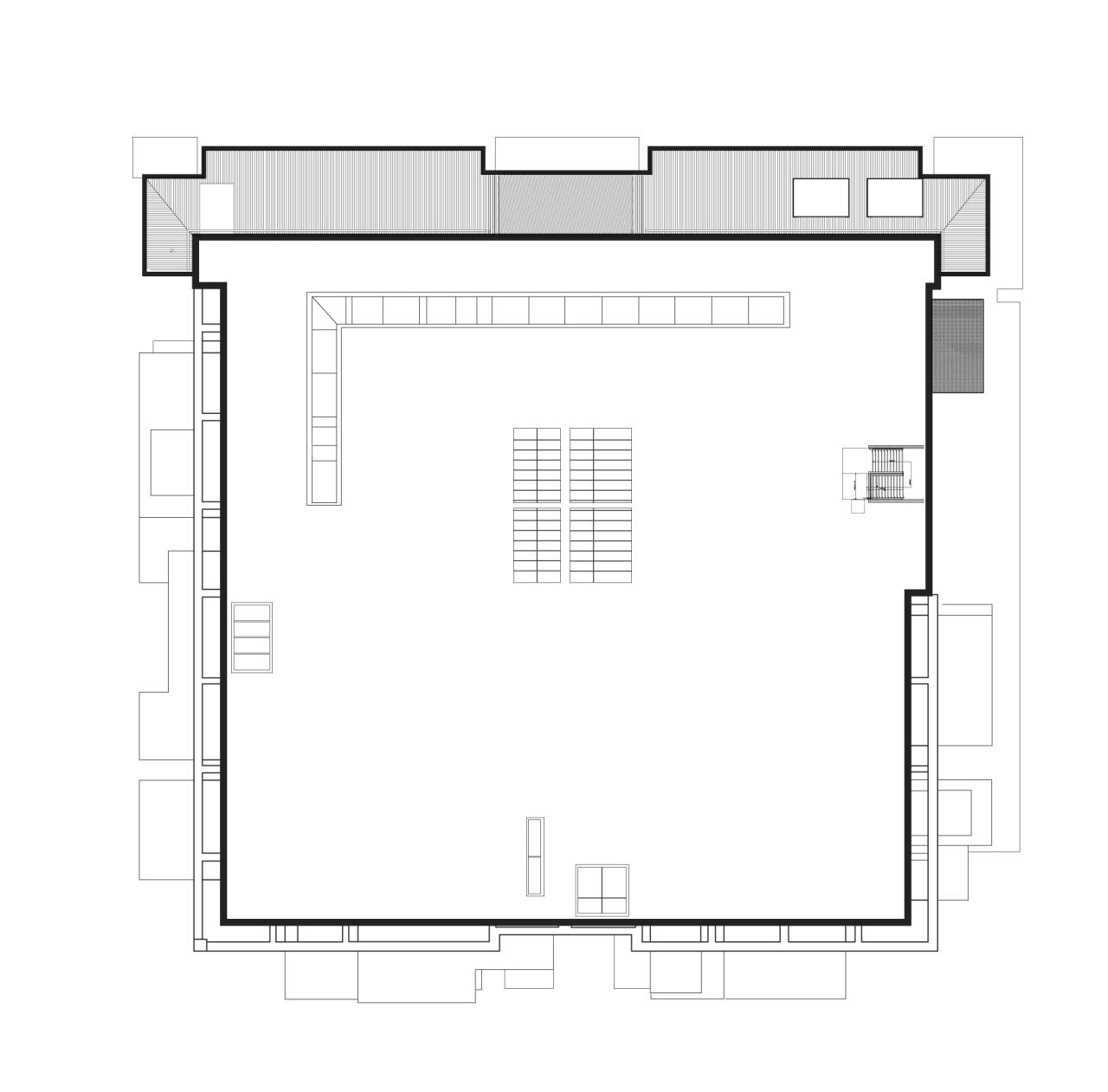
△屋顶平面图

△剖透视

△手绘分析图

△手绘分析图

△手绘透视图

△手绘透视图
项目信息
建筑设计:EAA – Emre Arolat Architecture
面积:2008720087.0平方米
项目年份:2022
摄影师:Thomas Mayer
厂家: Abb Electrification,Jotun,Kasso

BIM建筑网





评论前必须登录!
注册