
在武汉金地·国际城示范区项目里提出了一个「MiniTown微城邦理念」,以小见大的方式将城市生活浓缩于此。对于周边配套尚未完善的城市新区而言,用城市迷你化的方式设计能给予业主最佳的人居体验。




整体设计是以景观主题公园为主线索展开,建筑则隐藏其中,同时也将公园划分为:红土质地的下沉“聚” 网球场;台地瀑布雨林;承载城市生活的艺术园林等若干主题分区。由低到高,由老到新,建筑空间就像是在雨林之中生长出来的“生命”。


建筑一、二层部分采用经典的褐石学院风,将体块打碎,穿插布置在公园之中,红色的砖石拼接,与景观红场的效果相得益彰,共生共融。建筑三层以上的高区部分则重点关注城市远看效果,让人们从地铁站台上就能放眼识别社区的独特性,因此采用未来感强的现代建筑大体量呈现,但也考虑与底部“拱券”相呼应,形成向天空生长的态势。



建筑本身通过立面尺度的把控、表皮肌理的设计,一层运用褐石砖、二、三层运用白色现代铝板进行立面空间分割,呈现建筑轻奢质感的同时使场地具有辨识度,让路过的行人不由地想对建筑内部空间一探究竟。红砖金边,拱廊相接,在古典与未来的交映中充满了浓浓的文化与学术气息。顶部及边缘饰以淡金色金属格栅,阳光穿透其中会呈现出一缕缕的光柱,空气中的灰尘和水汽会形成“胶体”,形成科学角度讲学名是“丁达尔光”的效应,为建筑带来神圣静谧的感觉。















项目图纸

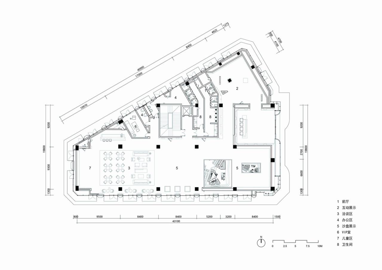
△一层平面图

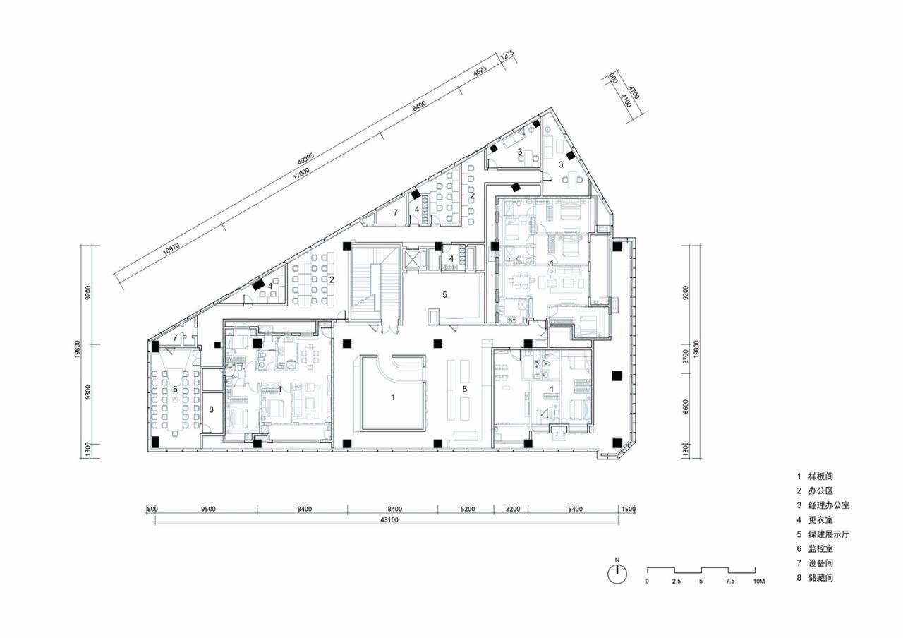
△二层平面图

△东立面图

△南立面图

△西立面图

△北立面图

△爆炸图
项目信息
项目名称:武汉金地·国际城示范区
项目具体地址:中国·湖北·武汉·中法半岛小镇
占地面积:8000平方米
建筑面积:1800平方米
设计时间:2021年6月
完成时间:2022年5月
设计方:PTA上海柏涛
主创建筑师:余小雷
设计团队:谢力墨,刘玥,翁金鑫,徐超,祝诗琪,高明扬,徐硕,王冠
业主:金地集团
景观设计:伍道建筑景观设计有限公司
室内设计:DOME&ASSOCIATES董世建筑
施工图:上海联创设计集团股份有限公司
照明设计:弗思特建筑科技有限公司"
摄影师:赵奕龙
主要材料:铝板、镜面不锈钢、耐候钢、面砖

BIM建筑网





评论前必须登录!
注册