
楔子
凤凰新城位于常州市天宁区东部,这里曾是一片老工业区,前后被列入江苏老工业区改造的综合试验区和常州产城融合示范区试点。其中以常药、四药为龙头的医药产值占常州全市的15%,上药集团常州药业总部的新建,是区域转型的关键一环。
01 项目背景
作为项目主体的上药集团常州药业是常州龙头药企,集药品研发与制造、分销和零售为一体。经历多次重组与扩展,位于市中心的原办公楼已无法满足目前的办公需求,亟需搬迁新址。在区域转型提升的契机下,上药常药商务中心项目应运而生。作为常州首家药企总部综合体,容纳了办公、酒店、专家公寓、餐厅等多重总部办公功能。

△ 片区解读
如何在有限的基地内集约化设计满足多元业态的落位、打造现代医药企业形象,是本次设计的重难点。同时由于项目选址位于区域重点打造的专精特新企业集聚区,项目的落地将带动该片区整体转型提升。

△ 建设中及建成效果
02“公园中的企业总部”
基地南邻城市主干道中吴大道,东侧毗邻凤凰公园,景观资源优越。项目分二期建设,本次建设的一期工程用地约15000㎡,地上面积约5.5万㎡,总建筑面积约8万㎡。
将主塔楼东西向布置于基地西侧,面朝公园景观,较矮的副楼南北向布置,拥有更好的日照,L型围合的空间避免了自遮挡,充分向街角打开,可以将景观最大化引入基地内,打造“公园中的企业总部”。

△ 体块生成分析
连续的雨棚重塑了近人空间的尺度感,将建筑上下划分为城市感知尺度和行人感知尺度。雨棚下行人的视线通过雨棚的“引导”,更好地与公园景观互动;雨棚下通透的超白玻璃幕墙,进一步削弱了空间的视觉隔阂,将室内外空间融为一体。

03复合场景与现代企业总部
相比一般商务办公楼,企业总部承载着更多复合功能,同时不同功能上下叠加,对建筑层高,结构,流线也提出更高要求。同时,作为区域药企总部,既要满足内部办公的需求,也承载着访客、接待、会议、培训、住宿、餐饮,展示的需求。

一至四层裙房功能为大堂、银行、餐饮、员工食堂、会议室、报告厅、健身房等公共配套;西侧80米高的点式塔楼主要功能为总部各部门办公及出租办公,北侧50米高的板楼主要功能为企业自用的专家公寓和接待酒店。

△ 业态布置分析
工作与生活的平衡,符合上药集团常州药业全生命周期的企业文化,也促成新时代药企总部办公多业态交互的新面貌。
04纯净精致表皮
上药集团常州药业拥有创新、精益、包容的企业气质,建筑采用倒圆角的弧形语言,呼应“制药”和“流水线”的主题。建筑采用竖隐横明的玻璃幕墙系统,通过光洁的玻璃幕墙传递现代制药企业高科技,精细化,清澈洁净的生产氛围。

在表皮细节的处理上,通过层间凹槽内设置通风器的方式,满足日常通风换气需求。通风器暗藏在外装饰穿孔百叶内侧,与玻璃板块相结合组成标准单元板块,现场挂装。外立面除一道道雕刻的横向线条外只看到纯净的玻璃面,最大程度保证立面的完整和视觉的通透无遮挡。

△ 墙身剖面图

△ 幕墙节点大样
雨篷材质是具有未来和科技感的银色铝板,由于分格较大且反射度较高,用铝单板不容易做出平整光洁的效果,故选用更轻平整度更好的蜂窝铝板,保证近人尺度观感的流畅性。

05 办公场所体现人文关怀
办公区室内设计采用低饱和度的灰色、原木色和代表生命的绿色。设计元素提取了药品分子结构的六边形作为室内装饰元素。





室内装饰材料尽可能采用当地生产的,可回收利用的板材,打造健康、绿色、低碳的办公环境。随处可见的休息交流区和绿色植物,传递企业“合作、包容”的价值观和“健康、平衡”的理念。
06打造“In-between”过渡式景观空间

△ 空中花团
景观设计秉承“地标性总部、公园式办公”的理念。地处凤凰公园一隅,自然河道流经基地东南角,在景观节点上首先呈现的是“转角公园”,成为公园景观的延续。

基地内部景观是线性的,通过轴线的引入创造秩序感,从“自然的”递进到“几何的”的景观。景观叙事紧扣“药材”主题,通过地面和屋顶花园的苗圃植入四季药材,体现了现代医药企业与中国传统文化的传承关系。

07 结语
我们通过对企业文化的理解和挖掘,用前瞻性的设计和花园式办公场景的营造,赋能上药集团常州药业,探索医药企业总部新范式,打造“有温度”的办公社区,协同常州凤凰新城片区产业升级,成为激发片区可持续发展能量的新地标。
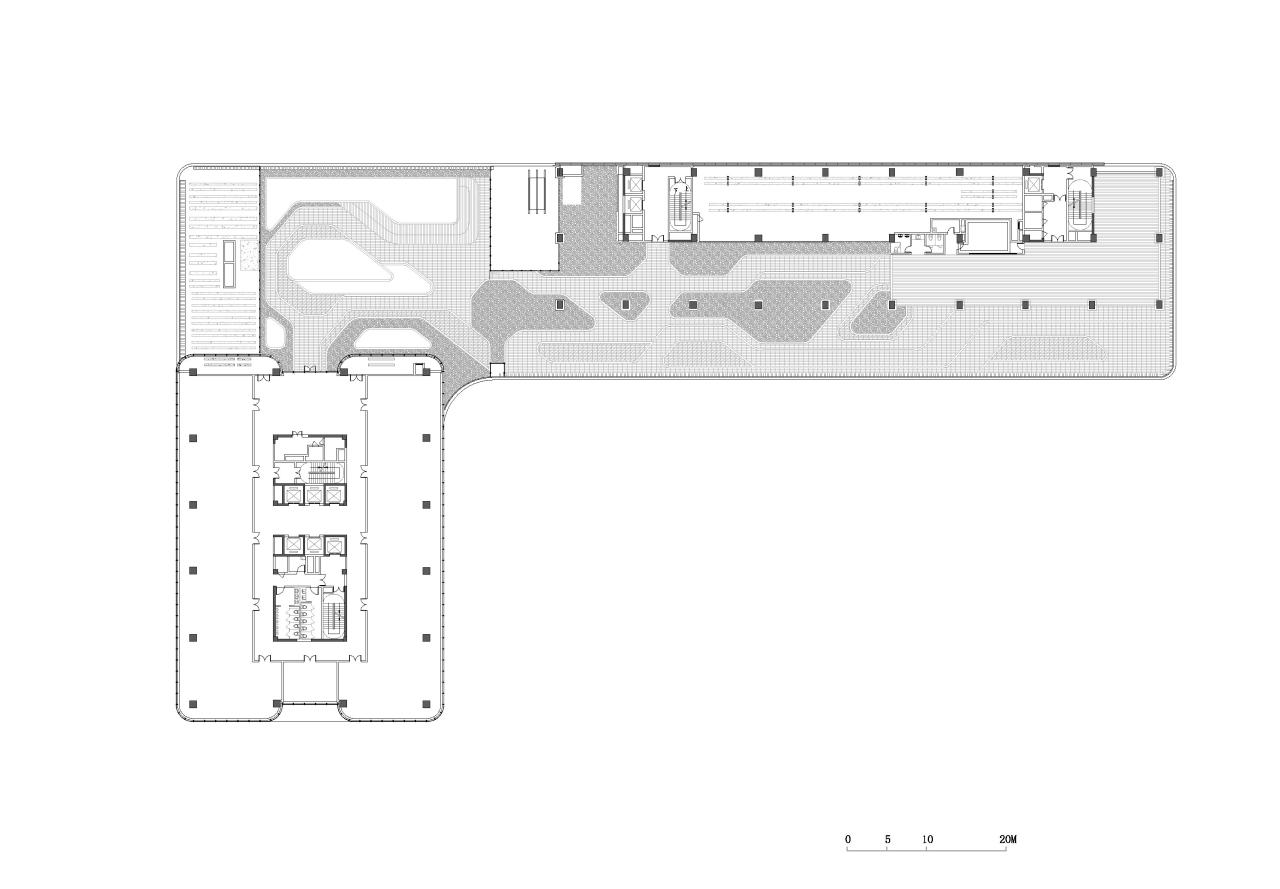
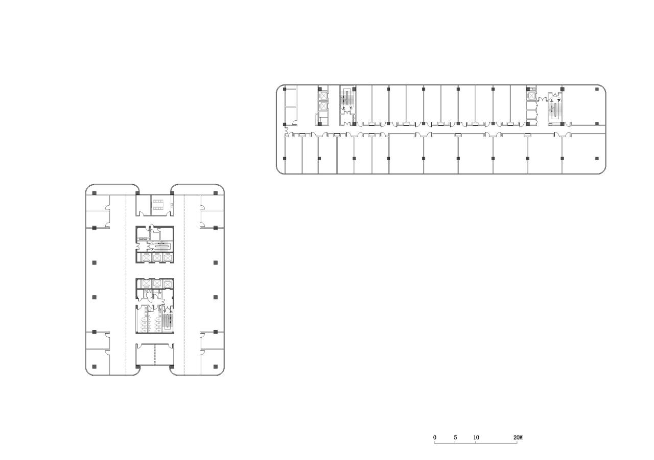
项目图纸

△总平面图

△一层平面图

△六层平面图

△标准层

△立面图

△剖面图
项目信息
项目名称:上药集团常州药业股份有限公司商务中心
项目类型:办公
业主公司:常州上药东建实业投资有限公司
设计公司:GEN简和工作室
设计时间:2020.03-2021.12
竣工时间:在建中
建筑规模:7.98万平方米
设计经理:崔晨勇
方案设计:单国伟、邹立扬、杨叶、魏元辰、杨柳、吴哲燕、王昕
施工图 :彭伏寅、马丹、张震、周志伟、毛统斌、李叶芃、张斌、童星宝、马永祯、孙锭、陈懿慧、李正岚、蒋茹芸、何军炜、董锴
室内设计:张驰、姚尧、陆金磊、李艳红、张兵、李莹、韦琦、陈佳滢、刘琳、刘志军、朱丽
景观设计:苏州朴筑景观设计有限公司

BIM建筑网





评论前必须登录!
注册