
Amare是坐落于海牙(尼德兰)的新表演艺术中心。同时也是荷兰舞蹈剧场(NDT)、荷兰海牙爱乐乐园(Residentie Orkest)、荷兰皇家音乐学院(Royal Conservatoire)以及Amare基金会的所在地。Amare完美地融入进了城市规划中,是海牙文化中心的灵魂所在。该中心是一座引人注目的且具有国际魅力的建筑,由 NOAHH、JCAU 和 NL Architects 联合为海牙市政府设计。Amare 很大一部分空间都面向公众开放,为其潜在的使用方式提供了前所未有的可能性。


多重宇宙空间Amare 对城市中心的活力和多功能性具有重要的附加值。该中心是一个可以全天候进行活动的城市综合体。建筑的下层形成了一个友好的、可通行的走廊,所有人都可以自由的通过。Amare 被设计成了一个“多重宇宙”。这是一个迷人的、多功能的、活跃的文化与社会空间,广场位于大型建筑之间,街道和小巷穿梭其中。在 Amare 内行走就宛如穿越不同的文化维度。除了四个大礼堂,还有一些小型的工作室也分布在建筑内。Amare 的独特之处就在于让学生、专业人士和公众并存于同一空间内。由于荷兰皇家音乐学院、海牙爱爱乐团与荷兰舞蹈剧场共同领域之间的内部联系,让自发的互动也成为可能。


一座优雅而精巧的建筑建筑的外立面极具特色且富有韵律。这一低调而自信的设计让建筑十分精巧。通过立面上“一系列像剧院幕布般”的开口以及宽敞的通道,城市空间肌理也在这座建筑上得以自然延续。这些有机的如树枝一般的立面结构由混凝土预制件组成。在这些立面结构的后面,音乐工作室和办公区域的竖向窗户一直从地板延伸到天花板。因此,与街道建立了良好的视线接触,在外面也可以知道里面所发生的事情。


特征因为材料和颜色的丰富多样,让 Amare 在一栋建筑内就容纳了不同的世界。不同的礼堂都有不同且可识别的外部饰面。例如,舞蹈剧场的饰面就是由竹子制成的,而音乐厅的外部就被金色的金属板所覆盖。在这些礼堂周围的都是具有相对应氛围的大厅。舞蹈剧场的煤黑色内饰参考了老 Lucent 舞蹈厅。可移动墙板的使用为舞蹈、演讲和歌剧的进行提供了优异的可变声学效果。而音乐厅的内部设计则以古典主义为主。混凝土墙面和可以调节声学效果的金色滑动移板都是独一无二的。归功于巴黎 DAP Studio 的 Federico Cruz Barney,Amare 拥有了世界级的声学效果。



可持续性发展的典范由于其在如此规模和复杂性上独一无二的表现,Amare 获得了 BREEAM“优秀”等级认证。根据 BREEAM,可持续能源与技术和满意度、质量和用户友好性同等重要。屋顶完全配备了太阳能电池板。对现有地下停车场的再利用也是一个特别之处。除了其未来价值,Amare在已有的基础上,就是一座“具有包容性的建筑”:一个真正意义上对所有“人”都开放的建筑,鸟儿和蝙蝠都可以在外立面的“树枝”结构之间筑巢。




项目图纸

△模型图

△模型图

△基地示意图

△地下一层平面图

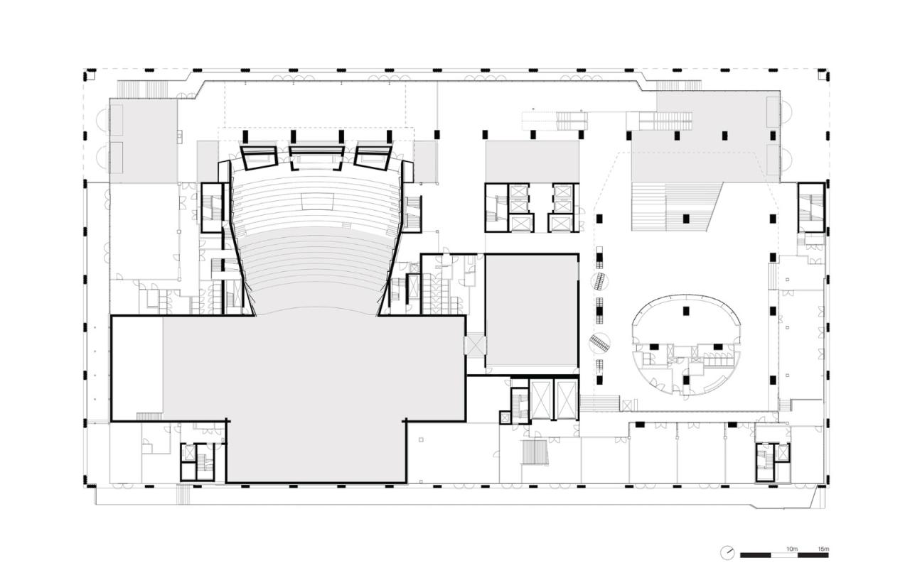
△一层平面图

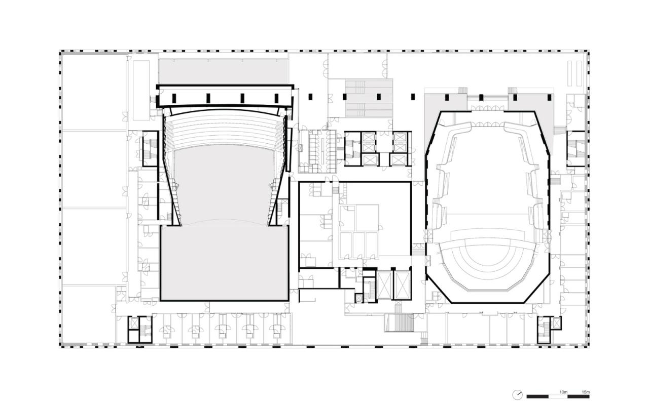
△二层平面图

△三层平面图

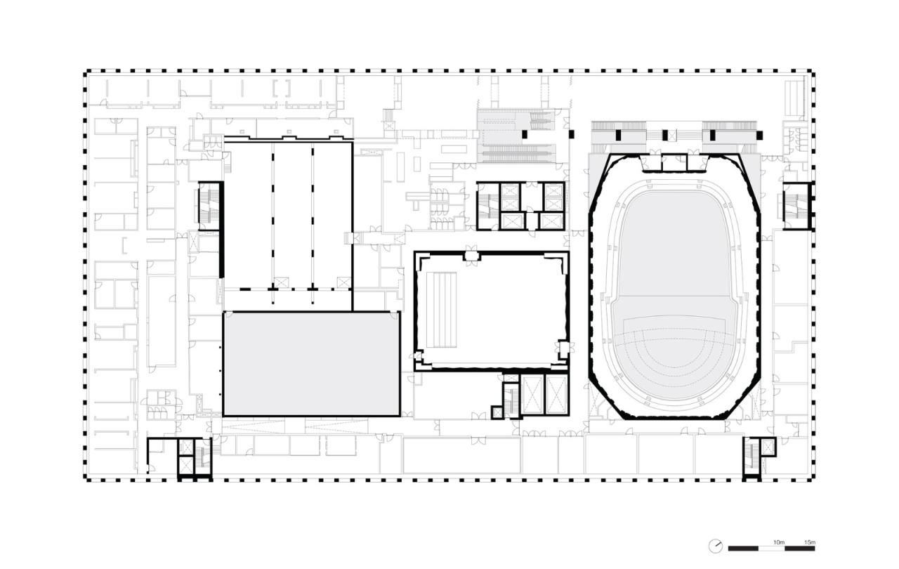
△四层平面图

△六层平面图

△剖面图

△剖面图

△剖面图
项目信息
建筑设计: NOAHH
面积 : 50000 m²
项目年份 : 2021
摄影师 :Ossip van Duivenbode, Katja Effting
厂家 : Boon Edam, Emco, Finesse, Gielissen, Harryvan, Hi-Con, Homij, Interiorworks, Intos, Metadecor, Mobelli Contract Seating, Van Keulen, Westo, Zuidkoop
主持建筑师 : NOAHH, JCAU, NL Architects
NOAHH 设计团队 : Patrick Fransen, Stephanie Lama, Pieter Benschop, Aafke de Bode, Geert Mol, Ilse Bakker, Rimaan Aldujaili, Bilal Karaburun, Elisa Zampogna, Paul van Dijk (Studio Deep Blue), Dania Di Pietro, Serena Fanelli, Barbara Busslinger, Irina Margarit, Ashkan Hashemkhani, Magdalena Nalepa, Amaia Oyarbide, Onne Walsmit, Daan van Westen, Alexander van Nalta, Albert Laarman, Reijer Pielkenrood, Loes Thijssen, Ivo Brandes, Mick Madder, Paulina Kapczynska, Marielle Wetter, Kristina Kosic, Blaz Solar, Valeria Obino, Mirce Mladenov (Renderji), Ed Both (adviesbureau Both), Laura Nazzari, , Stella Makri, Maartje Nuy, Sebastiaan Boer, Eleonora Gaudini, Valentin Kobes, Paola Rapana, Anna Odulinska, Alma Holm
JCAU 设计团队 : Jo Coenen, Thomas Offermans, Laurens Cobben (LC Arch), Xenofon Moraitis, Luciënne Bregman, Willem Lucassen, Mark Haenen, Cas Bonnema, Eline Blom, Anne-Sophie Kortman, Guido Schot, Domenico Nava, Wouter Hagers, Yuri Buteijn, Paulos Kinfu, Cees van Giessen, Javier Pinazo, Jeroen Sprangers, Sada Shirafuji en Cristina Bestebreurtje
NL 建筑师团队 : Kamiel Klaasse, Pieter Bannenberg, Walter van Dijk, Gen Yamamoto, Sarah Moeller, Kirsten Huestig, Giulia Pastore, Ernesto Yélamos Quesada
承包商 : Bouwcombinatie Cadanz (Boele & van Eesteren | Visser & Smit Bouw)
地点 : 尼德兰,Den Haag

BIM建筑网





评论前必须登录!
注册