
项目背景:“要附白鹤背,往访青羊踪”MUDA慕达建筑此次设计的“宽三堂-东方人文生活空间”,位于中国四川省成都市青羊宫旁。青羊宫历史悠久,始建于周朝,原名青羊肆,后唐僖宗于蜀中避难,以此为行宫,诏改为青羊宫并致力修建。青羊宫被誉为“川西第一道观”,也是中国著名的道教宫观之一。

设计理念:“为天下谷,常德乃足,复归于朴”设计理念来自于道家哲学经典《老子》,道家讲“谷是生之地,生之繁衍不息”。谷的内部是没有形状的,正因如此,才可以呈现出任何形状。谷的意象指向“实”之间的“虚”与“无”,使它有孕育、承载“生”的无限可能,且无法被用尽。溪/水的意象则为“谷”带来生生不息的源泉,使谷盈,善利万物,滋养生息。谷与水的意向包含了道家对世界与生命的看法与哲学观,谷与水的关系是生动的,有生命力的,且永恒的。我们提取了关于“谷”的描述进行衍生,营造虚的“谷”,并通过“水”的手法引入流动的“溪”将其演绎成建筑空间,重建场所感和叙事感。


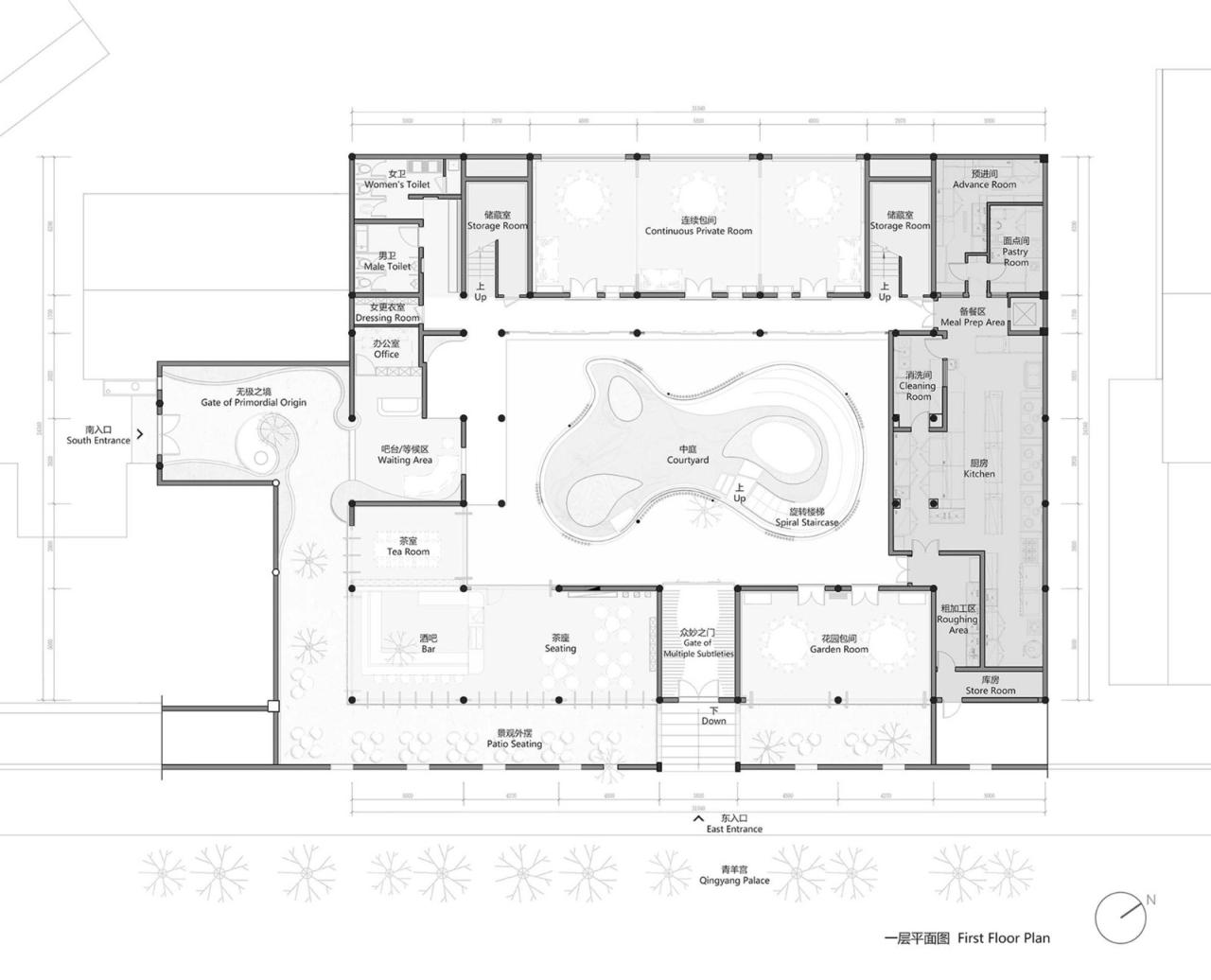
南入口:“为天下式,常德不忒,复归于无极”项目有东南两个入口,其中南入口为社会入口,位于成都市一环路,紧邻青羊宫地铁站。作为整个场域的起点,南入口取意“无极之境”。无极,指的是混沌的先天状态,无形无相,不分阴阳,为万物之始。万物生于有,有生于无,“无极之境”也寓意整个空间的开始。在熙熙攘攘的现代都市,缓缓推开两扇古朴的铜门,蜿蜒的红色景墙散发着浓郁的东方传统美学气息。红墙灰瓦,百年古树屹立其中,向内生长,引导着来者的视线,吸引人们到达“谷”的深处。



庭院:“人法地,地法天,天法道,道法自然”道家以“无为而无不为”、“反者道之动”,是道之自然。庭院的设计,作为此次项目中“谷”最为核心的体现,MUDA慕达建筑以“天圆地方”为切入点,为二层增加室外平台,边缘形成一条顺滑曲线,使用红色的玻璃栏杆将其符号化,抬头便是蓝天绿树的取景框。而一层方形的庭院则进行了造景,回应“一池三山”的意向。“天圆地方”的道,“一池三山”的法,掌控了整体的自然要素。



MUDA慕达建筑希望通过不同的造景手法,将景色入画,一步一景,移步换景。中庭水景的结构钢柱序列给游人的视线进行了空间重组,实现了步移景易;弧形旋转楼梯将一楼与二楼空间串联,二楼曲线平台实现了空间的收放,提供了与青羊宫的不同观景视角。院内造景,院外借景,窗棂对景,利用传统园林的流线组织原则使游人身处其中,处处皆是体悟。



室内空间:“楼阁宜佳客,江山入好诗”花园包间|MUDA慕达建筑希望花园包间的设计,可以与得天独厚的自然环境建立互动。包间外即是青羊宫的古塔,几百年树龄的银杏贯穿其中。空间色调以木色和白色为主,使用灵活的木格栅推拉门实现空间的通透性,内外空间相互渗透,与青羊宫景色相映成趣。



连续包间|项目中一层和二层均有连续包间,二层连续包间通过顶部坡屋顶元素塑造木纹弧顶。包间与包间通过可移动隔断来灵活划分使用,软装设计以简洁调性为主,确保空间的秩序感。木饰面与墙面深灰色软包,以及搭配的吊顶氛围灯带,使整个空间兼具合用的整体性和单独使用的独特性。


茶室|茶室的吧台空间围绕着一颗高大的银杏树,银杏树叶伸展在室内,自然与空间的界限也被打破。茶室设置三个层级的矩形镂空吊顶,空间基调以木色为主,中间区域置入发光膜作为主要照明,使空间的光氛围舒适而宁静。朝着青羊宫一侧的滑轨门可以完全旋转打开,外摆区也可作为咖啡甜品场景使用,同时也增强了室内与院外的自然景观互动。


青羊宫入口:“同谓之玄,玄之又玄,众妙之门”项目与青羊宫仅一墙之隔,东入口作为与青羊宫的衔接,取意“众妙之门”。东入口取其幽远难辨之意,赋予原本简单直接的空间以层次,形成一条连接了历史和当代的时空隧道。一侧是底蕴深厚、举步抬眼皆是时间沉淀的青羊宫,一侧是秉承了未来东方精神、表达传统文化的当代空间,“众妙之门”则实现了时间与空间的连接。


结语:“道生一,一生二,二生三,三生万物”道家“谷”的意象指向“实”之间的“虚”与“无”,透过这种虚空性,我们可以看到整个建筑的过去,现在和未来。它是以一个整体时间段的存在,而并非只是存在于某一个时间节点。这也正好印证了“太一、太谷“等东方哲学观,即从整体去看待和描述一个事物发展。谷本无形,空间应运相生。



项目图纸

△改造策略

△一层平面图

△二层平面图

△剖面图

△剖面图
项目信息
建筑设计: 慕达建筑
面积 : 900 m²
项目年份 : 2022
摄影师 :形在空间摄影
厂家 : NANOGRESS纳莱格思瓷砖, 南玻集团, 科定, 贝拉莫艺术涂料
主创建筑师 : 卢昀
设计团队 : 李爱东,吕晨宇,荣典,詹子琪,何帆,付尧
业主 : 成都宽三堂生活文化创意有限公司
照明设计顾问 : DOPI Lighting Design
结构顾问 : Yuki.Law
地点 : 中国,成都

BIM建筑网





评论前必须登录!
注册