
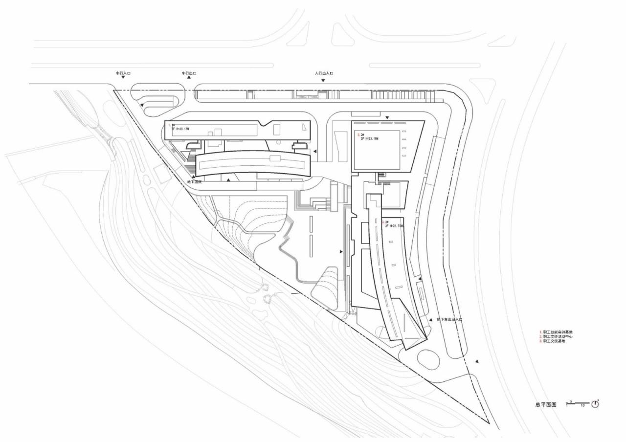
龙岩工人文化宫新址位于城东新罗区的三角形用地内,小溪河从基地西南侧流过,景色宜人。基地北侧为莲南路,东侧为东环路,两侧均紧邻高层居住区,且住区品质不高。建筑沿路分别布置1号楼(职工技能实训基地:包含职工服务大厅、职工培训教室、各类展厅及总工会办公等)与2号楼(A区职工文体活动中心:包含篮球馆、乒乓球馆、健身瑜伽馆等,B区职工交流基地:包含职工影院、报告厅等),两栋建筑成L型布局,围合形成的职工文化广场与东山湿地公园融为一体。


回应气候
龙岩当地日照时间长、气候湿热,每年台风季有长达数月的持续降雨。采用被动式设计,优化建筑的通风隔热、遮阳避雨,来提高建筑使用品质与舒适度:1号楼筑内设置通高的天井,与低层的架空空间配合,引入冷风,带走热量。南侧阳台外包裹的预制混凝土竖向遮阳构件可有效遮挡下午刺眼的夕阳,同时引入难得的晨曦。2号楼,不同尺度的体量沿基地东侧展开,并由两条不同标高的水平外廊连接。市民沿檐廊拾级而上,可由职工文化广场到达不同楼层,最终屋顶花园。廊即是水平交通,又提供了垂直联系,也为市民提供了连续的遮阳、避雨的半室外空间。


消解尺度
首层的架空空间,将建筑占据的土地尽可能归还给城市,打通了城市与湿地公园间的路径,也成为日后市民日常驻足停留的空间。将建筑上部将相对完整的体量做“镂空”处理,空中的露台尺度、位置不尽统一,有的是职工的交流场所、有的是室内功能的延伸、有的是充满绿意的层次造型。上部露台和低层架空相呼应,二者通过各种路径相联,既是功能需要也是空间情趣。




手工与低技策略
选择了两种“土味”工法,清水页岩砖墙作为外围护结构,水平向穿插可塑性很强的松木模板清水混凝土,在较强的建构逻辑下,两种主材的工艺、质感、肌理也很好的解决项目较低的造价和当地不可控的施工工艺带来的问题,同时传达出项目应有的“手工味道与工匠精神”。随着南方雨水的常年浸润,二者还会随着时间的推移逐渐展现其历久弥新的沧桑味道。广场上同样蔓铺清水页岩砖,建筑和场地融为一体,点缀其中的造价极低的竹林景观,静谧雅致。





对话的建筑
项目中大量的半室外空间。一方面消解了建筑体量、回应了城市气候、组织了各类交通,另一方面,消弭了室内与室外的边界,模糊了自然、城市、建筑、市民间的边界,营造出各种尺度、氛围的“对话”空间,市民间的对话,市民与自然的对话、建筑与城市对话无处不在,无尽的风景和故事交织相伴而生,建筑也因此生动了起来。甚至在市民触摸清水砖墙与小模板混凝土的时候,似乎也在与当时建造的工匠进行着一场跨越时空的对话。




业主告诉我们,房子建成后平均每天会有两组拍摄婚纱照的情侣出现在文化宫,很多周边住区的学生在放学后都会到文化宫逗留一会儿才会回家,这座建筑也成为了龙岩市民日常休闲打卡的目的地,慢慢融入了市民的日常生活。业主抱怨这对他们的日常管理维护工作增加了不少难度,我想作为建筑师和业主遇到这种情况也算是一种幸福的烦恼吧。
















项目图纸

▲区位示意图

▲总平面图

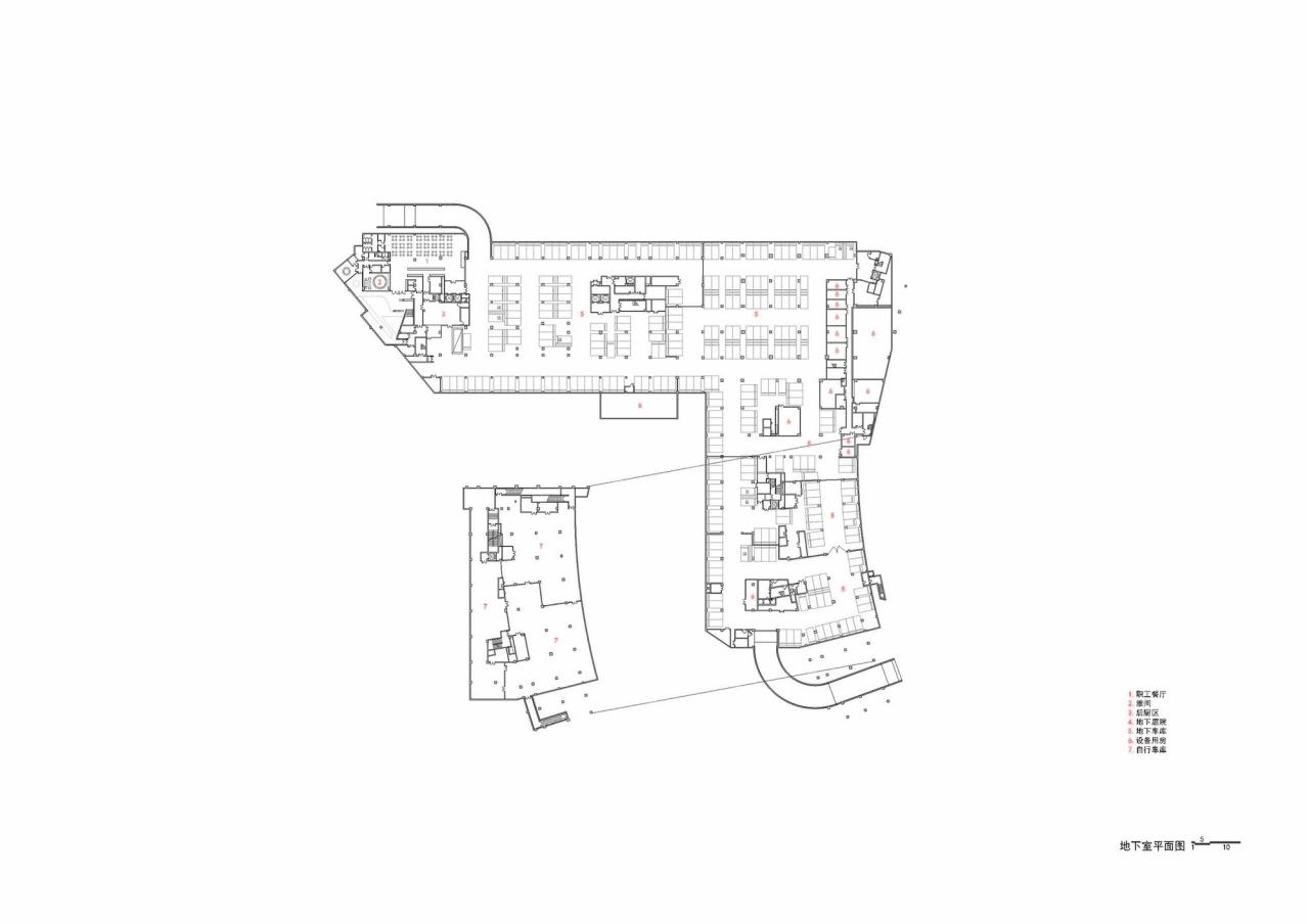
▲地下一层平面图

▲一层平面图

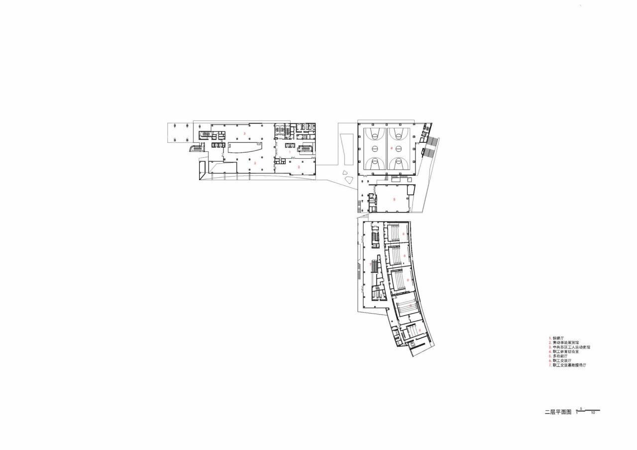
▲二层平面图

▲三层平面图

▲四层平面图

▲五层平面图

▲六层平面图

▲剖面图

▲半室外空间分布图

▲功能分区图

▲通风遮阳分析

▲墙身大样图

▲镂空砌筑墙体示意

▲小模板清水混凝土工法示意
项目信息
建筑设计:天津华汇
面积:48050 m²
项目年份:2021
摄影师:存在建筑, 魏刚, 傅凯微
总建筑师:周恺
主创建筑师:吴岳
设计团队:安喆、 张一 、王乃虎、 戴亚楠、范靓、郭恩建、安君、杨林、 解海 、汪寅光、白文宗
景观设计:吴岳、白文宗
结构设计:郭恩建
委托方:龙岩市总工会
施工方:福建九鼎建设集团有限公司
施工图设计:中国建筑上海设计研究院有限公司
地点 : 中国,龙岩市

BIM建筑网





评论前必须登录!
注册