
本项目为西安环普产业园的第三期建筑设计,为该产业园的封笔之作。一期规划为多层院落办公,二期是高层塔楼办公。三期建设受制于全区开发经济指标的控制,退距要求,仅剩1万平米的建筑面积,要满足近12万平米的开发建设,如何降低量体对环境冲击并提供良好舒适的开放尺度空间,是本项目设计的挑战。


项目综合考虑功能使用、开发时序以及新城整体天际线等各方面因素。规划北高南低,采多层庭院形式。建筑轮廓线高低起伏,统一而富有变化,呼应核心区域;不仅独立为“园”,而且向心构“城”。


我们采取结合多层与高层的设计策略,基本使用功能结合规范中对单一分区的使用面积限制,创造办公空间的单元模块。尺寸是由多样的出租单元所定义,搭配未来不同规模企业入驻的弹性变化,将模块堆栈形成立体组团。


每组团以三层为上限高度,并置共享空中中庭均质交错分布在建筑中,运用空中连廊及楼梯连接中庭内各楼层,鼓励交流并减少电梯使用频率,也可作为拓展场景使用,后疫情时代确保办公人员都能享有开放的户外空间。



整体规划设计以标准化和模数化为原则展开,高效规整的布局形态满足不同企业的需求,同时降低高楼层对园区空间的冲击。三期设计兼具多层的舒适尺度及高层的经济效率的空间,数字化、信息化、多样化的功能需求,涵容多元活动交流的平台,以及舒适便利的办公环境,成为产业园区创新发想的摇篮。









项目图纸

△基地示意图

△总平面图

△一层平面图

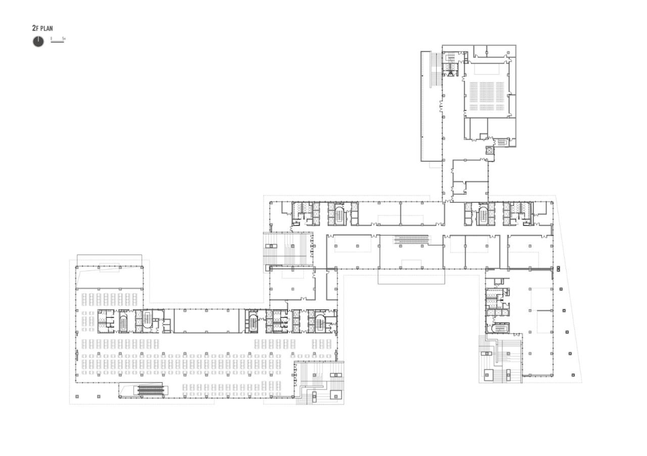
△二层平面图

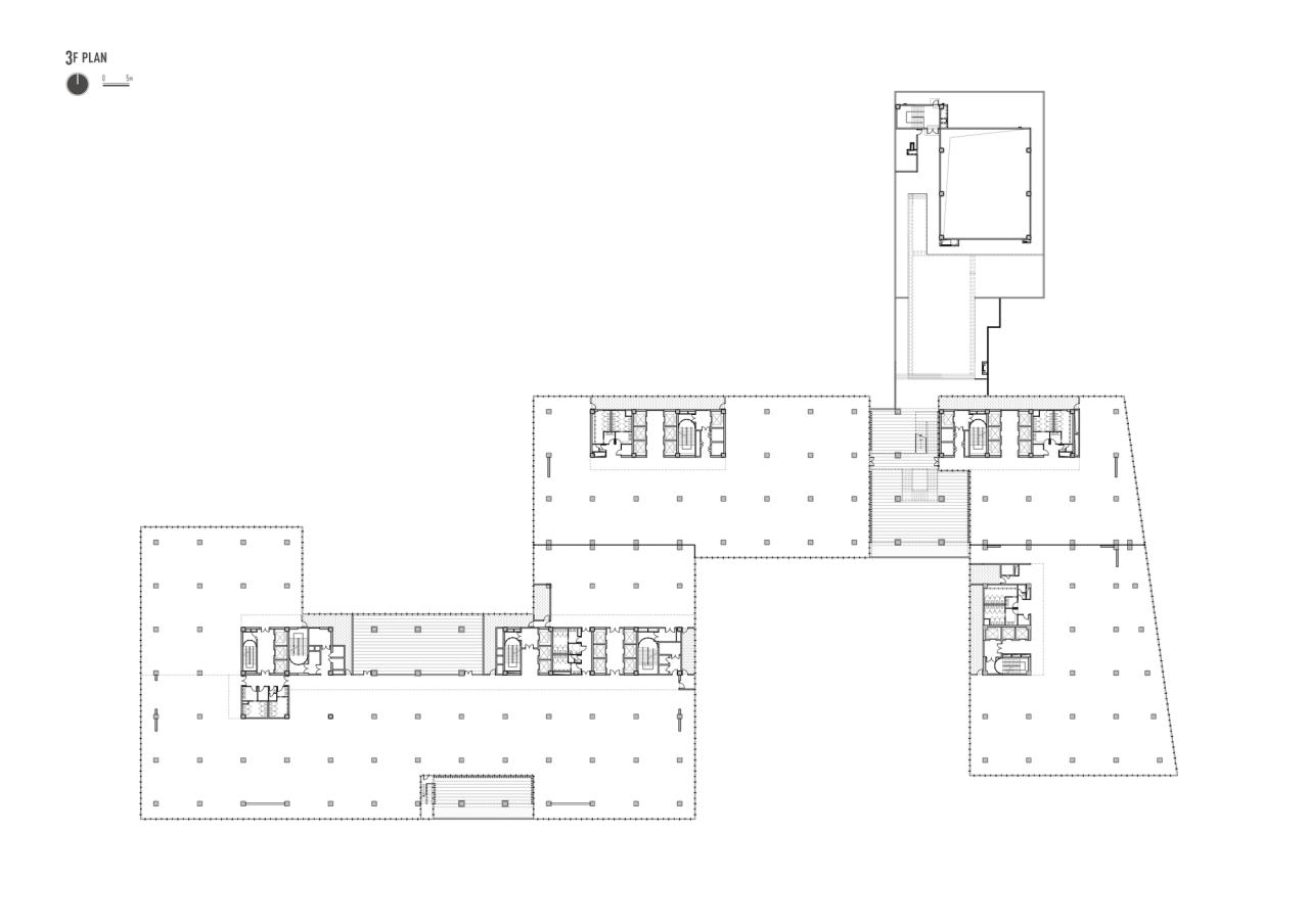
△三层平面图

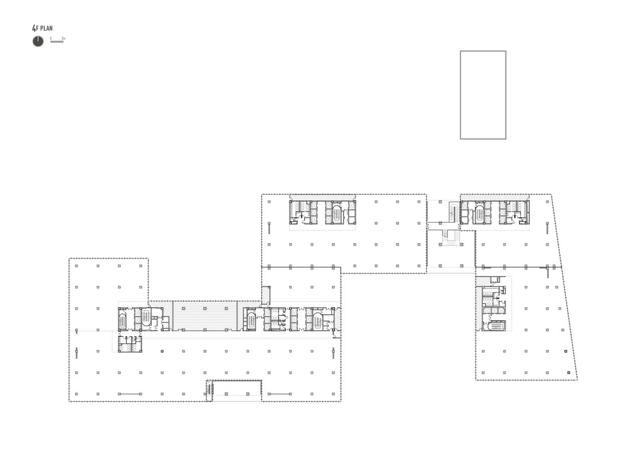
△四层平面图

△五层平面图

△高层平面图

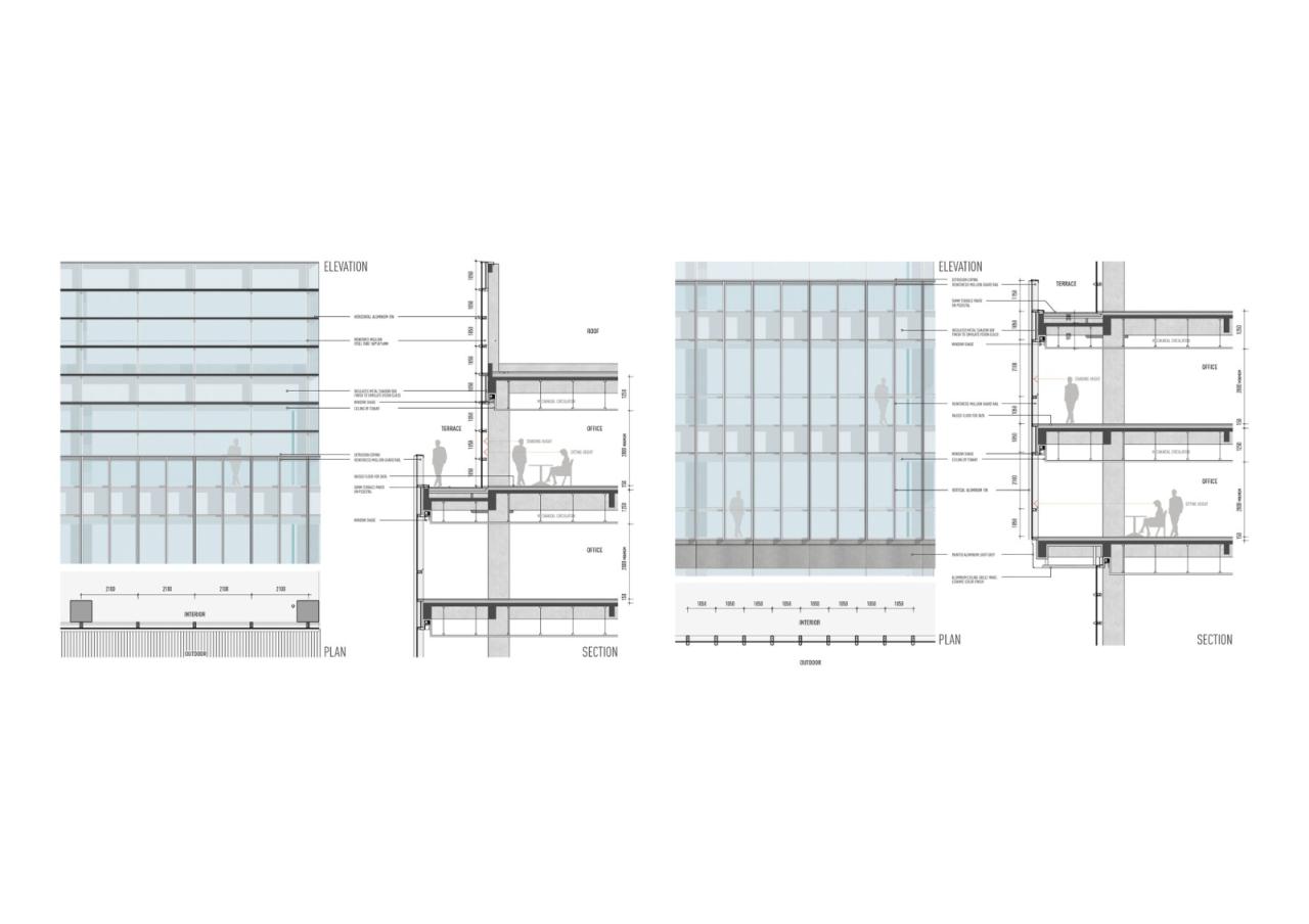
△立面图

△立面图

△细部大样图

△分析图

△分析图

△分析图

△分析图
项目信息
建筑设计: JJP Architects & Planners
面积 : 161712 m²
项目年份 : 2021
摄影师:齐竹溟
厂家 : 台玻咸阳玻璃有限公司, 富陶科
主持建筑师 : 潘冀、唐正国
设计团队 : 黄介帅、杨念恒、杨雪、庄子毅、庄凌云、王维康
委托方 : 西安环普科技产业发展有限公司
结构设计 : 中国建筑西北设计研究院有限公司
景观设计 : 苏州合展设计营造股份有限公司
施工方 : 中国建筑第六工程局有限公司
灯光设计 : BPI碧谱照明设计公司
幕墙设计 : 旭密林能源科技(上海)有限公司
地点 : 中国,西安

BIM建筑网





评论前必须登录!
注册