
孩子是学校的真正主角
杭州师范大学附属竞潮小学及幼儿园,是服务于杭州前湾国际社区的教育设施。设计之初,团队就与业主达成一致意见,全力克服学校在用地、日照、交通、层数等方面存在的诸多设计难点,以国际化教育思维,致力于打造一个有别于以往的校园新形式。

△设计条件分析
项目团队通过大量的努力和坚持,以不突破任何规范和用地条件的方式,创造性地提出了“将社会性引入校园”的设计策略,以“儿童”为设计的出发点,促使新的空间关系和组织方式得以诞生,完美地回应了多方面的诉求。

△生成逻辑
但我们深知,图纸只是设计的载体,高品质落地才是检验构思的考场。因此,在2018年8月报规通过后,设计团队的工作重心即转至施工控制,以设计的思维全程把控项目的完美呈现。而且,基于方案设计的大大小小的交流、交通空间,是孩子们对建筑的第一感知场所,设计师在巡场过程中,严格审查每一道施工工序,亲身复核主要使用空间尺度,并将空间使用的定性交给未来的使用者——孩子。
在开工至验收的1787个日夜里,团队不断地与各兄弟单位沟通,并保持每月1-2次的巡场节奏,确保这一所梦想中的新校园如期展现。2021年9月,当第一批孩子入驻校园,在中庭里欢笑,在砖格内向外张望,在下沉庭院中奔向父母……我们欣喜地看到,校园不需要“笼子”一样封闭,社会与校园的交互可以在多个维度实现,国际化校园新形式未来可期。

△孩子们在未定义的空间内自由玩耍

△孩子们穿过下沉庭院实景©夏强

△弧形大台阶和奔跑的孩子 ©夏强
至此,我们也如愿地完成了以“社会性立体监管、社会性教育空间及使用性的前置控制”为主题的,赋予建筑更多温度感的设计之路。
街道眼
社会性立体监管
“接送”不限于围墙之外
长期以来,“接送”问题不仅是学校需要面对的难题,也是影响城市交通的“顽疾”。故此,设计团队打破校园与城市之间的“围墙”,使得学校主入口前的广场与门厅下沉广场有效联动,组合形成专属接送空间。


△下沉庭院有效串联复杂流线分析
家长们可以在下沉台阶上安全等候自己的孩子,并可通过下沉庭院内的窗口早早望见孩子们的队伍,接到孩子后可平层到达车库驾车离开。接送不再受到顶风冒雨,也不再对学校周边的道路带来朝夕拥堵。我们的这一小小改进,将社会性引入了校园,将校园融入了城市。

△从下沉庭院看家长等候空间与交通空间实景©夏强

△家长可通过竖向条窗看到排队的孩子,孩子可以从一层看到下沉庭院中的情况
“安全+”源于视线渗透
聚焦到孩子的安全保障,基于学校不再是高墙保护下的“特区”,团队通过释放教学楼的跨层交流视线,让来自立体空间的监管和互动渗透进来,形成“街道眼”来保证孩子的安全成长。

△立体空间的“监管”与“互动”模型分析

△立体视线策略及庭院坡道立体化实景©夏强
在沿街立面,设计赋予其视觉通透性,街上行走的人们可望见孩子们的日常活动,起到有效的监管作用。

△视觉通透性立面分析

△“街道眼”实景©夏强
体验式
社会性教育空间
空间是行为的承载地
基于当下国际化教育“除了让孩子在教室里完成课程学习,更多关注的是如何让孩子在所参加的社会活动中形成完善的知识体系、如何让孩子以体验的方式去学习”的前置分析,同时因就不同年龄段的孩子对社会交往空间的需求不同(例如低年级孩子喜欢集体性群聚大空间,高年级孩子喜欢三三两两的私密小空间),团队将学校作为一个社会性教育空间,设计大大小小的交流空间,形成空间与行为的对应关系。

△不同空间在模型中的体现
除了设计课程学习的教室空间,也尽可能的打造出适合孩子进行社会交往的各具特色的空间场所,形成处处是图书馆、处处是教室的社会性语境的校园。内天井、教学连廊、空中花园、放大的连廊等空间设计,成为孩子进行兴趣交流、社会化学习的场地。

△食堂相邻下沉庭院实景©夏强
当教室不是唯一的学习空间时,校园的各个角落都可以成为特色的学习场所,在这些特色兴趣社团里,大孩子教小孩子的社会化教育带动孩子们的全面成长。

△社会化学习场地实景©夏强
交通组织“择”中溢趣
在串联各功能空间的交通设计中,设计突破传统的单一化路径布局,用一条教学连廊由上至下串联起教学楼、风雨操场、室外操场等功能,不刻意组织明确的路径,而是留给使用者更多选择。孩子们根据自己的实际需要,自由组织行动路线和自由选择产生记忆的空间,创造更多交流的可能性。

△本案交通组织剖面分析


△自由选择性路径实景©夏强
温度感
使用性前置控制
建筑色彩是孩子的背景色
不同于常规学校采用鲜艳跳跃的,甚至三原色碰撞的颜色,团队克制地运用设计手法,以“温暖”和“自然”为目标,把学校的主角身份归还孩子。

△柔和的橙色与低饱和度的黄色在灰白色的体块中隐隐露出@夏强

△多种材质呈现橙色空间@夏强
然而,看似简单的橙色却是设计团队经过多轮选样,最终在现场完成定色和配比的结果呈现。
设计团队通过对室内设计和景观设计的总控,确保学校整体采用统一色系,以“温暖”贯穿孩子的校园生活。

△报告厅室内实景@夏强

△教室走廊实景@夏强
以变化的行为定义建筑
在沿街立面的空心砖墙节点控制中,设计根据现场实地取景情况,因地制宜地微调砌块砖的间距,让公共空间在景观性与私密性之间达到完美的平衡。如同中国传统艺术皮影戏一般,孩子的日常活动通过似透非透的表皮,与城市界面产生互动,同时也将作为立面展示的一部分。

△不断优化中的施工现场照片
技术图纸

△总平面图

△地下一层平面图

△首层平面图

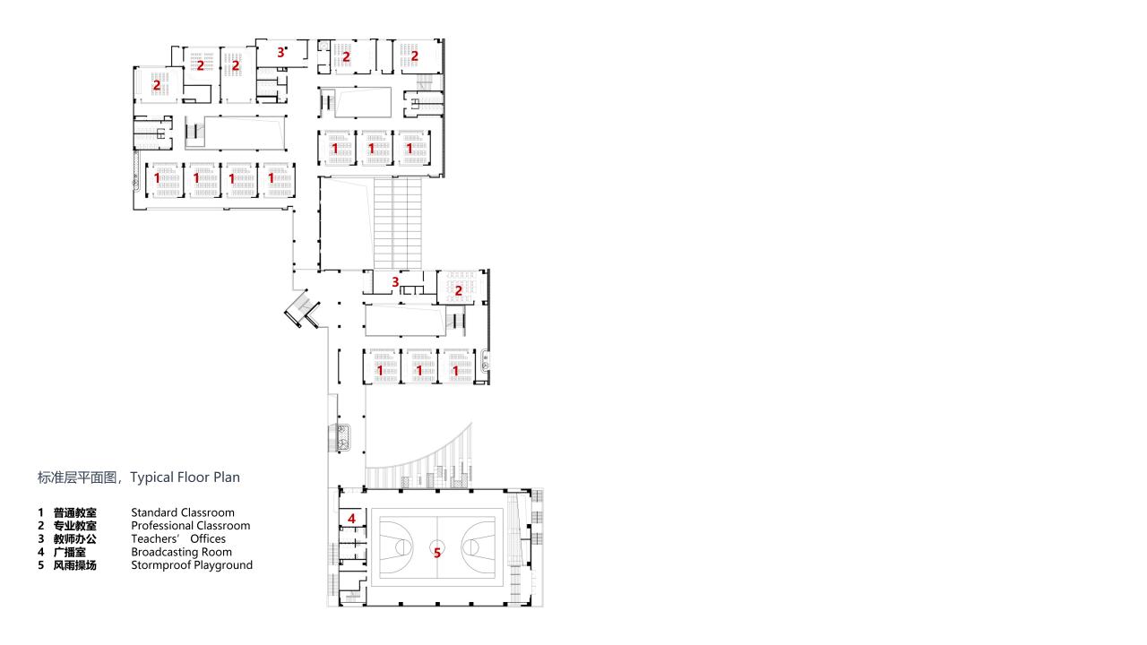
△标准层平面图

△屋顶层平面图

△幼儿园平面图

△立面图

△剖面图
大化于无形 润物于无声
在极端的用地条件和高品质的设计需求下,在设计中代入不同的视角会带来不同的换位思考。设计不应把设计师自己当作主角,而是要以思考使用者需求的主角身份,关注使用者行为交互方式、组织交通成为活动的场所、细节处理考虑人体工程学、低成本控制室内外交融效果等,自然而然形成好的设计。
项目信息
建筑类型:学校、幼儿园
建筑面积:46 051平方米
开发业主:仁恒置地|香港置地
建筑设计:UA尤安设计事业四部

BIM建筑网





评论前必须登录!
注册