
宁波院士中心选址于历史悠久、风景秀美的东钱湖西畔陶公山南麓,背山面湖,视野开阔,毗邻陶公村、建设村、利民村三个历史文化名村,用地格局得天独厚。项目利用历史名校原宁波师范学院的旧址建筑空间改扩建而成,以“山•水•村、厅•廊•宅”为理念,将自然景观与人文艺术完美融合,打造一座满足院士科研创新、交流研讨等多种功能使用,高品质、高标准、高定位的国际一流院士中心,成为带动整个东钱湖地区乃至宁波市科技、文化、经济发展的引爆点。



文化场所更新设计延续学校旧址格局与山水环境和谐有机的关系进行空间建构。四栋主体建沿山林带状展开,两端东西主楼,中部访客中心和陶公讲堂,四栋建筑通过景观连廊和景观塔串联,览尽湖光山色。



自然生态更新设计强调对地形和地貌的环境适应性处理——整饬地形植被,提升景观融合,缝合空间肌理,优化交通系统,延续山、水、村和谐共生。



功能业态更新五大功能区构成了符合可持续运营的经济、社会适应性要求的复合文化建筑群落。



乡村旅游更新设计重塑了山、水、村、校整体聚落空间结构和场所精神,并与历史名村、陶公岛景区形成区域联动运营、功能互补、设施共享,在依托宁波院士集群打造产业智慧和创新高地的同时,也成为了区域文化旅游新的核心景点,形成了助力乡村振兴转型和升级的新触媒。



宁波院士中心项目是一个既有建筑改造、记忆空间再造和新旧融合再生的集合,将智创平台与山水文旅和乡村振兴相融合,实现了面向未来持续发展的空间再生。














项目图纸

△总平面图

△栋楼一层平面图

△东楼二层平面图

△东楼三层平面图

△东楼四层平面图

△东楼五层平面图

△东楼北立面图

△东楼剖面图

△西楼一层平面图

△西楼二层平面图

△西楼三层平面图

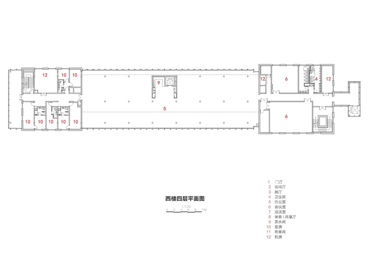
△西楼四层平面图

△西楼五层平面图

△西楼南立面图

△西楼剖面图

△西楼剖面图

△西楼改造技术要点轴测解析图

△陶公讲堂一层平面图

△陶公讲堂二层平面图

△陶公讲堂屋顶平面图

△陶公讲堂立面图

△陶公讲堂剖面图

△访客中心一层平面图

△访客中心立面图

△访客中西剖面图

△建筑轴侧分析图

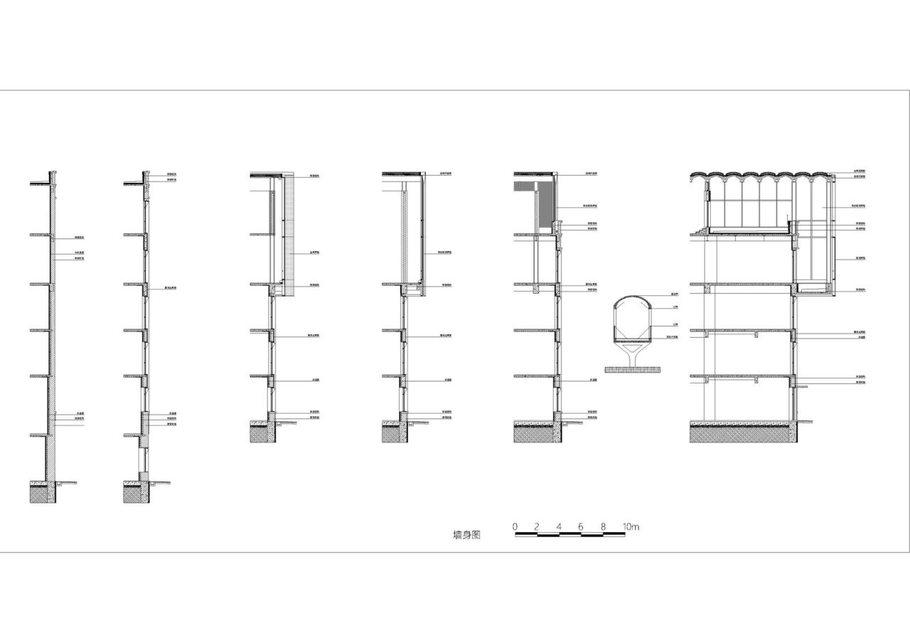
△墙身详图
项目信息
建筑设计:同济大学建筑设计研究院
面积 :24055m²
项目年份 :2020
摄影师:Ming Yin
主创建筑师 :吴志强,邹子敬
设计团队 :陈康诠,赖君恒,马天冬,马忠,刘培培,赵昕未,高蟒,杨竞,韩佩菁,吕梦菡,刘聪,赵明哲
结构设计 :程浩,张峥,李旭,李璐,陈璐杰
照明设计 :林怡,郭菲
Client :宁波东钱湖文化旅游发展集团有限公司
景观设计 :同济大学建筑设计研究院
施工方 :宁波建工建乐工程有限公司
地点 :中国,宁波

BIM建筑网





评论前必须登录!
注册