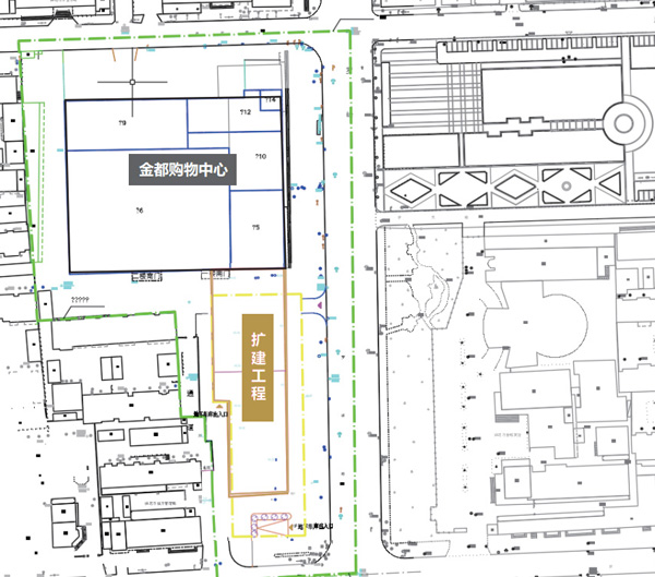
一、项目名称金都百货南扩立面设计及平面功能概念方案征集(外立面含夜景,平面含功能布置)二、项目背景金都百货集团位于山东半岛西北部的招远市,始建于1981年,是一个以零售为主,兼顾房地产、物流、家政服务、现代农业、教育、餐饮、商务宾馆、网络平台及外卖配送等众多行业,辖设山东金都百货股份有限公司、招远市金百置业有限公司、招远市金百居家养老服务呼叫中心、烟台金源农副产品有限公司、烟台金都家政服务有限公司、烟台金都物业管理有限公司、烟台市奔跑网络科技有限责任公司、招远市金百商务宾馆有限责任公司、招远市舒悦商务宾馆有限责任公司、招远市金都商业技术学校、招远金都老年人日间照料中心等子公司,拥有金都购物中心、北城商厦以及近30家连锁超市、经营面积20多万平方米。本次竞赛的建筑标的为位于招远市的金都百货(购物中心)南扩地块工程项目。征集成果具体包括新楼外立面设计(含夜景)以及平面功能布置设计。设计主旨要求尽可能在满足适合经营项目高度的情况下,充分利用周边资源(广场景观),设计时要考虑新旧楼的建筑风貌关系,使新旧楼和谐统一但不重复,实现整个区域的美观度,创造丰富的空间设计视觉体验,拓展多元化的购物新场景,打造该区域醒目的标志性建筑。三、征集人:山东金都百货股份有限公司四、征集规则 1、征集方式本次征集采用网上公开发布设计要求,应征人按任务要求进行原创方案设计,并在线提交成果作品。能够独立承担民事责任有本项目设计服务能力的境内或境外机构,包括企业法人、个人、其他组织均可参加。2、提交作品提交邮箱:info@abbs.com提交成果时需与附件中的应征人信息汇总表一同提交。3、征集时间2022年05月05日10:00至2022年06月18日17:30分整(北京时间)。征集结果将不晚于2022年09月于ABBS官网进行公示。(注:如遇特殊情况,征集人有临时调整征集规则与时间的权利)4、答疑本征集答疑采取邮件形式,邮箱地址同提交作品地址,不接受除邮件形式以外的任何方式答疑。五、设计条件及成果要求 1、规划落位本次方案征集的金都百货南扩地块工程项目基地位于招远市府前路以南,罗峰路以西,迎宾路以北,与府前广场相望。北侧毗邻现状金都购物中心,周边交通发达,配套设施齐全。
招远市位置
基地位置2、用地现状宗地北侧毗邻现状金都购物中心,西侧为住宅,层数4-7F。基地面积:4332㎡建筑高度:不超过50m宗地周边交通可达性较强,东侧、南侧直接沿路,西侧可由现状金都购物中心西侧道路经由现状住宅北侧道路连接到达。宗地与西侧住宅场地以挡土墙分隔,地坪存在约6m高差。西侧住宅小区南侧和北侧各设一出入口。现状金都购物中心一层南侧现存一超市入口。场地西侧-1F现存消控室,准确范围不明。
航拍实景图
总平面图
一层平面3、设计范围3.1 南扩新楼外立面设计(含夜景),各层平面设计(含功能布置)。3.2 功能要求:3.2.1各楼层选择适合的经营项目,并匹配相应层高。3.2.2尽可能的利用好周边环境资源,如府前广场。3.2.3内部动线连通、顺畅,局部可为功能打通新旧老楼。3.2.4新楼总高度不超过50米。其中1-5楼层高与老楼一致,6-10楼层高可适当加高。3.2.5新楼与老楼之间无需中间隔离通道,仅需在新老楼组合的整体外围形成环形消防车道。3.2.6楼层功能根据空间及外观设计进行规划布局。可参考但不局限于以下分布:2层鞋帽,3层儿童娱乐,4层男装,5层童装,6层餐饮,7层洗浴,8层健身游泳,9层影院,10层办公区(1500平方米)+屋顶花园。3.2.7主要经济技术指标拟如下:
项目
数值

BIM建筑网

评论前必须登录!
注册