
Kerikeri有着宜人的气候条件,我们希望该中心能充分利用当地环境优势,让孩子们与自然亲密互动。建筑面积700㎡,分为四个体量以容纳不同年龄段的儿童,一个高耸屋顶将四组体量连接覆盖,提供荫蔽的同时又不完全封闭。


屋顶为四组体量及周边空间遮风避雨,创造出可全天候使用的空间,如户外用餐区和游廊,这些空间环绕着中心的小型花园。场地中心种植的金合欢树引人注目,以此促进孩子们与自然互动。建筑设计反映出许多当地海湾文化,同时室内外边界的模糊激发了孩子们的探索欲望。


项目基础色调为自然木色,为孩子们创造出一个温暖友好的空间。采用铝细木条搭接立面,创造一个更自然的环境。


教室设有大型滑动玻璃门,最大限度地联系室外场地,保证充足的日照和自然通风,为孩子们营造出最佳的内部环境。


在建筑内部,每个教室都由New shoots团队专门设计,为孩子们提供定制化的学习环境,以满足不同年龄段的特殊需求。定制的橱柜和家具都经过了充分斟酌,与整体建筑风格和谐统一。


舒适的户外区域充分结合了新西兰北岛的温暖气候,为塔马立基(tamariki)的生态化发展提供参考。






项目图纸

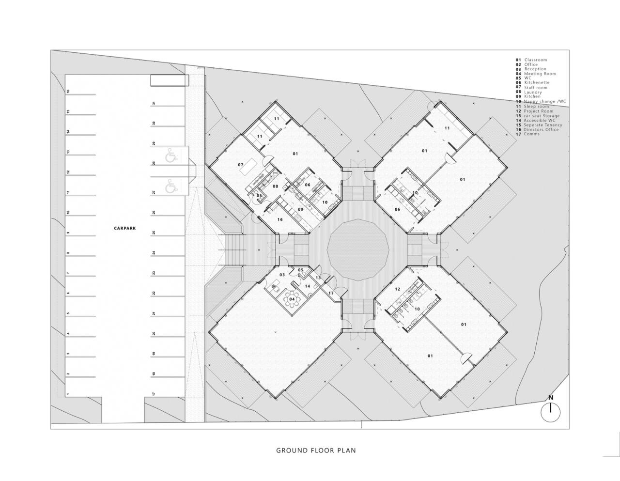
△平面图

△立面图

△剖面图
项目信息
建筑师:Collingridge And Smith Architects (CASA)
面积 :1300m²
项目年份 :2020
摄影师 :Amanda Aitken
主创建筑师 :Graham Collingridge and Phil Smith
客户 :New Shoots
施工方 :David Lenssen Builders
结构工程师 :Markplan
地点 :新西兰,Kerikeri

BIM建筑网





评论前必须登录!
注册