
项目位于江门蓬江区天沙河边,展厅作为蓬江治水成果的集中展示,是对外治水环保科普、治水沙龙交流的重要场所,同时是一年一度的龙舟赛的主席台。业主希望在2021年的春节后的世界水日开放给市民,从设计到建成开放只有8个月时间,其中还包含春节假期及一个半月的室内布展。这是一个快速建造的建筑,是一个施工策略占主导的项目。



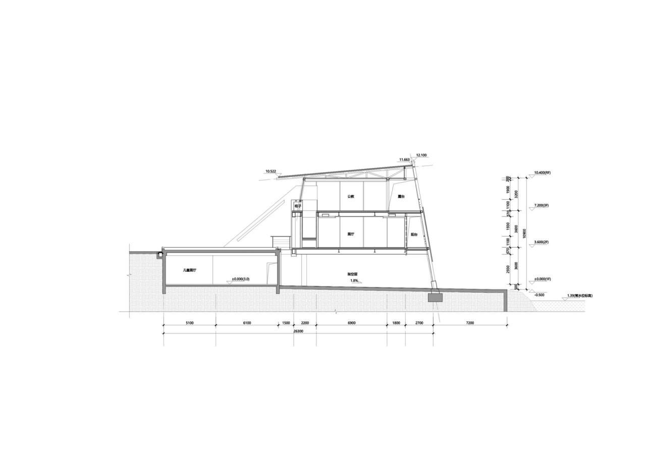
我们提出“化整为零”施工策略,把建筑物拆解成可以同时施工的两部分:底部是混凝土结构的儿童展厅,平沿河步道的标高;上部是钢结构的成果展厅及公共教育用房,架空于河岸步道,连接马路标高的主广场。



因为防汛的要求,我们在底部采用混凝土剪力墙结构,200平米的儿童展厅在被拆除的旧建筑范围内,远离河岸留出大面积的步道空间,可减少土方开挖,更主要的是有现成的施工面,节省时间。同时,部分功能位于河岸标高,可以削减主广场标高的建筑体量,保持城市界面与河流之间的亲切尺度感。



上部则采用标准重复单元的钢结构,半个月的桩基础施工结束后,工厂预制的结构部件刚好可以运达现场安装。柱跨为2.4米,以0.6米为模数,可以让固定家具的板材、地砖、门窗、栏杆及墙板等非常兼容,保证快速施工的品控。悬浮的上部轻巧地避开原有的景观步道及树。建筑的上部与下部在平面上错开,只有楼梯连接,也是唯一的结构连接。



架空的建筑给河岸公园的人们提供一个阴凉的休憩空间。整齐的外露斜钢柱会让人联想到龙舟赛的划桨,悬浮的上部犹如飘于水面的小舟。位于顶层的公共教育空间的落地门可以完全打开,可供观赏龙舟赛。因我们设计时主动考虑施工步骤及周期,确保项目在非常短的时间完成。落成一年,这里成为主要的儿童环境治理科普教育基地。








项目图纸

△马路层

△公共教育层

△河岸层

△剖面

△结构示意图
项目信息
建筑设计:WAU建筑事务所
面积 :900m²
项目年份 :2021
摄影师 :白羽
主创建筑师 :吴林寿,赵向莹
设计团队 :张玮莹,罗倩萍
结构设计 :陈招智
委托方 :北控水务(中国)投资有限公司
本地建筑师 :南京市市政设计研究院有限责任公司
景观设计 :江苏景观建筑规划设计院有限责任公司
展陈设计 :卡司通展览有限公司
地点 :中国,江门

BIM建筑网





评论前必须登录!
注册