
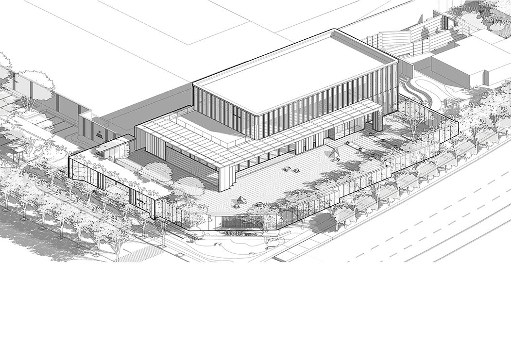
△博元城体验中心
由UUA建筑师事务所设计的安康博元城体验中心,以全新的视角展示了3.0版本示范区的一种可能性。展示馆试图通过建筑设计中举重若轻的模数化设计,给人带来良好的空间体验,同时有效地控制了室内外效果、项目整体完成度、以及施工造价和周期。

△模数体系下的建筑,幕墙,室内一体化
建筑以开放、流动、移步换景的空间设计,创造出一种宁静和放松的氛围,同时构建了一个轻松而有品质的、开放性与环境交互并重的建筑空间理想模型。

△轻松而有品质的空间理想模型
建筑的首层在西侧临街面和南侧主要入口面处设计了大出挑的檐廊空间,使得整个体量在水平方向延展。檐下的灰空间使展示馆在空间层次上更加丰富,同时为二层创造了大面积的景观露台。入口处宽阔的薄水面景观水池映射出建筑的倒影,既完善了视觉层次,也营造了更为静谧的景观体验。
01游线
三重叠加的建筑室外体验

△移步换景的空间游线
园区由西门进入,门头和迎客石榴半遮半掩,形成了一个半透的玄关,给予来者满满的期待。

△门头和迎客石榴半遮半掩
建筑的西立面形成第一个景框,将简约大气的建筑送入眼帘。室内核心的吧台透过落地超白玻璃投射入眼帘,形成建筑外部体验的第一重高潮。

△园区由西门进入

△ 建筑西立面景框
右转进入庭院,缓缓的坡道沿着建筑前的无边水面向上延伸,建筑逐渐呈现,倒映于水中。行至西南转角处,整个建筑映入水中。此处视线刚好跨过无边水面,一览建筑最佳角度,形成第二重空间高潮。

△建筑逐渐呈现并倒映于水中
继续沿园路前行,可以看到建筑南侧外廊形成一个扁平的景框,将室内通透的空间框于其中。逐步深入庭院,建筑形体及内部通透的空间有如“千呼万唤始出来,犹抱琵琶半遮面”一般,豁然开放的宽阔水面也立即展开在眼前。建筑与倒影最终拼合为一个完整的景框,极具纵深感,形成第三重室外空间体验的高潮。

△极具纵深感的景框
02景框
镜像的完型

△外实内虚的景框
整体建筑形态就像一个盒子,与景观水面生动融合,打造出一个外实内虚的景框。外部石材幕墙形成一个框,内部玻璃虚且透,形成一个长条的展示面,建筑内部吧台、洽谈区一览无余,展示了一种开放的建筑态度。

△反射与通透的建筑室内细节
建筑用简单的形体关系,通过平衡穿插以及虚实、比例、色彩、质感处理,形成了一个有丰富度的构成。两个方形盒子的冷静穿插,形成了实——虚——实的过渡;再通过无边水面的镜像拼合,建筑借助水面成为几何完型。

△ 通过水面形成几何完型
03开放性
空间的黑白灰以及流动空间
建筑以开放的姿态,展示出室内的景致,同时室内的视线又通过外廊景框框定,建立看与被看的关系。建筑的内外部空间则由动线联动。至此,视线、动线均通透流动,形成独特的空间和视觉感受。

△室外的视线通过外廊景框框定

△ 室内的视线通过玻璃景框框定
04 一体化
建筑室内整合式设计
室内空间的一体化设计,保证了建筑品质的高完整性。建筑设计从外到内的统一,能够实现模数化的体系化控制。精品源自细节,建筑通过模数化的控制,实现建筑室内墙、顶、地及家具的对位。

△建筑室内一体化

△室内比例的统一与变化

△建筑室内墙、顶、地及家具的对位
建筑内外连续的开放空间与流动空间,结合建筑本身的通透性特点,使得建筑形态与景观环境一气呵成,叠水景观拾级而下,室内外一体化设计的建筑形象犹如框中画,呈现出了一个高完成度的设计作品。

△建筑与入户景观水面的相互融合衬托
05模数化
标准化,精细化与完成度的控制方法
为实现快速搭建及降低造价的目的,主体结构采用钢结构,同时采用模数化的控制手法,室内外统一以300mm的基本模数和1200mm大模数控制幕墙体系的搭建及室内空间的设计。在一个大模数体系的控制下,建筑大中见小,品质细节独到。

△首层建筑三维模数控制(1.2M模数)

△首层平面模数控制

△首层室内墙地三维模数控制(1.2M模数)

△首层天花模数控制

△首二层墙顶三维模数控制(1.2M模数)

△二层平面模数控制

△二层建筑三维模数控制(1.2M模数)

△二层天花模数控制

△吧台区

△吧台区

△洽谈区

△洽谈区

△VIP室

△儿童活动区

△整合式设计控制

△整合式设计控制下的中庭效果
玻璃幕墙一层每2400mm、二层每1200mm作为一个构造单元,在此单元中设置内凹的竖向长条开窗带及大面积玻璃幕墙。

△隐藏于模数下的玻璃开启扇处理
内凹的长条开窗带在立面上呈现出规则的韵律感,形成丰富的光影效果,同时协调了与室内柱网和墙体的关系。

△开启扇形成立面统一变化的节奏

△隐藏的开启扇形成了纯净的立面效果
06 高完成度
细节与效果的高度呈现
建筑的细部完成度取决于理性的构造推演。建筑在工程层面的图纸细节控制,配合建筑室内的一体化设计理念,促成了高完成度的精品工程。




△模数控制下的细部



△幕墙与结构交接构造

△方案效果图(左)VS完成实景照片(右)

△方案效果图(上)VS完成实景照片(下)

△绿树阴浓夏日长,楼台倒影入池塘(摄影©何炼)
07结语
建筑室内一体化的整合式设计,在模数化的控制下,有效的实现了精细化与完整性,同时有效的控制的建造周期与成本,项目在有限造价的情况下,实现一体化设计的高完成度。
技术图纸

△总平面图

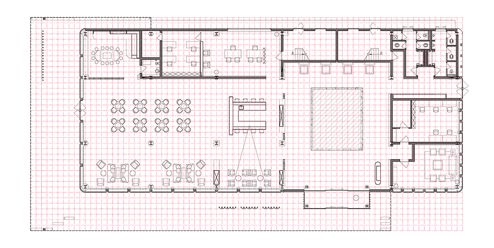
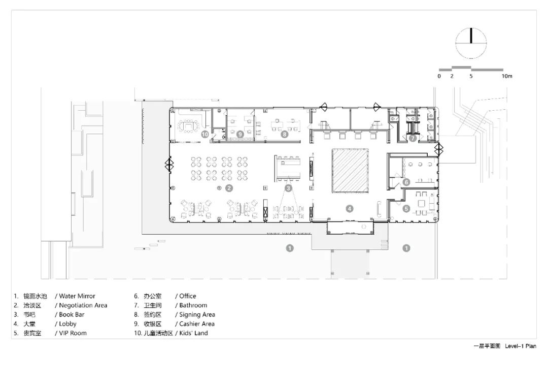
△一层平面图

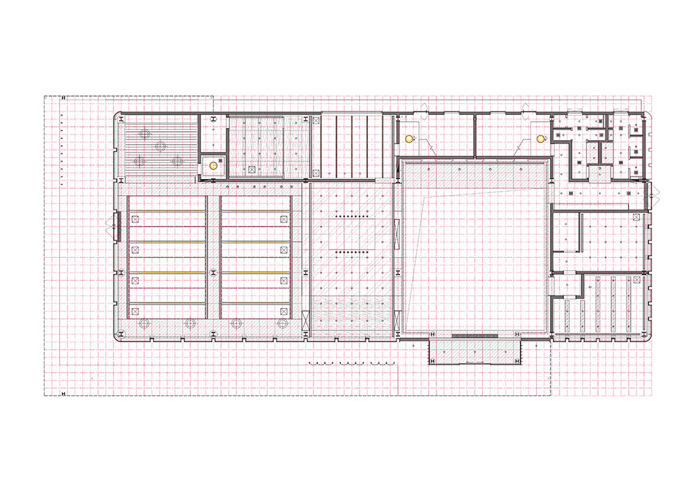
△二层平面图

△东立面图

△北立面图
项目信息
项目地点:安康,中国
项目规模:1,600㎡
项目业主:安康博元实业
建筑设计:UUA建筑师事务所
室内设计:UUA建筑师事务所
标识设计:UUA建筑师事务所
UUA设计团队:李泳征,李其郅,邓亮,姜腾,赵胜利,陈立业,吕延锋,杨波,虞楠,马凯,王胜男
景观设计:上海水石景观环境设计有限公司第四事业部
项目管理团队:李进、洪健、罗来超、王西宁、张弦、刘佳、吴永刚
建筑摄影:金伟琦,何炼(单独标注)
项目年份: 2020

BIM建筑网





评论前必须登录!
注册