
湖北省博物馆三期(以下简称新馆)的正式落成,不仅是一座新文化地标的诞生,作为荆楚文化的重要载体,在城市历史发展中也有着非凡的意义。


作为扩建工程,如何处理新老馆之间的形体关系,是本次设计的突破点。设计灵感来源于博物馆藏品青铜器—簠。老馆屋顶呈现梯形的形态,新馆与之相对应采用倒梯形的几何形体,两者正好与簠的形态吻合。新老馆形体的组合在比例与尺度、界面与形态上都达到了高度的和谐,“合则一体,分则为两”,从功能使用角度也是对“簠”的完美诠释。


新馆毗邻东湖风景区,有着270°的景观视野。从城市环境出发,建筑形体在消减对环境影响的同时积极的整合景观资源。新馆上部形态为玻璃体,对体量消隐起到积极的作用,对老馆也起到了映衬效果;最大化的把室外景观引至室内;建筑、环境、空间通过形态构成而形成相互渗透与对话关系。


新馆内部空间设计延续外部的梯形几何元素,通过重复、延伸以及拓扑的手法加以变形,使其以完美的比例及尺度融入空间形态设计。新馆沿湖面的中庭呈梯形的形态,加长了沿湖景观的界面,在有限的空间中创造出更大的视觉效果。另外在天窗、树状支撑、楼梯扶手、吊顶分隔等处都沿用了梯形组合成的六边形元素,使建筑内外充盈着和谐统一的视觉元素。



自然光线的引入进一步削减了室内外的界限,让空间具有生命般的灵动,让漫游动线兼具了园林属性,提升了观展体验。展厅前廊的天窗设计,产生了一种体验的新鲜感,增加了空间的趣味性。中庭的自然采光,结合仿生结构及透光膜则营造出了更加亲近自然的空间。如何运用现代的美学手法展现建筑的文化属性是建筑师重点思考的问题。设计吸取传统饕餮纹与夔纹等纹样,运用像素化的技术加以抽象提炼,以满足当代的审美需求。










项目图纸

△总平面图

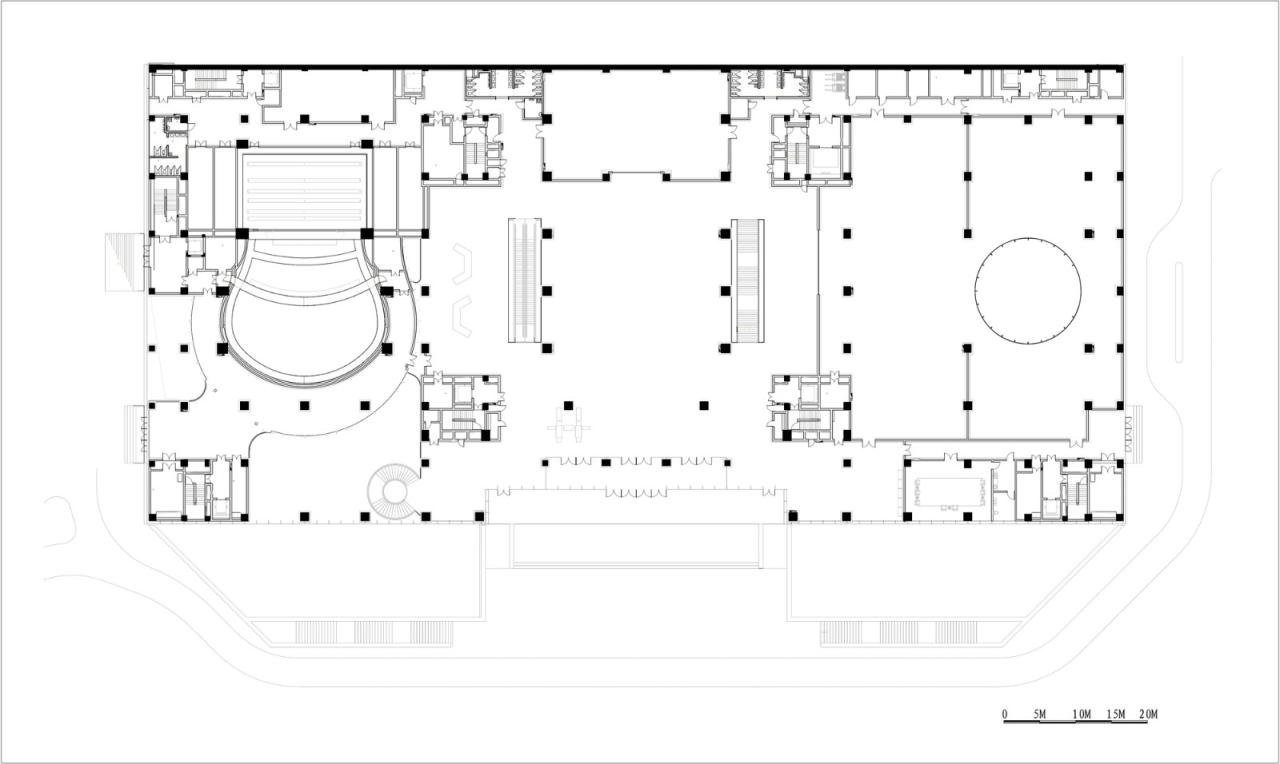
△一层平面图

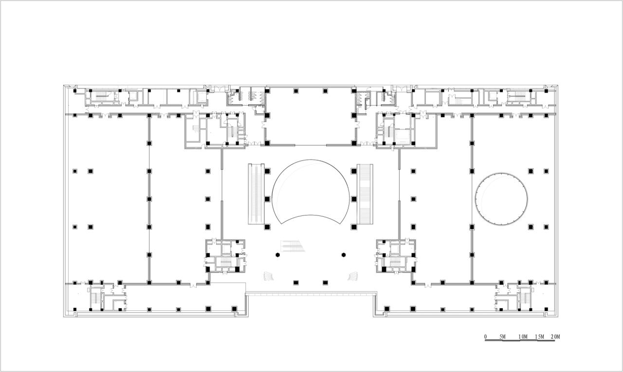
△二层平面图

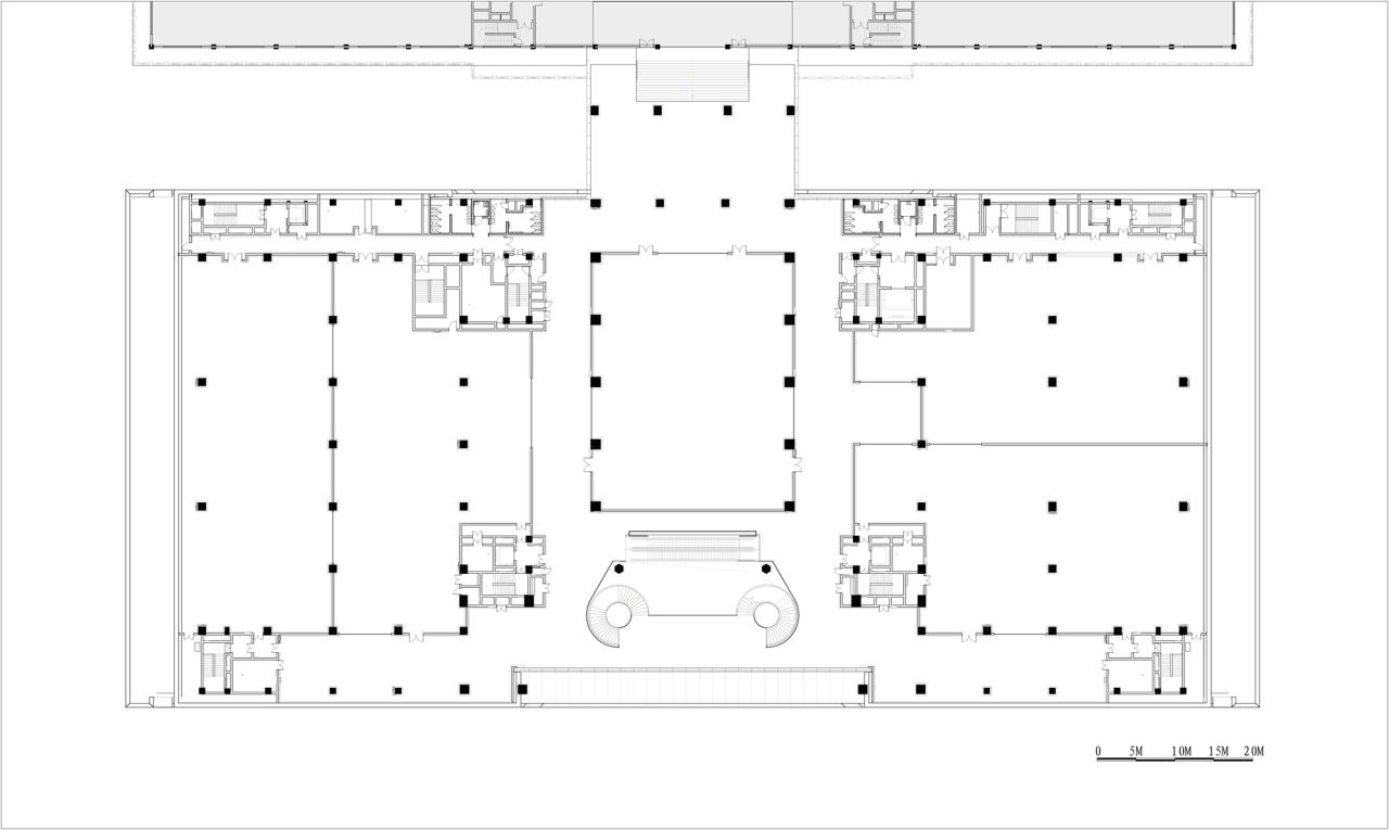
△三层平面图

△四层平面图

△立面图

△立面图

△立面图

△剖面图

△剖面图

△剖透视

△剖透视

△点阵石材局部三维图

△模型图
项目信息
建筑设计: CITIC DESIGN
面积 : 68099 m²
项目年份 : 2021
摄影师 :何炼, 李洋
主创建筑师 : 陆晓明
设计团队 : 陆晓明、郭雷、杨坤鹏、杨雁、李鸣宇、高婷、杨先达、朱亮
结构设计 : 温四清、邱剑、谭波、俞健、余宏、龙浩、左欢、何婧、廖根
给排水 : 李传志、张忠林、李魏武、李运佐、陈琪、袁海、李文坤
暖通设计 : 谢道鹏、陈焰华、印传军、胡勇、陈耀南
电气设计 : 李蔚、刘冰、白建光、李巍、甘文彬、彭威
声学设计 : 王凡、陈庆、饶紫云
委托方 : 中国湖北省文化厅
地点 : 中国,武汉市

BIM建筑网





评论前必须登录!
注册