
ZSD卓时:义乌,一座建立在市场上的城市。它让人深信世界是开放、流动与联系的,哪怕是在疫情时代。
义乌,一个具有多重色彩的城市。这里是“初唐四杰”之一骆宾王的故乡,更是如今全球最大的小商品集散中心,被联合国、世界银行等国际权威机构确定为“世界第一大市场”。这里每天行色匆匆的穿梭着各种肤色的人群,耳边萦绕着各个地方的语言,街头巷尾充斥着各地的风俗美食。它朝气蓬勃与活力开放的样子不断吸引着世界各国年轻人的涌入。

△ 义乌城市印象:开放的市场,商贸的天堂
义乌桂语兰庭位于城市核心区,所处街道被定位为宜居生活片区与会展文化特色休闲区。项目紧邻义乌国际文化中心,周边环绕着诸多已建或在建的住宅小区和待开发土地,呈现出一片如日方升的景象。

桂语兰庭生活美学馆地处项目东北侧已建道路和宗泽东路交叉口的绿化带处,基地长约213米,最宽处20米,自北向南临主干道长向展开。较长的城市展开面带来了优越的昭示性,地块狭长的特性以及南北地势的高差,构成了线性的建筑景观布局。

△ 基地建设前实景
建筑以“橱窗”的概念回应了义乌这座城市的特点,用三个虚实变化的“盒子”构成了美学馆的建筑形态。景观将停车场设置在最北侧,参观动线被自北向南引导,前场台阶式的水景去化了高差,并且给建筑想要呈现的“橱窗”提供了空间拓展的倒影面。
两层堆叠扭转的建筑体块最终形成了多面展示的三维立体城市橱窗,实墙与玻璃虚实交映,室内功能完全被呈现至建筑立面,空间边界通透而模糊,室内外的视觉体验连贯且融合。

△ 建筑立面分析
ZSD卓时此次承担美学馆室内设计的角色,如何让分散的盒子产生联系并获取最优的功能动线,如何让“橱窗”更具昭示性,如何将“开放、流动、联系”的市集特色注入空间内部,并找到恰当的手法来表达城市基因是设计关注的问题与切入点。
自清乾隆年间至20世纪80年代初绵延不断的“鸡毛换糖”经商传统,到遍布全球的国际商贸,义乌由此形成了独特的商业文化和商业精神,“特别能吃苦,特别善于发现商机,特别敢冒风险”成为了义乌人的标签,在流量为王的时代,他们更是将此发挥至极致。

△ 中国“网红直播第一村”义乌北下朱村“店仓合一”与统一的红底门头招牌 是北下朱特殊的商贸环境和经营样本
从红火熙攘的小商品市场到网红流量的源头,义乌总能为人们带来朝气、蓬勃、热情的色彩,而“义乌红”是我们对这座城市基因的直观解读。

△ 设计生成
我们在与建筑经过多轮沟通讨论后,最终确定了体块间交通轴的定位与形式,以充满趣味的手法,结合功能动线将三个盒子串联起来。让建筑立面与结构参与室内的手法处理,形成开放的流动空间。同时,室内在视觉驻点处,选择大面红色的应用,以回应义乌积极乐观、热情且勇于挑战的城市性格,并成为空间记忆点。

△ 功能动线
如连杆装置般的“转轴”与饱满活力的“红”,令“城市橱窗”展现出独特的个性。建筑、景观、室内共同将美学馆打造成ART-BOX形态。

△ 空间表现效果图
Space-1. 时空「切口」
Space-time cut
一号盒子面积最小,却呈现出晶莹通透的质感。设计最大程度保留了立面的可视效果,并将空间体积占比较小的螺旋楼梯置于中心,以解决步行和电梯升降的交通需求。贯穿两层的红色圆筒书架就像连杆装置的轴心,将多维空间徐徐展开。

△ 主入口效果图

△ 主入口实景图
这处精神与视觉的焦点,即成为交通核将一二层空间相连,又完美契合了迎宾接待功能。两段半透的玻璃南北对称环绕,似空间转动时留下的剪影,记载了大悦城与绿城中国的品牌展示,呈现出企业在不同时空的发展和对城市的敬意。

△ 室内通透的材质应用与景观水景的倒影面 使空间气质简洁舒畅

△ 书架与文化墙构建类会展空间
楼梯内部,红与深咖碰撞出沉稳雅致的氛围,形似沙漏的圆形天井将外部天光收束引入,旋转的终点是截然不同的视野与情绪体验,这段步行环绕的旅程犹如开启了时空的切口,跳跃着进入另一段空间。


Space-2. 流动与秩序
Flow and order
二号盒子架于一、三号盒子之上,是一个稳定的大敞开空间。设计运用打开的手法,将二层主体分割成由沙盘区、文创区、吧台区、接待区和工作区组成的连续贯通的大厅,有序而自然地兼纳营销、文化、休闲等差异化内容,形成开放的流动空间。





分布于南北两侧的书架和VIP室,以红色作为呼应形成两处中心视觉点,同时表达了空间的连续性。室内的其他材料应用了与红色高对比的白色与深咖色,在背景色彩的帮助下,空间有了更体系化的完整展现,富有变化感的多个空间层次,使之产生微妙的化学反应。


真实流动的天光被引入室内,一方一圆的采光井对应着同样一方一圆的楼梯形态。吧台上方是长向贯通的一字天井,与沙发顶部的人造光槽形成秩序的呼应。随着时间的变化,光线在空间留下的光影,与原本存在的体块形成了时刻变化的构图。



在通透开阔的空间里,吧台区域通过软装阵列的排布,创造出一种秩序感。秩序美营造了“静”,体块扭转创造了“动”,一种静与动相互牵制的平衡感跃然而出。


书籍与文创展台构建了真实的书店场景,丰富了空间内人予以停留的理由。



义乌是一座博大包容的城市,不同地域、肤色、信仰的人为它注入了丰富的色彩。在VIP室的内部,软装红蓝碰撞的应用为推门而入的访客带来意外惊喜,一缕活力的时尚感扑面而来。开窗应用掏洞的手法,在视线的穿透下与硬装体块形成趣味多面的视觉体验。


Space-3. 扭转游戏
Twist game
“扭转”的概念手法被延续至室内,墙体与建筑边界在平面关系上形成数个特殊角度,顺应场地变化,因此而成的特殊空间被用作儿童游乐、卫生间等功能来使用,上演了一场碎片变形记。



弧形立面因“扭转”手法被带入空间内部,打破了硬朗的思维限制,使空间产生与时间共舞的“3D”视觉感受。


三号盒子因封闭的实体立面被规划为样板展示区,在二号与三号盒子的通路上,设计用建筑思维来表达此空间,运用线条与体块的穿插,使空间与空间的过渡变得有趣,层次变得多样。



在本案中,卓时希望打造一处轻松、有趣、活力、时尚的场所。令我们喜悦的是,桂语兰庭已经展现了IP效应,成为一处吸引年轻人的潮流打卡地。

△ 桂语兰庭生活美学馆成为潮流打卡地 ©图源网络
在周边“待开发”与“未完成”交织的土地面貌中,义乌桂语兰庭生活美学馆犹如城市的“前景建筑”,预告了区域未来新一轮的潮流与热情。


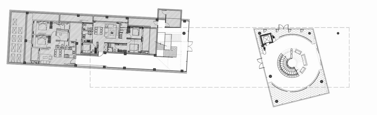
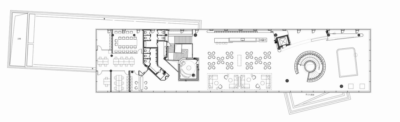
项目图纸

△ 一层平面

△ 二层平面
项目信息
项目名称:大悦城绿城·义乌桂语兰庭
项目类型:生活美学馆
项目业主:大悦城、绿城中国
项目地点:浙江义乌
设计竣工:2021.08-2021.12
设计面积:1005㎡
硬装设计:ZSD卓时
软装设计:ZSD卓时
设计指导:袁笑雨
设计团队:武彦、王薇薇、曾斌、黄绍寿、王钦虞、施利强、韩佳芸、邓淼、曹畅
项目摄影:张锡、沈小冰

BIM建筑网





评论前必须登录!
注册