
Le Havre这座城市使我们沉浸在一个感人的氛围之中,充满着有力的故事和浪花。这个新的文化、合作和体育设施被确立为 Danton 地区的中心项目之一,该地区正在升级。它回应了Le Havre的城市政策,更密切地响应居民的期望,这些居民接受咨询以制定项目计划。

这个项目寻求一个强有力而可识别的建筑,一个统一的“基石”,向公众慷慨地开放,成为公共空间的延伸。我们也理解对于一个慷慨友善的建筑的渴望,它能够欢迎这些既寻常又惊人的时刻,当人们以兄弟的精神聚在一起的时刻。

这个项目是一个简单规划的一部分,它完成了新公共广场的框架,旨在周边邻居。它的立面与周边街道立面亲切地对齐,强调这个大型集合空间的形状,该空间结合了一个宽敞的矿物商场与亲密花园。这个建筑从周边码头的砖制仓库的典型形态中汲取灵感。

这种带有双坡屋顶的都市景观,毫无疑问地与Le Havre的遗产相联系,以至于成为一个熟悉的幸福载体。这个项目再现了这些侧影,以延续它们近乎忧郁的象征,属于一个繁荣而和平的时代。它同时也将效率归功于运动空间,对这些强大体量的简单之美表示了敬意。

这个当代建筑,形象是一个牢牢固定在地面上的图标,然而正在被重新组合,以适应新的功能。首先,它的体量仿佛被抬升,以使公共空间滑入这个操作的中心。其次,它的材料性与亚光陶土砖的遗产配置相呼应,表皮由拉丝不锈钢板制成,充满活力。最终,这个当代建筑回应了模型的体量性,拥有一个“透明的体量性”,能够从字面上比喻上展示其所容纳的活动。


这个项目因此拥有了两种形象。他在坚持一个不变和强大的城市存在的同时,也把自身包装在一个敏感的景观之中,由它的环境,特别是公共花园的如画反映所激发。


建筑室内回应了建筑外表皮,具有更多家庭色彩。它采用了清晰的主题,在流动空间中散发着慷慨的光,使其看起来如同被蒸汽般的白色所覆盖。木材构建了这种和平的总体氛围,而事实上增加了幸福的感觉,这源于它亲近生物的作用。受益最大的是大型运动厅,拥有一个全木的悬挂拱顶,遵循复杂的几何形式。



项目图纸

△肌理图

△总平面图

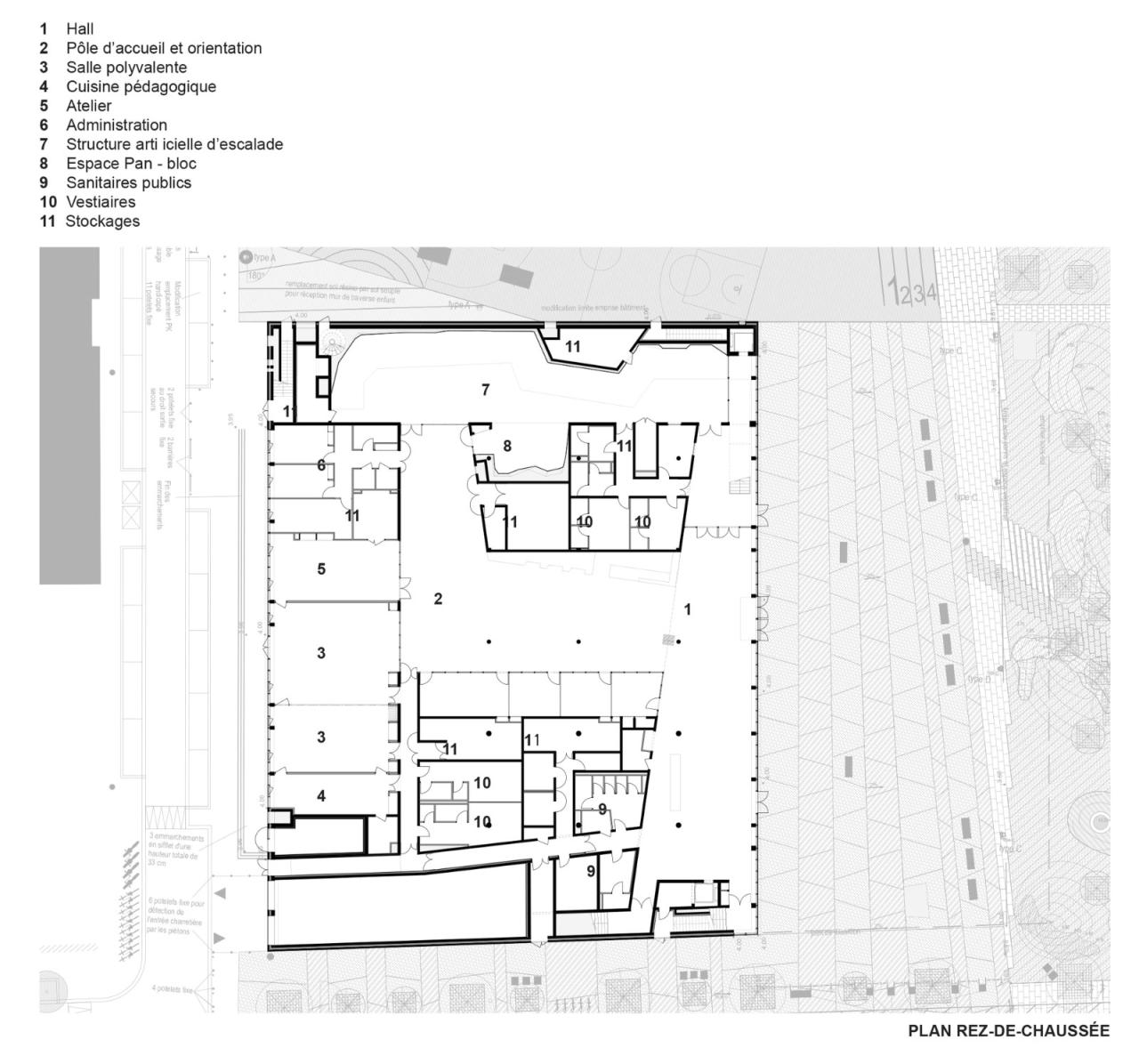
△一层平面图

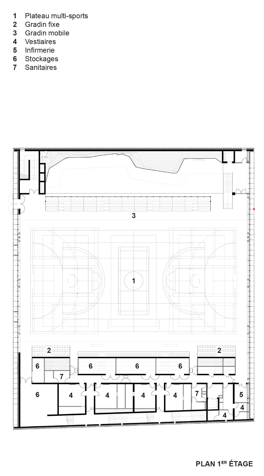
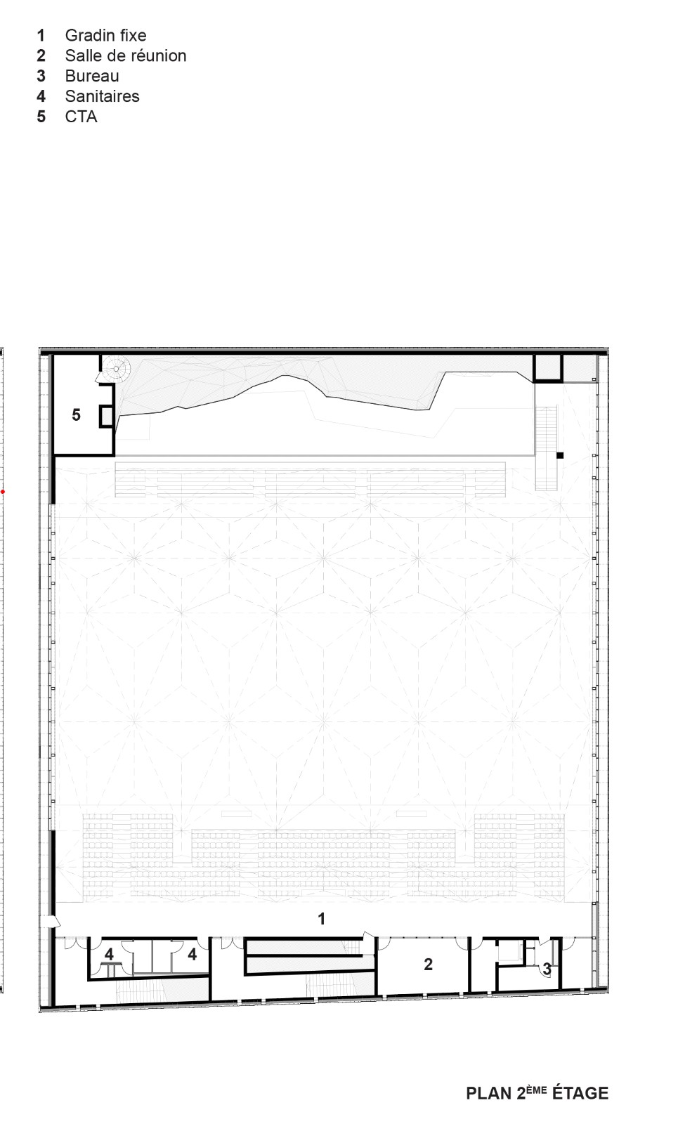
△二层平面图

△平面图

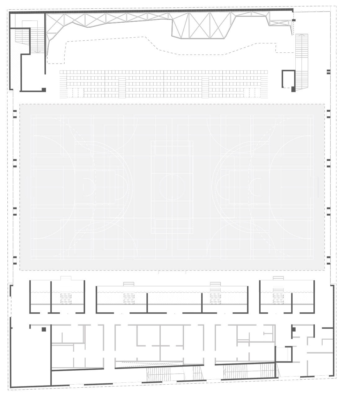
△三层平面图

△剖面图
项目信息
建筑设计: K architectures Sigwalt Herman
面积 : 4800 4800平方米
项目年份 : 2021
摄影师 :Sophie Oddo
厂家 : Ad Lucem Choc, Aperam, GUBI, HAY, Kartell, LIGNOTREND, Lintex
项目建筑师 : Camille Saint-Paul
结构工程师 : AIA LIFE DESIGNERS
声学顾问 : ITAC
地点 : 法国,Le Havre

BIM建筑网





评论前必须登录!
注册