
“形式是不受个人感情影响的,设计则是设计者个人的。设计是一种与环境有关的行为···形式则与环境条件无关”—《形式与设计》路易斯·康

项目位于四川省成都市双流区黄家镇王家场上街84号。
黄甲镇是成都市边缘的一个城镇,还未经过规整的城市规划的洗礼,所以整体保持着较为自然的状态。学校周边多为一二层的民房,顺应着现有街道自然布置。在学校所在的道路一侧,沿街面还算整齐,但背后的建筑高低错落,有机却略显杂乱。
学校原有两栋教学楼长向沿街布置,因其与周边规整建筑群的方向有所不同,在街道两侧的整体环境中建筑显得较为醒目。初到场地,面对周边的杂乱和原有教学楼“势单力薄”的情况,我们便有了引入秩序、加强学校氛围的想法,并以此为出发点,展开了我们的设计。


黄甲小学现有教学及辅助用房3870平方米,13个教学班。近年来黄甲街道发展较好,生源不断增加,现有教室数量及功能配套严重不足,无法满足现代化教育的教学需求,因此需对现有校园进行扩建。建设内容分为教学区及食堂区,其中新建教学区需容纳36班教室,图书馆,学术报告厅,及配套功能教室等。
扩建区域场地现状为坡地,高差较大。现状教学楼及运动场地之间有9M的高差,原状仅通过直跑楼梯及看台相连,安全隐患较大。


秩序整合
教学区
我们将扩建教学区按照功能拆分为不同的体量,以方形作为几何原型,每个体量通过拓展形成平面的几何单元,规整的布置在坡地的不同高度上,在高度上也通过有节奏的跌落产生立体的秩序。各个几何形体通过交通的有机连接,组合成错落的体块集群,整合周边环境。

主体教学楼体块在满足退距要求的范围内布置,摆布方向顺应校园现状建筑的肌理,并且与场地边界契合。报告厅及图书馆等公共空间结合地形高差,形成错落有序的校园空间。
从操场望去,可以看到这些体量被集中成了一个更有秩序的整体,不同功能体量的立面处理方式不同,又凸显了各个体量的节奏和对比,在整体中易于辨识。


食堂区
食堂因其功能需求和场地限制,采取了将方形几何体量叠合,集中成一个形体错落的单体建筑,并通过不同高度的出入口设置,顺应复杂的场地高差的同时又解决了复杂的流线问题。



看台区
现状教学区广场与运动场地高位为9M,原有看台以直跑楼梯作为学生主要的通行通道,安全隐患很大。新建的看台区域改为折线型多跑楼梯及坡道体系,提升通行的安全性,并满足校园内无障碍通行要求。


细部秩序
我们希望可以凸显建筑的体量感,因此没有在立面上使用过多的“力气”。立面处理多是规律的柱廊,简约的开窗等克制的手法,以此保持建筑体量的纯净。




结语
项目的建成总是伴随着喜悦与遗憾。
这是一个使用规定材料,平衡各方意见,在有限造价下快速推进的项目,我们希望通过这样的空间处理可以在有限的条件下为学生创造更高的校园品质。






项目图纸

△周边肌理图

△场地高差示意图

△体块生成示意图

△扩建教学区垂直交通体

△食堂体块生成示意图

△总平面图

△一层平面图

△二层平面图

△三层平面图

△四层平面图

△五层平面图

△教学区剖面图

△教学区立面图

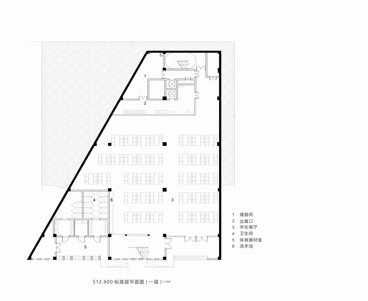
△食堂一层平面图

△食堂二层平面图

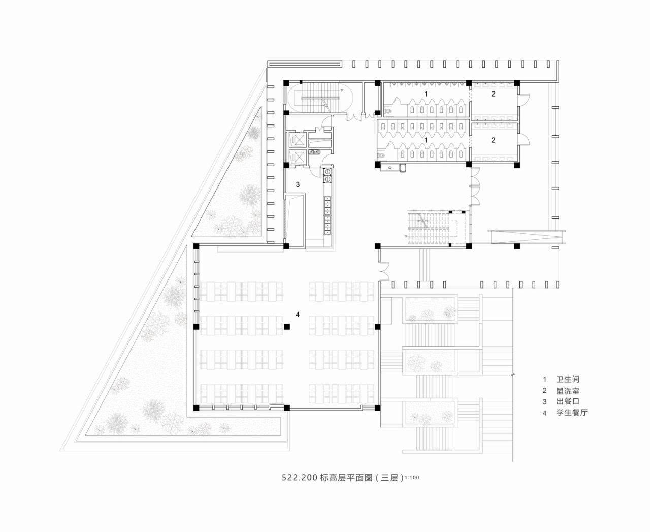
△食堂三层平面图

△食堂四层平面图

△食堂剖面图

△食堂立面图
项目信息
项目名称:黄甲小学扩建项目
设计方:成都本末建筑
公司公众号:本末建筑
项目设计 & 完成年份:2019.01设计&2021.07完成
主创及设计团队:史磊,刘博
项目地址:四川省成都市双流区黄家镇王家场上街84号
建筑面积:9956.13㎡
摄影版权:存在建筑
合作方:四川宽景建筑景观设计有限公司
材料:软瓷,玻璃,混凝土

BIM建筑网





评论前必须登录!
注册