
一、形态 围合“迷你城池”
温州市,经济发展的先发地区,以“敢为人先”的精神声名远扬。本案位于温州市龙湾区,基地周边的幼儿园设计都较为简单,我们试图在当地进行一个创新,在环境和规范的限制下为孩子们创造城市中的理想空间,通过对幼儿园的空间、外立面及色调等的精心设计,对周边环境起到辐射作用,以提升城市面貌。
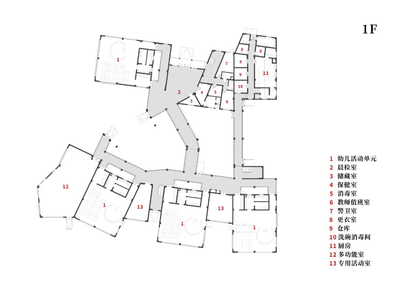
基地南侧和西侧紧邻城市公共绿地,东侧为住宅。用地范围大致为一个狭长的梯形,由于小区入口的干扰,设计师决定将北侧地块设置为停车场,将幼儿园建筑集中设置在入口以南地块。

⊙概念手绘

⊙形态生成
建筑以廊连系前后两排建筑,属于工字形平面组合,连廊靠高楼一侧布置,使中央形成了内聚庭院。串联两大中心景观和沿街绿化,同时根据功能上的分区形成横向景观轴,连廊由此延伸。依据交通流线布置的连廊将大空间切割成多处,然后将部分体块进行旋转和推拉,最终得出建筑形态。

⊙总平面图


此外,我们在设计过程中进行了另外一些方案的比选,从不同的角度探索了鼓励儿童亲近自然,创造富有趣味的多元化空间的理念。如以““破土 ▪ 生长”为概念,自北向南充分占据场地,层层升高,如内外无处不在的曲线感,还有去除连廊或者中央增加体块的尝试。

⊙方案比选
—— 游园 ——
我们最终选择了“廊腰缦回”的设计方案——游园,将北侧切割出去做停车场,使幼儿园建筑更具有整体性,使用者更加方便。同时在场地内已布置整体活动场地的情况下,希望通过连廊设计将中央半围合的场地进行重构,从建筑角度丰富这一区域的空间体验。

⊙鸟瞰效果图


二、折廊 构筑活力内核
“廊是联系建筑物的脉络,又常是风景的导游线。”连廊,室内和户外的延伸区,方便建筑体块之间的联系,本案中更将其作为庭院的一部分,借鉴中国古典园林的组织方式,以曲折的连廊在建筑中央构筑了空间活力核。
三层连廊总长约370米,南北向主要连廊有三条,其中两条连接门厅交通核,一条连接办公后勤用房。四通八达的连廊穿插在建筑中,既是空中通行廊道,又是孩子们追逐嬉戏的迷宫;3楼西侧倾斜的连廊滑梯直通对面2楼,更为这趟迷宫之旅增添几分乐趣。

⊙爆炸轴测图


当成年人和孩子一同玩捉迷藏时,很容易发现一些有趣的状况,孩子们常常躲在一眼就被发现的地方。他们身材矮小,视觉范围有限,过于宽广的尺度带给成人的空间感受是孩童难以去领会体验的。
连廊将宽广的建筑中央室外场地分隔而成了各处小庭院,绿色植物点缀其间,缩小了尺度感,使其更接近儿童的空间。小庭院的使用是灵活的,是既有活动场地的补充,存在模糊的可能性,等待孩子们用自己的想法去定义。



南北体块间的连廊是内部和外部空间之间的过渡与边界,融合互为对立的内外空间的特性。一部分连廊是由格栅围合,玻璃栏杆起保护作用,而另一部分则只有密林般的木栏杆提供必要的保护。两种连廊带给孩子们不同的空间感受,让他们穿梭时的体验更加丰富有趣。



三、视知觉 风格构成
建筑以大面积的白色真石漆和仿木纹的格栅营造简约自然又不失活泼的氛围,设计师从彼埃·蒙德里安的《红黄蓝的构成》提取出线条元素,并将其比例形式扩展运用到立面设计当中。
人类将获取的视觉信息经过大脑的二次加工,混合进去复杂的“经验”,就成为视知觉。设计师要想让使用者感知到传达的信息,就必须通过使用者可以获取的视觉元素进行表达。在幼儿建筑设计中,我们希望尊重孩童的世界,不再去以成人视角模拟孩童最终建造“迪士尼“式五彩斑斓的建筑,而是以简约经典,淡雅温暖的配色希望为幼儿审美和提高人文素养提供环境。

⊙实景|蒙德里安《红黄蓝的构成》


大面积窗户及廊空间都采用了大量的格栅,一方面可以遮挡太阳的直射,另一方面也形成了绝妙的光影视觉效果。我们特意选用仿木纹铝管制作的格栅,结合屋顶绿化及庭院,孩子们仿佛真的在林间穿梭,在大自然中游憩,在绿色、健康的环境呵护下茁壮成长。


以班级构成的模块凸出,倾斜的天际线变化略显俏皮,消解建筑体量带来的压迫感。屋面倾斜与立面设计两两对称,使这种变化具有了韵律感。




⊙立面图
四、引光 有机空间
当人们处在不同的色彩、光线影响下的环境中会产生不同的感受,因此根据功能分区需要差异化的设计。幼儿园整体室内设计以纯净素雅的白色、木色为主色调,开阔明亮的空间感觉为主,以留白去承载使用者的装点,整体氛围温暖舒适。


走廊的尺度相对房间则较小,拱形门洞的分隔视线通透,空间效果柔和,宽敞明亮的窗户引入外景,增加了空间的纵深感。宽度能够置放功能性的柜体,提升了空间利用率。

多功能厅是幼儿园内举办各种活动的场所,立面开窗面积大,布有格栅,在保证采光的同时避免阳光直射,方便多功能厅活动举办需求。室内以暖色为基调,色彩略显活泼,以此激起幼儿的活力。

幼儿园的十二个班级分成了四个三层的体块,我们在每个体块前都设计了天井,位置在幼儿生活单元的入口旁边。7×1.9m的天井三面格栅,不置顶盖,整体被包围在走道中。不像墙体围合的室内空间具有绝对的私密性和封闭性,又不完全具备开阔场地上室外空间明显的公共性和开放性。
天井作为具有模糊性的空间丰富了建筑序列感,格栅环绕,似明似暗,使人们在所处领域内产生很好的视觉效果和心理感知能力。同时也具有实际功能, 幼儿生活单元中北侧的盥洗室得以通过天井对外通风采光,这种设置不但适用而且隐蔽性强。

⊙天井位置示意图




结语
幼儿园是初步感受家庭之外世界的场所,我们希望为孩子们搭建一个充满可能性的自由天地,通过空间体验多样性,去刺激孩子们探索与发展自我思考的能力。同时在设计过程中,我们希望在空间中尊重儿童,“蹲下来”去倾听孩童的声音,体会建筑使用者的差异性、多样性和独立性。
项目信息
项目名称:国科温州第一幼儿园
地理位置:浙江省温州市瓯海大道
项目业主:温州万贤置业有限公司
项目功能:幼儿园
建筑面积:4800 ㎡
建筑设计:成执设计
设计总监:徐小康
设计团队:吴迪 金磊 周鑫健 刘冉
景观设计:上海森意景观设计有限公司
室内设计:浙江光年空间设计有限公司
施工图设计:浙江天然建筑设计有限公司
设计时间:2017.12 – 2018.04
竣工时间:2021.05
图文编排:成执品牌
项目摄影:行知影像

BIM建筑网





评论前必须登录!
注册