
可持续发展第一华盛顿的第一座公共建筑是使用镙丝层压木材(DLT)建造的,新的西南图书馆被认为是华盛顿特区的一个新地标。西南图书馆采用了大量的木材,补充了该地区中世纪的现代建筑特征,有着不同于附近建筑的大胆几何形状。 Perkins&Will 事务所与结构工程公司 StructureCraft 合作,在设计、细部设计和施工中最大限度地提高了DLT的审美、可持续性和效率。 虽然折叠式屋顶并不新鲜,但用镙丝层压木材制作折叠式屋顶却很并不常见,这需要设计师和工程师之间的紧密合作,以实现这一概念。


公园里的亭子-一份连接自然的邀请西南图书馆的设计概念是一个‘公园里的亭子’。它提供了鼓励社区探索图书馆的路径,并将其作为社区经验的一个直观部分。 图书馆采用了亲水设计,促进了用户与自然的联系,并创造了一种具有平静感和治愈感的氛围,促进了用户健康和幸福感的提升。从远处看,屋顶向公园开放,邀请公众进入。 屋顶提供了一个引人注目的视觉元素,让人联想到一本打开的书,同时创造了一个遮蔽的天棚,是建筑外树木的延伸。支撑屋顶的V形木柱进一步增强了建筑物给来访者带来的热情欢迎感受和安静优雅的氛围。进入室内后,宽大的窗户提供了自然界和周围公园美景的广阔视野,同时使室内充满了自然光。值得一提的是,90%以上的内部空间都可以看到外部景观。



可持续的公共空间在按照LEED铂金标准进行设计并采用对环境敏感的节能和节水策略的同时,设计团队还借鉴了研究结果,确定了图书馆在增加聚会空间、满足读者需求的适应性技术以及空间安排的更大灵活性方面的趋势。高性能的外墙捕捉北方的散射光,最大限度地提高建筑物周围的能见度,优化节能,并通过整合遮阳板来保持全天太阳变化时的舒适度。



其他对环境敏感的方面包括一个活的绿色屋顶,以产生氧气和吸收径流,以及每年产生超过16万千瓦时电力的光伏板,这相当于该建筑每年估计能源成本的约49%。
图书馆为儿童、青少年和成人扩大了会议空间,包括一个可容纳100人的会议室以及可容纳12至20人的小空间。 建筑物本身就是一个教育案例,使工作人员和其他人能够引此来教导环境保护的重要性。













项目图纸

△ 总平面图

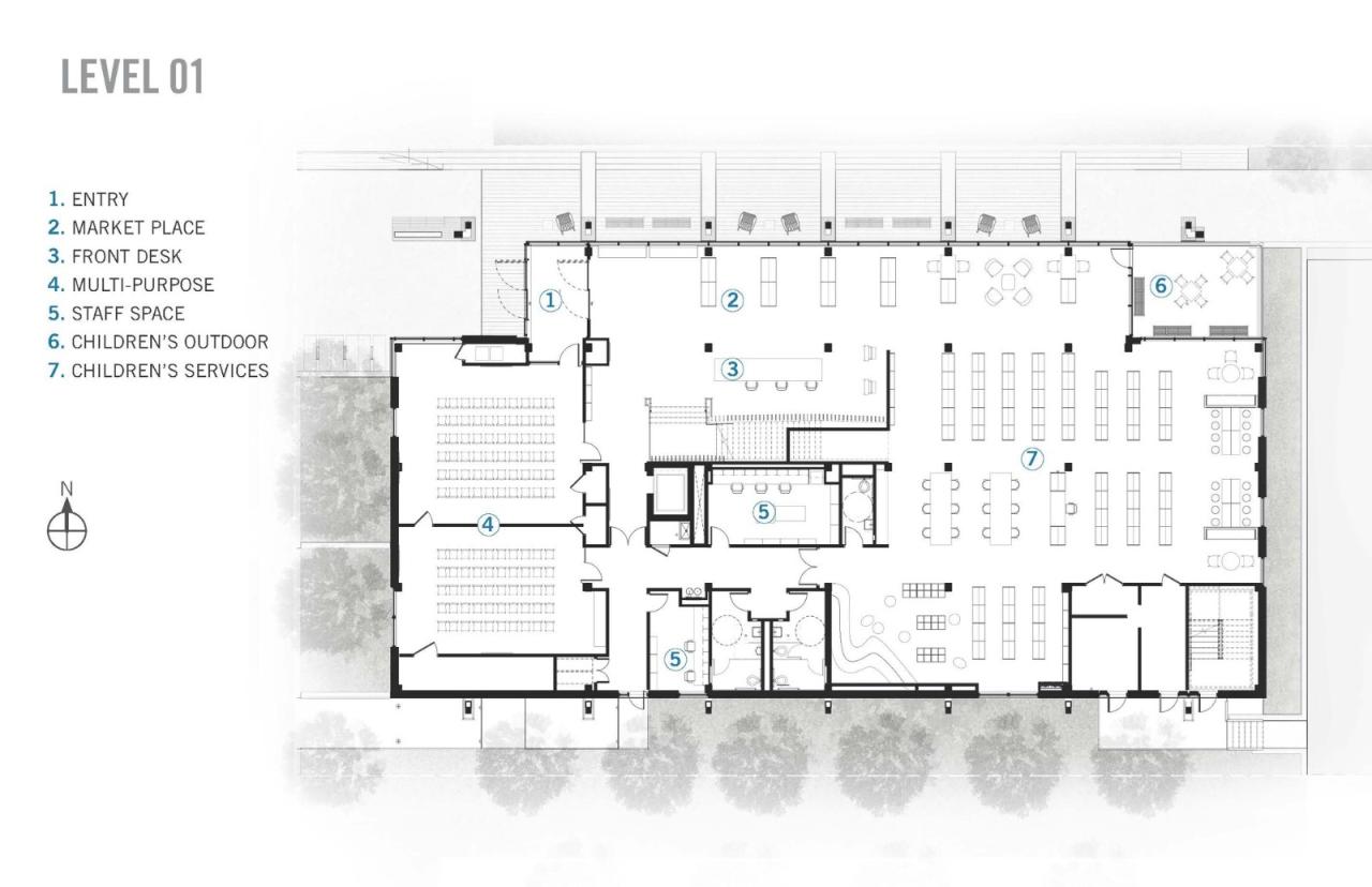
△ 一层平面图

△ 二层平面图
项目信息
建筑设计 :Perkins and Will
面积 :2200022000平方英尺(2043.8平方米)
项目年份 :2021
摄影师 :James Steinkamp Photography
厂家 : Interface,Finelite,Herman Miller,Kirei,Moz Designs,Naughtone,Spacesaver,Steelcase,StructureCraft,SunPower X-Series,Vitra Stackable,Vitro Solar Volt
主创建筑师 :Carl Knutson, Nancy Gribeluk, Joshua Rubin, Kate Currie
设计负责人 :Carl Knutson
管理负责人 :Nancy Gribeluk
高级项目架构师 :Joshua Rubin
高级室内设计师 :Kate Currie
项目建筑师 :Ben Shealy
设计师 :Keegan Wilson
设计建造 :Joelle Friedlander – Turner Construction
总承包商 :Joelle Friedlander – Turner Construction
景观建筑师 :Joseph Chambers – Landscape Architecture Bureau LLC
土木工程师 :Joseph Mensch – Wiles Mensch Corporation
结构工程师 :Jordan Henderson – StructureCraft Builders
机械、电气及管道工程师 :Craig Turner – Limback Engineering
库编程顾问 :Kathryn Taylor – Kathryn Taylor Design
声学顾问 :Timberly Dinglas – Cerami & Associates
LEED 顾问 :Marisa Britton – Sustanainable Design Consulting LLC
地点 :美国,Washington D. C.

BIM建筑网





评论前必须登录!
注册