
诺维奇城市学院的数字学习中心为学院的技术、工程和设计课程提供了集合在一座建筑中的空间。该建筑还构成了校园的落地空间和正式的入口。随着时间的推移,这所学校已经发展成为英国最大的继续教育和高等教育学院之一。受工厂影响的设计将数字技术定位为一种当代产业,从标准的校园环境中转变出来,提供了一个有创造力与充满光线的氛围,使学生们充满活力。

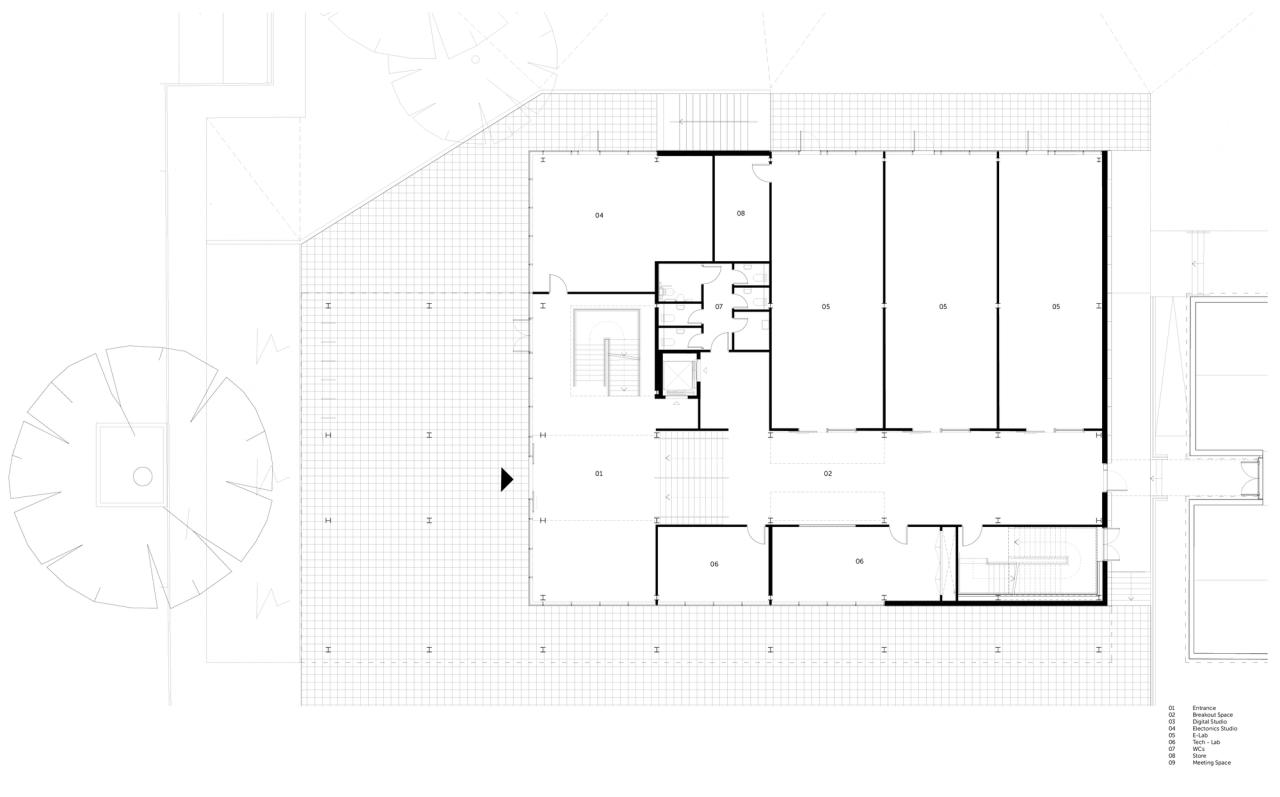
数字技术工厂包括2,877平方米的教学、学习和社交空间,供将近500名学生使用。整座工厂除了普通的教室和辅助空间之外,还包括机器人实验室、数字工作室和电子实验室。这座建筑还设有带顶棚的外部空间,以促进社会互动,并在雨天保护工作人员和学生免受天气的影响。

数字技术工厂位于拥有黑色木质外墙的创意艺术大楼(由BDP公司于2013年完成)旁边,通过在设计中形成一个对位的效果,它与相邻的建筑得到了互补。本着工业设计的精神,围护结构由现成的部件组成,包括一个暴露在外的钢架网格和一个由轻质复合板和玻璃组成的保温围护结构。

白色粉末涂层铝网或是波纹铝板的外部界面统一了建筑形式,调节了室内与室外的环境,这是一座轻盈的建筑。

光线操纵是Coffey建筑事务所设计实践的核心原则,经常通过使用外部界面来提供光线、纹理的变化和环境控制来进行探索。在这个案例中,建筑的外部面板能够根据一天中时间的变化而与自然光或人工光发生交互:白天,自然阳光通过面板扩散到室内,而到了晚上,来自建筑内部空间的光线激活了立面,扩展了建筑与外部校园的关系。为了向建筑内研究的学科致敬,这些面板上的激光切割穿孔图案从二进制代码和历史悠久的计算机打孔纸带中获得了灵感。

入口和接待区位于建筑的中心位置,朝向东南,通过有顶棚的外部广场进入。从这个大厅可以看到主楼梯和电梯,上面的大面积屋顶光源和中庭使空间充满了光线。这种简单的设置建立了一个开放和温馨的学习环境。当你向上层移动时,尽管楼层面积不大,但明亮和通透的感觉依然存在,这是通过走廊两端的屋顶采光井和每一层的通高空间的结合而实现的。内部走廊上排列着落地窗,当你走过时,通过落地窗便可以看到实验室的内部空间,从而利用观察式学习激发创造力。底层下沉至场地的地形中,实验室里也有落地窗,向外便可以看到花园空间。


室内设计反映了数字 "工厂 "的叙述方式,以暴露的结构和服务空间为特色,让学生、员工和访客通过可见的机械装置了解建筑的工作原理。从建筑的教育用途上讲,这也是很重要的,这也为后勤服务提供了灵活性,便于未来的修改。与建筑的外观相同,大部分内部空间被漆成白色,而整个建筑的开口处使用了明亮的黄色来标记。


由于社会互动是该设计的一个显著特点,建筑内拥有大量的社交机会。虽然有顶棚的广场是建筑的主要社交空间,但诸如超宽的走廊等细节设计便是为了鼓励人们在课程与教学之间进行社交,同时周围的景观也得到了加强,以增加户外社交空间的可达性。

该设计还包括了改进自行车道和人行道,调整了停车空间来改善交通流线。每个不同的区域都有着明确的分界线,使用了铝制护栏与不锈钢的自行车架,运用了集中色调的材质,以减少视觉上的混乱,同时有助于寻找方向。














项目图纸

△总平面图

△一层平面图

△二层平面图

△三层平面图

△四层平面图

△屋顶平面图

△剖面图

△剖面图

△剖面图
项目信息
建筑设计 :Coffey Architects
项目年份 :2021
项目地点:英国
项目面积:2877平方米

BIM建筑网





评论前必须登录!
注册