
世宗文化艺术会馆最基础的建筑外形设计理念是从土地中切出表面,以将构筑物的两端抬离地面。项目对场地两端进行切割,朝向相反方向升起,建筑师意在将两个前侧立面朝向城市与公园打开。这样一来,文化艺术会馆的两个前侧面就可同时提供两种不同朝向的城市视角。

建筑师的其中一个目标是在切割表面和抬升部位的下方展现挖掘而出的空隙,使其与地面节奏相连续,继而在视觉上与场地体量相当。为此,从屋顶到大厅的墙壁就必须是连续的,其细节则都建立在“零维度”的概念前提之上,即屋顶与天花板间的分离边界不存在任何表面。

项目与地面共同构成了一个连续体,场地中心作为空域,一个碗状的巨大反向拱形于此向外延伸,在天空之下拥抱周围景观。顺着这一延伸方向,陆地的运动就有如波浪或水波纹,引导行人逐步接近建筑物的入口。

在这趟参访旅程的终点,来访者会立于表演大厅前方,也就是整个区域的向心汇聚点。建筑师希望这一大厅可成为原点,给来访者提供重新感受全部感官体验的契机。同时,环绕舞台的荡漾声光则有如数个喇叭所形成的回响。由这些声光效果所塑造的感受将会一次次地反馈给表演者们。










项目图纸

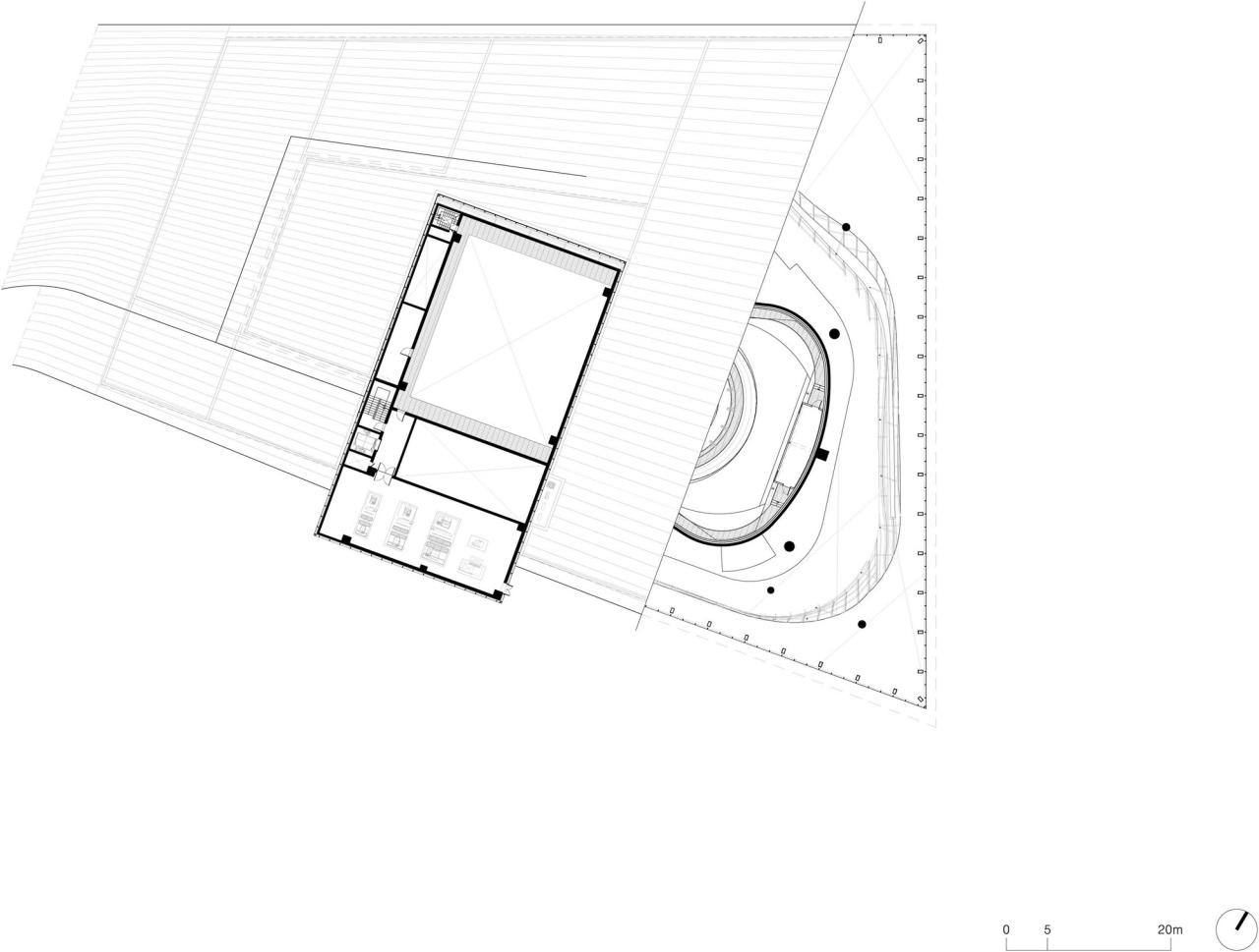
△总平面图

△一层平面图

△二层平面图

△三层平面图

△四层平面图

△立面图

△立面图

△立面图

△剖面图

△剖面图

△细部大样图

△细部大样图
项目信息
建筑设计 : Designcamp Moonpark dmp
面积 : 7304 m²
项目年份 : 2021
摄影师 :Yoon Joon Hwan
设计总监 : Ho-keun Oh
设计团队 : Se-hwan Park, Ji-wan Kim, Sung-woo Moon, Soo-kyoung Lim, Jung-hwa Lee
结构工程师 : challenging partners CLS ENG
土木工程师 : Daekyo E&C
景观建筑师 : SOLTO
灯光设计师 : C&C Lightway
声学设计 : d&c
地点 : 韩国,Yeongi-gun

BIM建筑网





评论前必须登录!
注册