以不锈钢拱廊框架构筑的跑者服务站
此跑者服务站作为公共设施建于北京奥林匹克森林公园(以下简称为“奥森公园”)。如国内的其他体育公园一样,作为2008年奥运会配套设施而建成的奥森公园,旨在为公众提供更好的服务。受奥森公园方委托,TEMP工作室设计了具有不锈钢拱廊框架结构的跑者服务站,在这个被誉称为北京“跑步圣地”的公园,构建出一方实用与美学相平衡的公共空间,集合了社交、休息、淋浴、物品寄存、自动售货等多重功能。



为跑者定制的完整服务
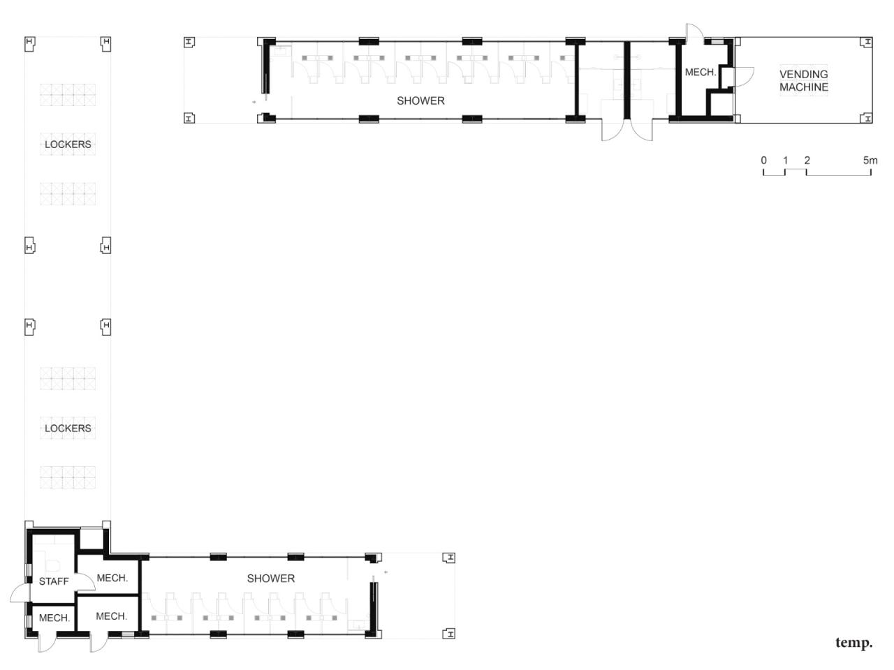
服务站位于公园的一处开放地块,建筑主体延伸出两翼结构,圈定一隅方形空间。建筑内设有男士及女士淋浴间。

△分析图 © TEMP


TEMP团队在现场调研中观察到,由于缺乏独立的拉伸设施,跑者们会在附近的岩石或树木枝干等自然支撑物上做拉伸,存在潜在的安全隐患。针对这一需求,建筑师提出设置数根拉伸栏杆,它们弯曲起伏、高低错落,兼顾所有体型的使用者。此外,白色的弧形栏杆呼应周边生长的树木,在视觉上与恣意伸展的枝杈以及树干涂白和谐共存。

△拉伸栏杆 © TEMP


开放性与隐私性兼具的拱廊
拱廊在建筑中以不同形态发挥了多种作用,平衡了直线结构的刚硬观感。







跑者服务站的拱廊两端开放,与广场融为一体,使用者可从任意方向自由进出。寄存柜组位于几座拱门内。凭借平缓或陡峭的曲线,拱廊整体外观表现出极富对称性的艺术感。



淋浴间位于一系列造型一致、连贯出现的拱门之中。设施充分发挥磨砂玻璃的优势,在保障使用者隐私的同时合理利用自然光采光。





当人们走过服务站内部的通道时,往后倒退的隔断拱廊框架也强化了建筑物作为公共设施的角色——用兼具审美与设计价值的功能性设施,更好地为本地居民生活提供服务。



项目图纸





△模型图 © TEMP

△平面图 © TEMP
项目信息
项目名称:北京奥林匹克森林公园跑者服务站
项目业主:北京奥林匹克森林公园
项目位置:北京奥林匹克森林公园
项目面积:300平方米
设计类型:建筑设计
设计公司:TEMP(http://te-mp.org/)
设计主创:金智虎
设计团队:关童心、丁耀东、饶尧、程子芮
施工时间:2021.04
完工时间:2021.12
项目摄影:金伟琦

BIM建筑网





评论前必须登录!
注册