
人人馆——杨浦滨江公共空间二期的配套服务用房/杨浦滨江人民城市建设展示馆,位于黄浦江边杨树浦港“人人屋”西北方向,这里曾是始建于1902年的祥泰木行旧址。总建筑面积1410平方米,为地上两层、地下一层建筑,其中地下层及地面首层为混凝土结构,地上二层为木结构。建筑地上面积为755平方米,地下面积为655平方米,建筑高度8米。

建筑形体在规则长方形的基础上植入通透的中间层,使60米长的体量拆分为上下两个部分:上部为轻盈温暖的木材下部为厚重沉稳的混凝土。上部形体一部分向下延伸,下部形体一部分向上拓展,形成交融与渗透关系。因其上下分离的体量特征和绝佳的观景位置,人人馆也被称为“坐石观云”。


建筑地面以上部分采用纵横木梁错叠铰支钢木复合结构, 地下基坑及地下室外墙为混凝土结构,地下一层及一层为钢结构框架结构,地上二层为钢木混合结构。上部结构采用钢柱、木梁的结构体系,钢柱截面为150*200,木梁截面为180*400。木梁采用双梁夹钢柱、纵横分离叠加的形式。木梁与钢柱之间通过钢牛腿支托,x 方向木梁开槽限位、y 方向锚栓限位。通过这样的方式较好的解决了不同材料结构构件之间的连接问题。


纵横叠加的木梁形式一方面回应了中国传统木构的抬梁形制,另一方面则是以相互之间脱离的构件来强化构件本身,解决了不同材料构件之间的连接问题。与此同时,这种建构模式也形成了一个“有厚度”的结构空间,使中间层的状态更为立体与松散,与景观的因借引用关系也更为自然。


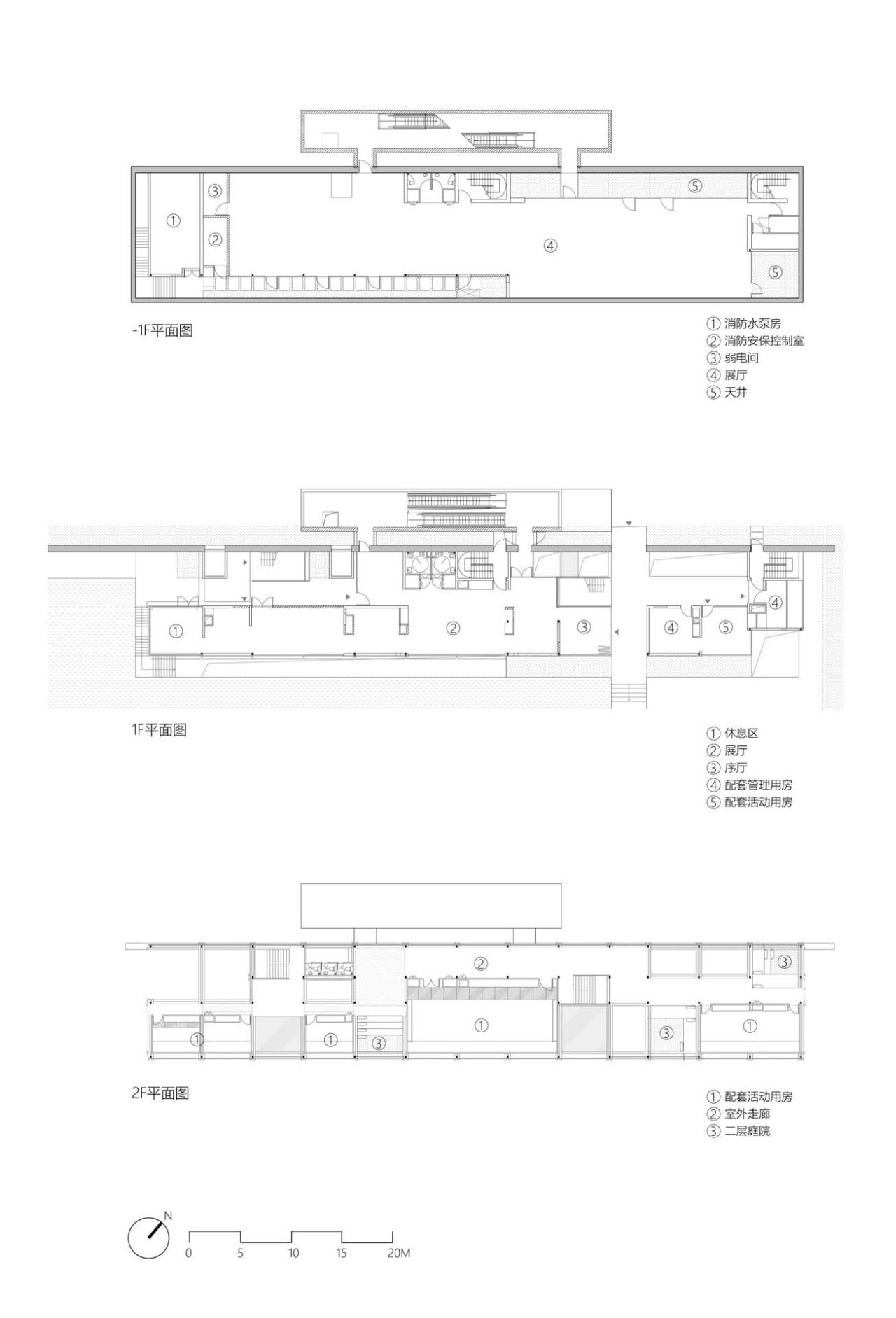
内部功能空间以离散分布的方式布置,将外部的景观空间同室内相容,形成景观、城市环境同建筑充分结合的建筑布局。









项目图纸

△轴测图

△平面图

△立面图

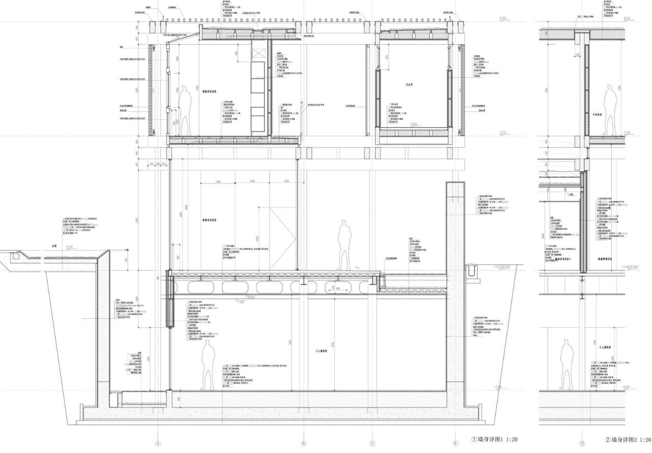
△剖面图

△墙身大样图

△剖透视

△拆解分析图

△节点图
项目信息
建筑设计:同济原作设计工作室
面积:1410m²
项目年份:2020
摄影师:章鱼见筑
主创建筑师:章明、张姿、秦曙
设计团队:李雪峰、羊青园、张奕晨(实习)、余点(实习)、刘静怡(实习)
业主:杨浦滨江投资发展有限公司
地点:中国,上海

BIM建筑网





评论前必须登录!
注册