
大同艺术博物馆作为中国重要的全新文化目的地之一,即将向公众开放,并将以本土艺术家的油画作为首次特展的内容。这一建筑也是大同新城文化广场区的四大建筑之一,其旨在成为该区域全新的创意产业中心。大同艺术博物馆如雕塑般的外形自然地从景观中升起,就像是一系列相互连接的金字塔显露了它们的“冰山一角”。建筑中,部分展览空间沉入地下,其周围则环绕着景观广场。此外,博物馆还配有与文化展览功能相辅相成的教育及学习空间,其中包括了儿童艺术画廊、媒体博物馆、档案馆以及艺术品存储设施。

Foster + Partners建筑事务所的工作室负责人Luke Fox表示:“博物馆常被视为人们的社交枢纽,因此,大同艺术博物馆作为这座城市的‘城市会客厅’,它将带领人们、艺术品和艺术家聚集于这个可以让他们互动的场所。而博物馆的核心区‘中央大画廊’则进一步地诠释了这种精神,其宽敞、灵活的展览空间设计旨在容纳特别委托的大型艺术作品、表演艺术及其他特殊活动。”

博物馆周围有着强烈语言的景观设计中的对角线小径将逐步引导人们进入博物馆内。建筑的主入口则是一个蜿蜒的坡道,它带领人们走到开放的下沉广场中,并且,这一广场也是一个可以进行户外表演的圆形剧场。进入建筑后,人们将首先抵达夹层空间,一览中央大画廊的全景。这一空间作为馆内的社交核心,其高37米,跨度则仅80米。此外,控制展览空间内微气候的区域则被单独设计在博物馆外围一层中,以此方便相关人员前往。大同艺术博物馆的另一关键则在于它对教育与学习的侧重设计:馆内设有一个专门的儿童艺术画廊,它有着高大的朝南窗户,因此这一空间将充满温暖的自然光线。同时,较小体积的教育中心和媒体图书馆则与其他教育功能区域相辅相成,为博物馆提供了艺术家驻地、讲座和会议等的设施。

建筑屋顶由四个相互连接的金字塔结构构成。这四个金字塔的高度逐级递增,并朝文化广场的四个角落展开。自然光线则通过每个金字塔顶端的屋顶流入室内。此外,屋顶的折线设计也直接呼应了建筑内的大跨度结构:造型与结构共同运作,为博物馆打造了巨大的、灵活的无柱体量。同时,以中央大画廊为核心,较小的展览空间则环绕着建筑周边布置。另外,屋顶覆有自然氧化的弯曲金属钢板,以此帮助整体进行排水,同时也为建筑表面打造了丰富的三维质感。这一面板的比例尺度正适合大规模的博物馆,其线性排布也进一步地突出了金字塔形屋顶的形态。

建筑整体仿佛沉入了城市文化广场之中,其在尺度设计上与邻近的文化设施息息相关,从而平衡了这一区域总体规划的构成,并最大限度地扩充了内部空间的体积。在白天,每个金字塔体块的天窗都为室内引入了丰盈的自然光线。在晚上,建筑则可以成为新文化区独树一帜的灯塔。

大同艺术博物馆的高效被动式设计响应了大同本地的气候。其高层天窗利用了建筑北侧和西侧的自然条件,并让自然光帮助建筑进行开窗设计,同时也最大限度地减少太阳能增益,从而确保内部有着艺术品展览的最佳环境。此外,建筑与其高性能的立面一起“沉入”地下,因此进一步地减少了对能源的需求。而大部分屋顶是保温的,隔热层也达到了建筑规范要求的两倍。
Foster + Partners 工作室负责人 Luke Fox补充道:“我们为未来而设计,并希望大同艺术博物馆能成为这座城市文化生活的中心,也能成为一个充满活力的公共出游目的地。”

项目图纸

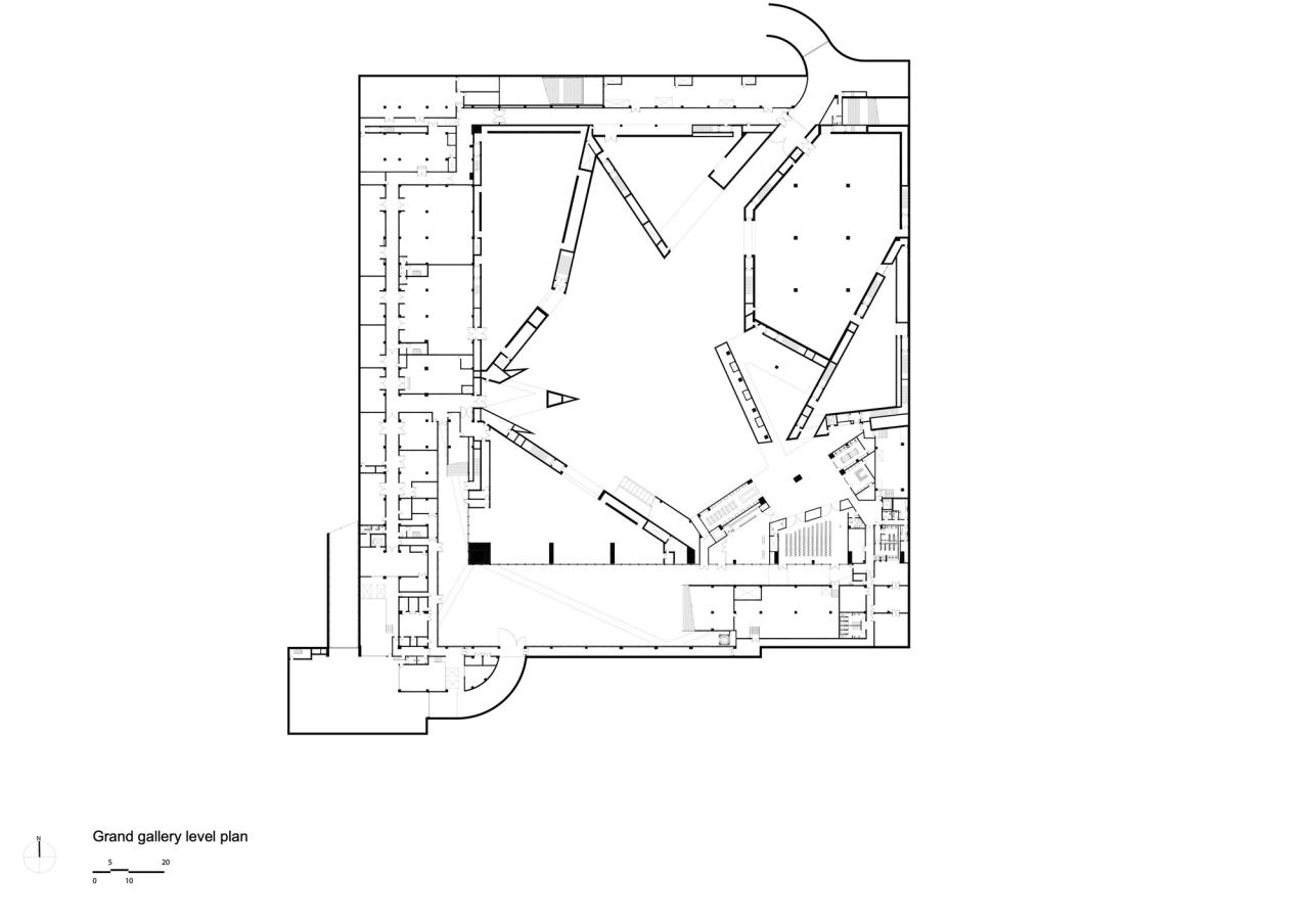
△一层平面图

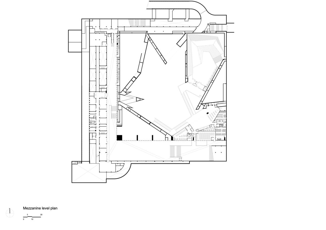
△二层平面图

△屋顶平面图

△立面图

△立面图

△立面图

△立面图

△剖面图
项目信息
建筑设计:Foster + Partners
面积:32000m²
项目年份:2021
摄影师:Yang Chaoying
设计团队:Norman Foster David Nelson Spencer de Grey Luke Fox Michael Gentz Zheng Yu Meng Xia Loretta Law Bartenis Siaulytis Yasuko Tarumi Ahmed Hosny Mitsunori Sano Pil-Joon Jeon Yung Kim
合作建筑师:中国建筑设计研究院
主承包商:中国中铁航空港建设集团, 中国中铁航空港建设集团
结构工程:中国建筑设计研究院
灯光顾问:Claude Engle BPI+THU
景观设计:AECOM
博物馆顾问:Lord
地点:中国,大同市

BIM建筑网





评论前必须登录!
注册