
肯辛顿学习空间是属于孩子们学习空间的一种新概念,包括了学习空间,游戏空间和自然空间。该项目位于曼谷郊区,周围环境比较普通。因此,平面布局意在创造一种独有的氛围。
学习空间主要区分为教室和体育馆这两个主要功能。房间的设计让其富有多种功能和不同尺寸,希望每种功能都融入自然环境,自然光线充足,窗外绿树成荫。

选择带有中庭的椭圆形,使所有房间的两侧都可以看到自然景色。房间大小的变化对应不同的功能要求。较宽敞的部分位于建筑物的前部,用于运动综合区,而较窄的部分则位于后排人不多的位置,用作教室。
设计成这样的形状是希望能引起孩子们的注意并鼓励他们去获取知识。带状的连续平面从地板延伸到屋顶,使建筑成为孩子们都想探索的巨大游戏框架。


在建筑物内部,多种多样的空间被创建,去满足每种独立的的功能需求。 以适应每个单独的功能。健身房下的半开放空间设置为游泳池,从墙到天花板的平滑连接表面,尾部带着一点绿意盎然,创造出了像洞穴一样的空间,为孩子们带来了冒险的感觉。专为健身服设计的无柱大空间,功能灵活,且能为孩子们提供自由自在的游戏空间。建筑物较为狭窄部分的教室使自然更加贴近,让所有孩子都能在树丛中学习。


就像丝带一样从地板到天花板折叠的特色空间为孩子们创造了不寻常的感觉,其坡度和曲线形状意在刺激提高孩子们的学习能力。下层曲线部分是与接待处和咖啡厅相连的自由活动空间。为了与第二层相连添加了倾斜面。它也有着带有游戏功能的滑梯,网状树从地面延续到天花板,穿透到第二层。不仅如此,在斜坡面下方还设计了儿童躲猫猫的空间。对于上层的曲线部分,是一个可以作为孩子们表演和开家长会的礼堂,可作为座位的台阶沿着建筑的形态分布。


在丝带状结构的外部,从地面到顶部被无间断的连接起来,为奔向阶梯屋顶花园的孩子们提供了玩耍的通道。通过多个渐变步骤,该空间被设计为能同时用于不同类型游戏的空间。整个空间被有意的设计成为一个轻松又有趣味的地方,同时与周围的绿色大自然氛围融为一体,成为一个坐落在大自然中的学习和游戏的地方。











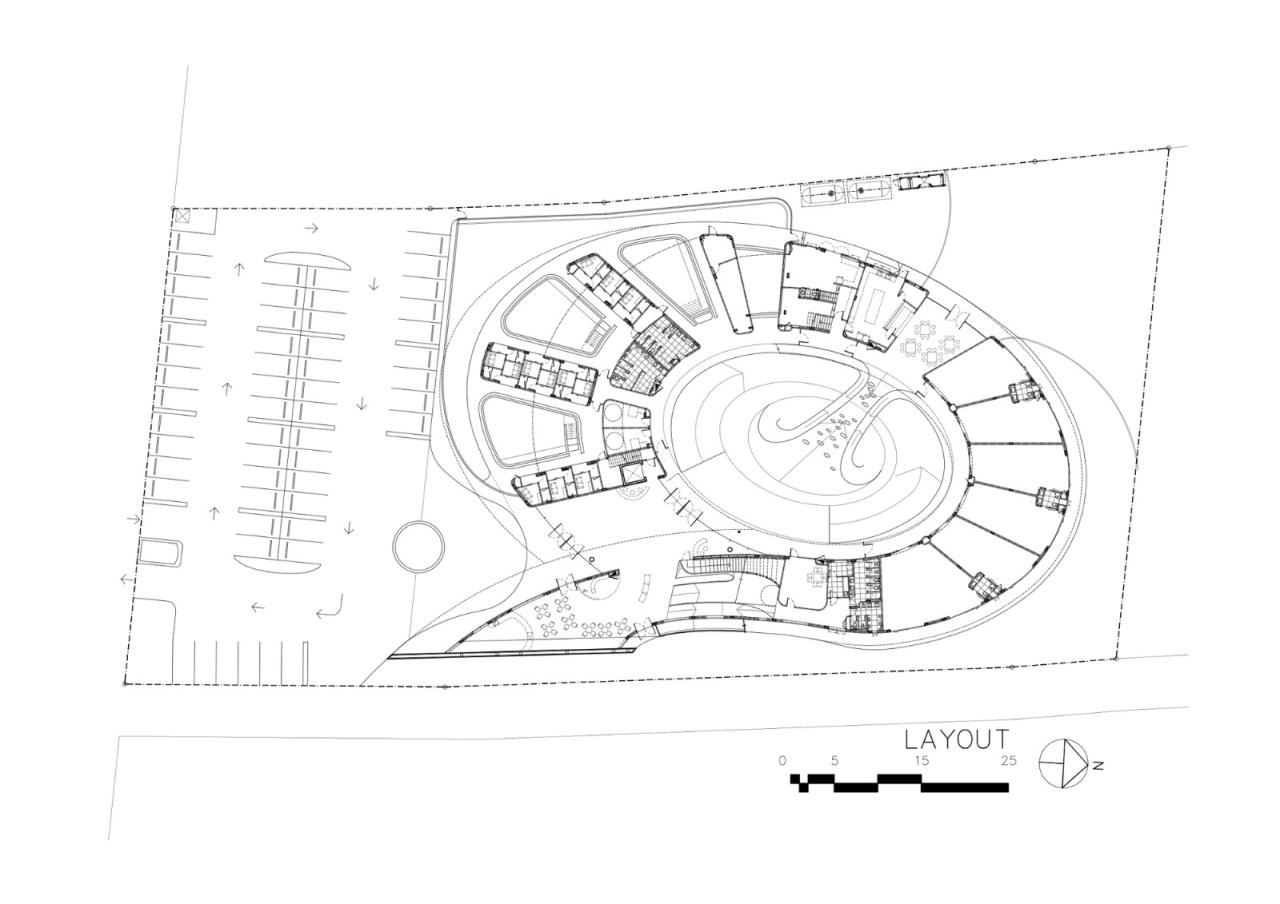
项目图纸

△基地

△一层平面图

△二层平面图

△三层平面图

△屋顶平面图

△立面图

△立面图

△立面图

△立面图

△剖面图

△剖面图

△一层功能分区

△二层功能分区

△三层功能分区

△屋顶功能分区

△一形体生成图
项目信息
建筑设计:Plan Architect
面积:4000 m²
项目年份:2020
摄影师:Ketsiree Wongwan
厂家:SCG, SK Kaken, TOA, WDC, WILLY
主创建筑师:Wara Jithpratugs, Premprajak Teyarajkul
客户:Kensington International Kindergarten
结构工程师:Prawit Phanwiroj, Arthit Petchsasithon,Nattapon Wathanamunkong
地点:泰国

BIM建筑网





评论前必须登录!
注册