
环境始终是建筑创作过程中非常重要的影响因素之一。在充分考虑环境因素的基础上建成的建筑将对其所处的环境产生积极的影响和贡献。越南槟椥 TTC Elite Ben Tre 幼儿园就是这样一个项目,它营造出安和宁静的氛围,将人、自然和槟椥当地深厚的文化融为一体。项目所在的半岛气候温和,是美丽的翠龙河形成的冲积平原之一。


为了与这片土地的美丽自然与丰富人文相匹配,建筑师采用了越南传统的建筑语言,例如敞开式的格局,在丰富的剖面中展开建筑平面的布置,让建筑内外更好地拥抱自然。

幼儿园由两个独立的部分构成:一个是山坡的形式,山坡之上一个是规整的几何形状的体量。这个规整的体量为孩子们的艺术培养和室内活动提供了优质的空间,同时为全景式的城市风貌提供了理想的观赏点。该体量下部的“山坡”空间,是幼儿园的核心组成部分。其中包括由大型多功能厅连接起来的教室,用于进行日常和特殊场合的各种教育活动。



在这个多功能大厅中有一个大型的景观游乐场,敞开式的格局让空间与其他部分紧密相连,是孩子们和父母亲全天候互动游戏和交流的理想之地。槟椥是湄公河三角洲内一个相对平坦的区域。山丘的建筑形象为城市带来了更多的起伏变化,十分新颖。场地西侧面向Trúc Giang 湖,因此建筑从西向东逐渐起坡抬升,并在坡的顶部置入方形体量。这种处理场地的方式改变了现有的一成不变的城市结构,让幼儿园的氛围更加活泼。周围的居民和山坡上玩耍的孩子之间也能产生视觉交流。可以说,建筑不仅很好地对自然敞开,也巧妙地融入到了社区内部。



山坡部分是该幼儿园项目最为重要也最具特色的部分,它能够激发孩子们的好奇心,为他们带来多重感官体验。孩子们在山间嬉闹、学习和活动,兴奋地感受着周围环境,质疑着,探索着,期待着。体验式的幼儿园生活,让孩子们在各个方面都能得到锻炼和成长。









项目图纸

△模型图

△模型图

△区位示意图

△一层平面图

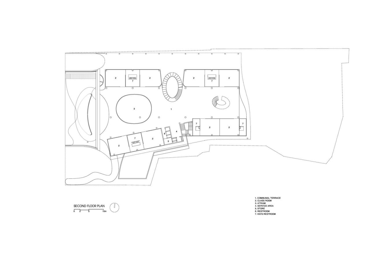
△二层平面图

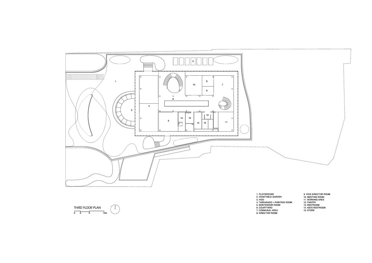
△三层平面图

△四层平面图

△立面图

△剖面图

△分析图

△手绘图

△手绘图

△鸟瞰图

△屋顶光线图
项目信息
建筑师:KIENTRUC O
面积:1491 m²
项目年份:2017
摄影师:Hiroyuki Oki
厂家: Caldivi, Dulux, INAX, Schneider Electric, Xinfa
Lead Architects:Đàm Vũ
Design Team:An-Ni Lê, Việt Nguyễn, Phương Đoàn, Duy Tăng, Dân Hồ, Tài Nguyễn, Giang Lê
地点:越南,Bến Tre

BIM建筑网





评论前必须登录!
注册