
节语间酒店位于水乡乌镇一处由多条河流交汇形成的半岛三角洲。具有私密性甚至有些神秘色彩的场地引导我们将酒店定义为一个宁静、内省的场所。

江南水乡临水而居、沿河为宅的建筑文脉成为节语间酒店建筑概念的缘起。一个贯穿五层空间的中庭成为酒店内部空间组织的核心,一系列连桥漂浮于中庭之中,连接客房与公共走道。旅客穿越连桥进入各自的房间,体验与众不同的旅居仪式感。


中庭北侧层层叠落的客房形成退台式的景观露台,在获取更佳的河流视野同时,为旅客提供了室外休憩的空间。可开启的铝木格栅屏幕包裹了中庭南侧临街的立面,在建立起室内与室外模糊联系的同时,也为中庭提供微妙的自然光以及舒适的微气候。


酒店的室内设计从当地的空间传统以及水乡宁静的环境获取灵感,自然的木材、工匠手工完成的抹灰、定制的水磨石墙面和地面,以及精心设计的艺术品,贯穿了酒店的室内空间。一个具有雕塑感的旋转楼梯将住客从酒店大堂引入中庭。

酒店包含多达8种不同类型的客房,包括紧凑而充满自然光的单人房,拥有绝佳河景的双人房,乃至享有私人空中花园的跃层套房。在酒店的首层,餐厅面朝半岛的花园景观开放,连系起酒店的室内及室外空间。








项目图纸

△总平面图

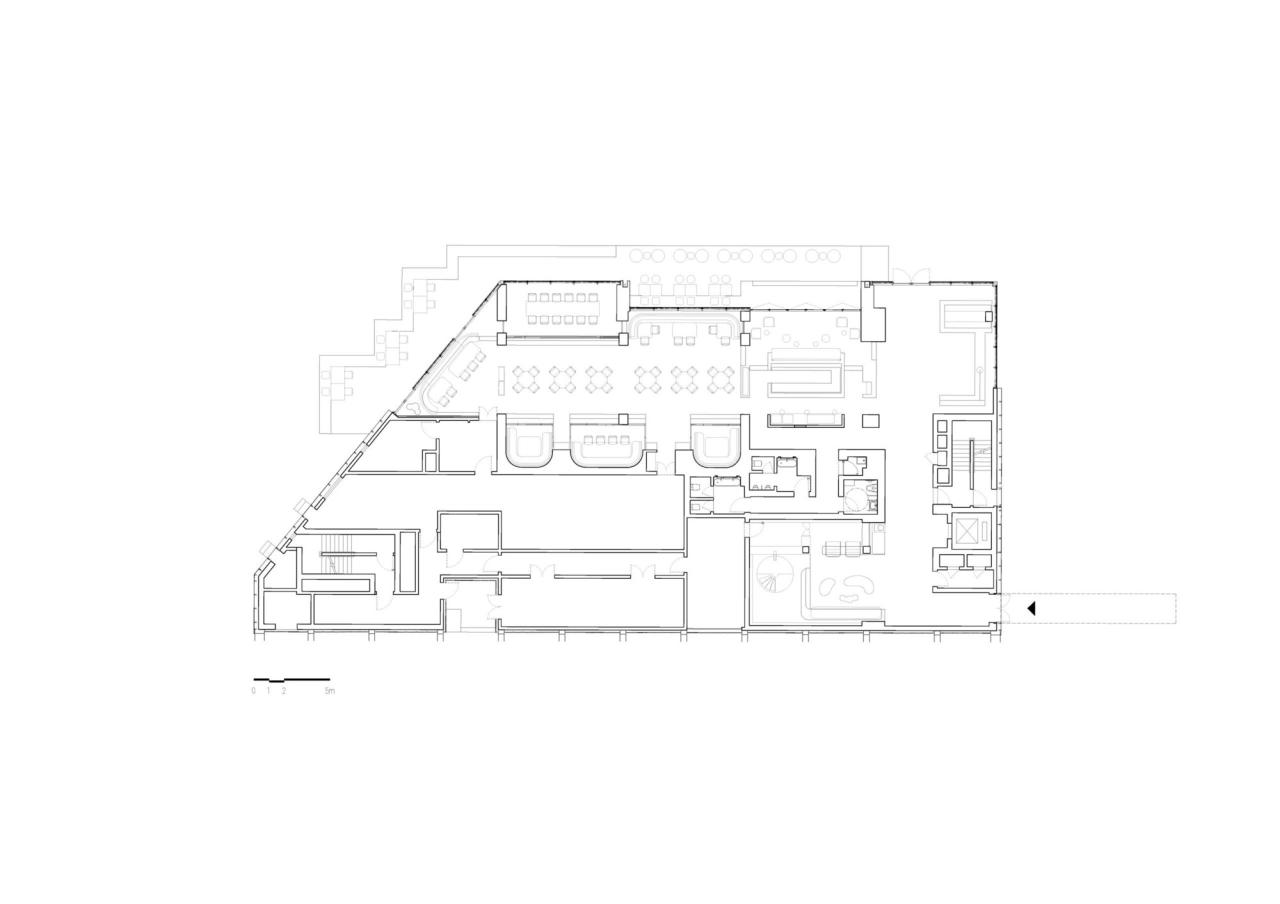
△一层平面图

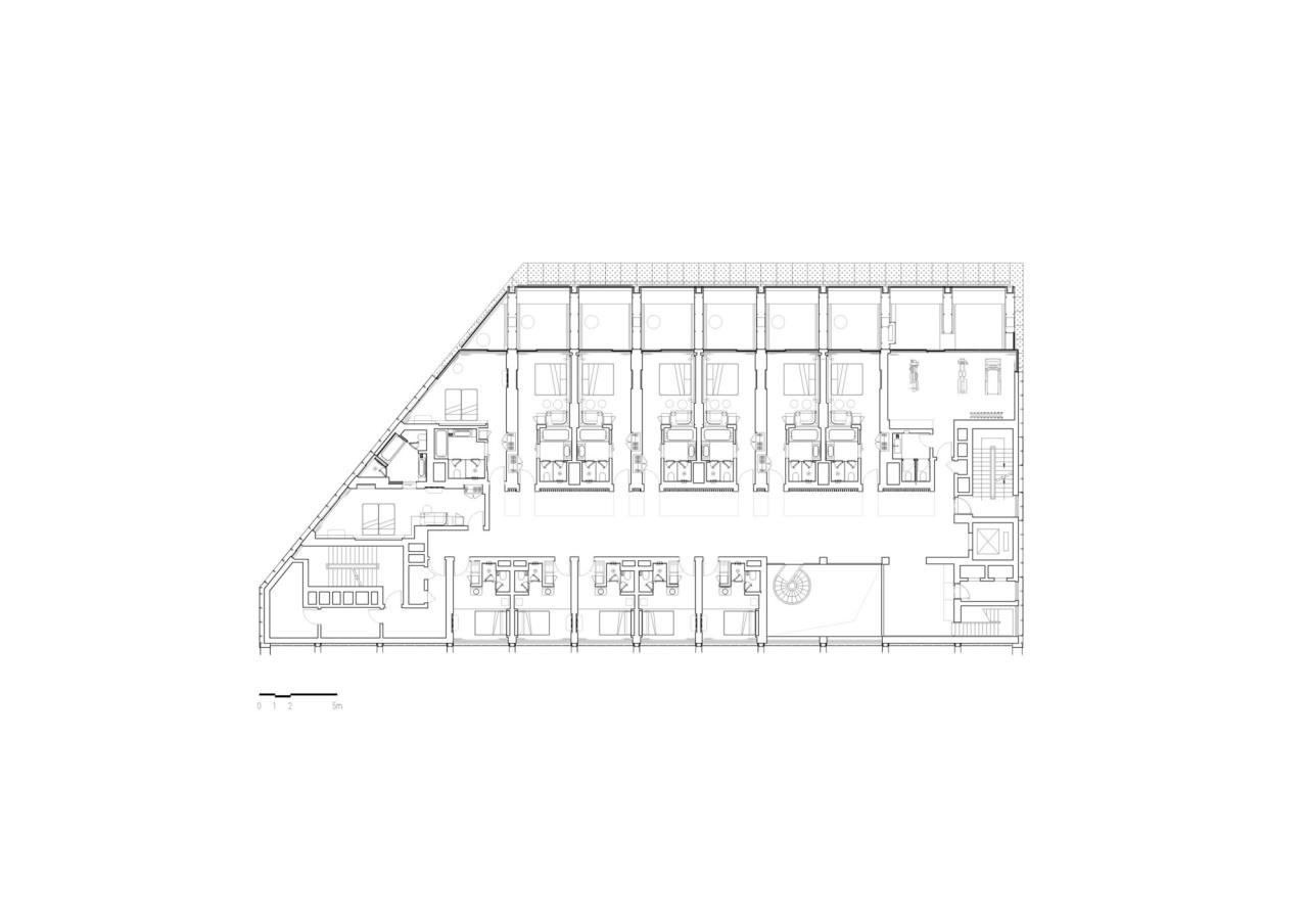
△二层平面图

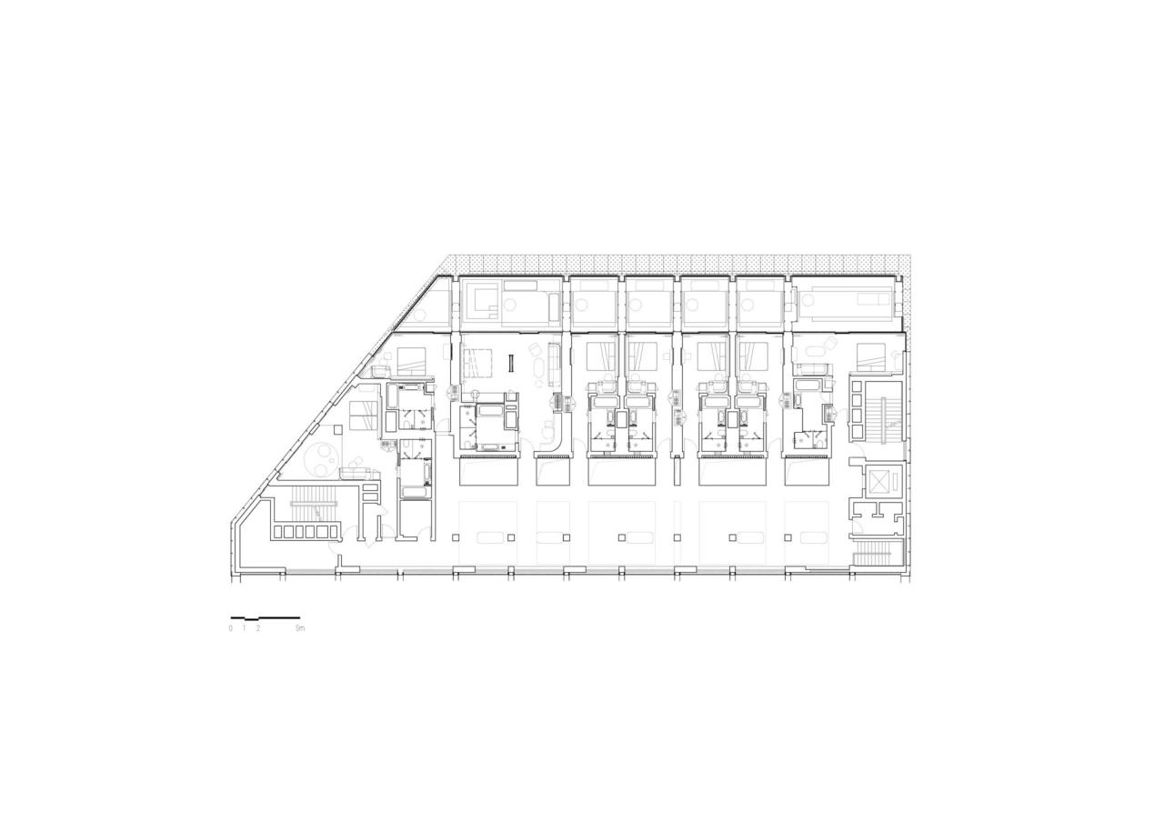
△三层平面图

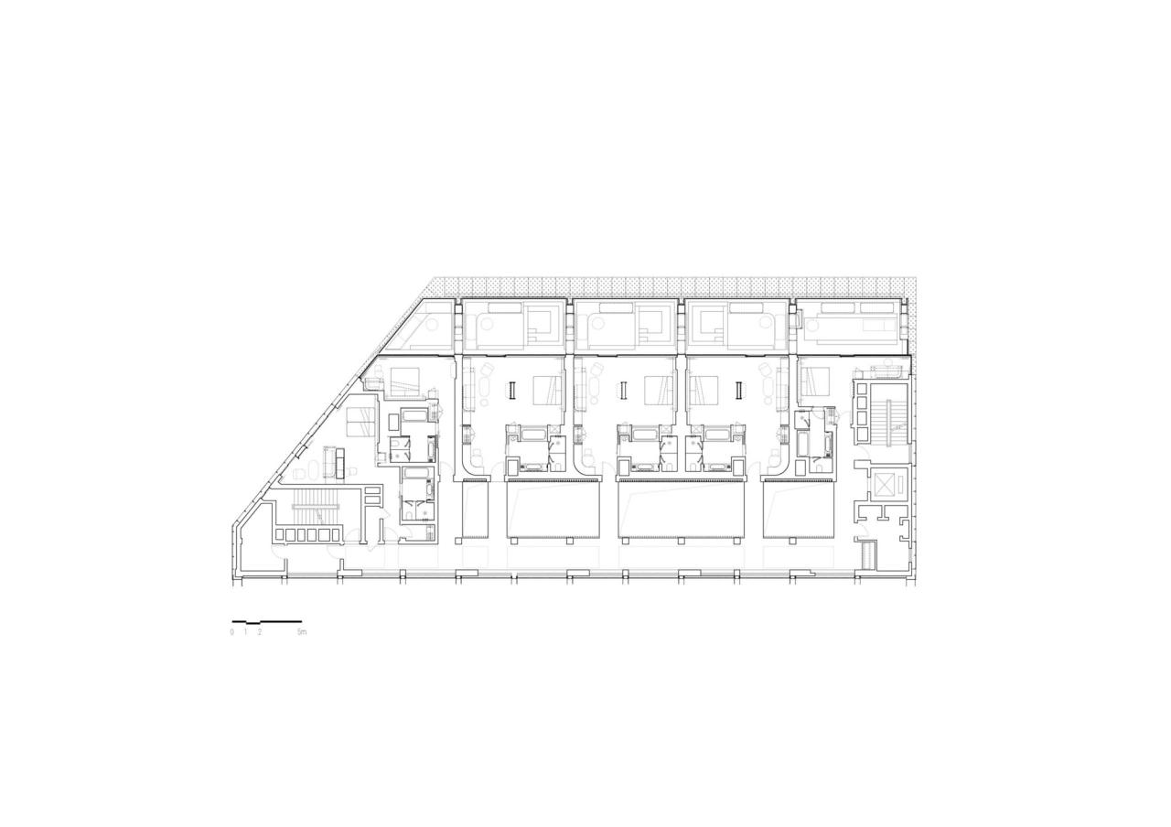
△四层平面图

△五层平面图

△剖面图

△模型手绘图
项目信息
建筑设计:新实建设计事务所
面积:5000 m²
项目年份:2021
摄影师:吴清山, Jiaxi&Zhe, 李芸
厂家:Bulthaup, FLOS, Vitsœ, 方圆地板
主创建筑师:钟念来
设计团队:郎斯栋,李泰利,陶霆星,崔睿,Andy Chu,杨隽超,王一伊,梁文颖
委托方:节语间酒店
照明设计:Illumination of City Environment
景观设计:E-DESIGN
本地设计院:同济大学建筑设计院(TJAD)
施工方:浙江梵石装修工程有限公司
品牌设计:NOSIGNER
地点:中国,桐乡市

BIM建筑网





评论前必须登录!
注册