
项目位于湖南省长沙市的后湖艺术园内,改造前为一栋三层民宅,主体结构为砖混结构,采用石灰砂浆的空斗砌法,且无圈梁构造柱,结构稳定性相当薄弱,但园区管理单位禁止拆除重建,只能在原有民宅基础上进行改造,因此业主希望通过建筑更新改造,将其转化为一所富有外立面特征的设计办公室。

新老结构的“套娃”处理业主首先面临的困难,是如何在这个比较薄弱的砖混结构的基础上,再加上两层办公的体量。为了不影响原有结构,我们将新增的三四层的承重结构,跨越原有的一二层砖混结构,形成了一个类似“套娃”的结构加固方案,这种新结构嵌套老结构的承重方式,保证了新老结构各自的安全和稳定性,同时也为重塑建筑外立面表情提供了最大的设计自由度。

一条黄色大楼梯另一个摆在业主面前的突出问题,是作为一个商业用途建筑,周边被密集的房屋包围,仅仅能从附近的广场瞥见建筑的一角,其余立面均被遮挡,难以被顾客发现识别。为了从这种围困中破局,我们将建筑的主楼梯从内部转移到建筑外部的转角处,朝向广场敞开,通过醒目的黄色建立简单、明确的视觉焦点.

在业主的功能规划中,建筑一层是家居饰品展示和咖啡吧,二层为工艺样板展示和洽谈间,三层为设计办公室,四层为会议室和合伙人办公室,四层功能是一个随着顾客交流逐渐递进的空间状态,因此同时我们将楼梯与各层的主要体验节点进行了一个整体流线的串联规划,一条黄色大楼梯在建筑的新老立面之间,内穿外出,形成独特的空间体验,也创造出不同角度的人与人、看与被看的互动关系。

绿意环绕,自然共生建筑被周边密集房屋围绕的同时,也被几棵大树所环绕,树木与建筑的紧密关系,从设计之初就成为重要的考虑因素。我们希望在不同的高度,树木都能与建筑的内外空间发生积极的联系:员工可以在树下的空间讨论,享用咖啡;在二楼的休闲平台能触摸到树干的表面,感受树皮的肌理;在三楼的办公区靠近树的位置设置休闲区,午饭和茶歇的时候,可以通过长窗观察到树叶在微风中的细小颤动,从而感受到绿意环绕、微风习习的松弛感,以缓解设计工作的疲劳。每天上午温和的阳光会穿过树叶,将斑驳的树荫投入室内,树的姿态伴随微风的摇摆,在建筑立面上,形成一副无声的光影演出。

尾声在网红时代的网红城市,每一座商业建筑都被期待成为网红,同时也常常被非理性的视觉效果的要求所裹挟。如何在建立外观视觉的独特性的同时,不失去建筑学分析问题、解决问题的理性内核;如何使建筑能不止于在社交媒体上的视觉奇观,同时能更多的回归真实的空间体验,为来访的顾客和员工创造细腻、舒适的空间环境,是我们在本案中希望做出的一点简单讨论和思考。
















项目图纸

△草图

△模型图

△区位示意图

△一层平面图

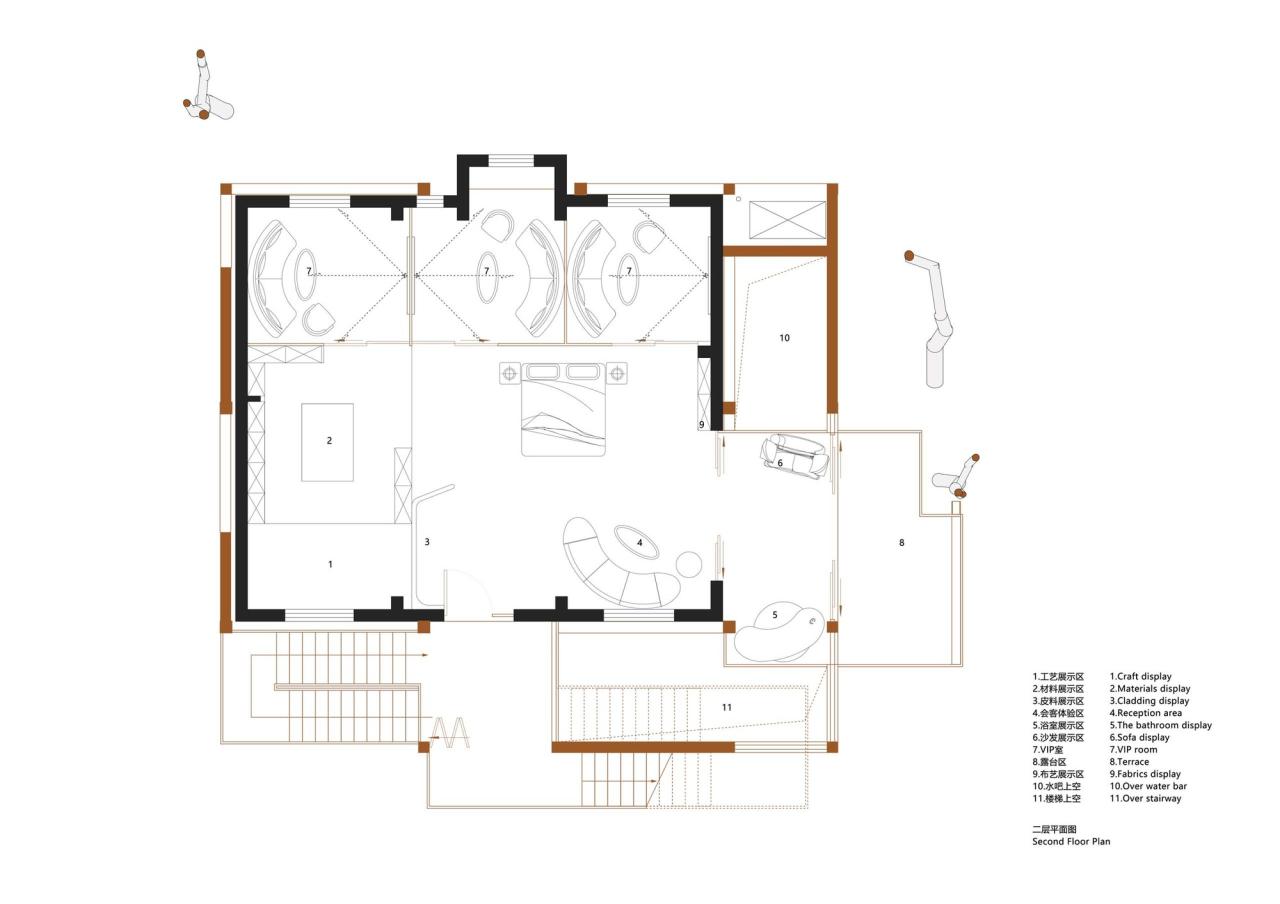
△二层平面图

△三层平面图

△四层平面图

△立面图

△立面图

△剖面图

△剖面图

△轴测图

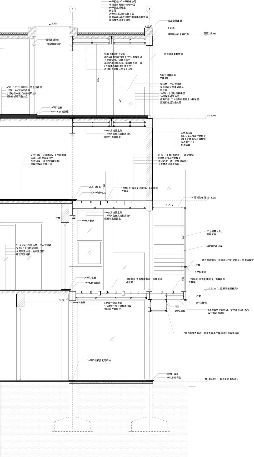
△结构大样图
项目信息
建筑设计:之行建筑事务所
面积:966 m²
项目年份:2021
摄影师:陈远祥, 王欣
厂家:万兴瓷砖, 佛山市南海万磊建筑涂料有限公司, 佛山市铿固门窗有限公司, 湖南耐美地坪工程有限公司
主创建筑师:陈恺、周子乔
设计团队:周依黎
结构设计:赵晓雷
室内设计:长沙猿厂营造空间设计机构, 黄洋安、陆骏龙
景观设计:湖南万道园林工程设计有限公司, 蒋柯夫、黄金昌、杨强
委托方:长沙猿厂营造空间设计机构
地点:中国,长沙

BIM建筑网





评论前必须登录!
注册