
台中市立图书馆外埔分馆自1993年落成以来,既有之楼地板面积与设备已不敷使用。目前室内书籍排列拥挤,无法再配置适当的阅读家具与器材,也难以提供不同族群与年龄层更完善之阅读服务,有鉴于此,依照教育部的”图书馆设立及营运标准”规定直辖市立图书馆分馆必须有1800m²以上,本案符合其扩建需求与急迫性。本案主要的规划设计特色共有三个层面,由外而内,首先是扩建图书馆与校园间的关系,其次是扩建后所经营出的图书馆都市空间,最后则是新馆与旧馆间的全面整合。


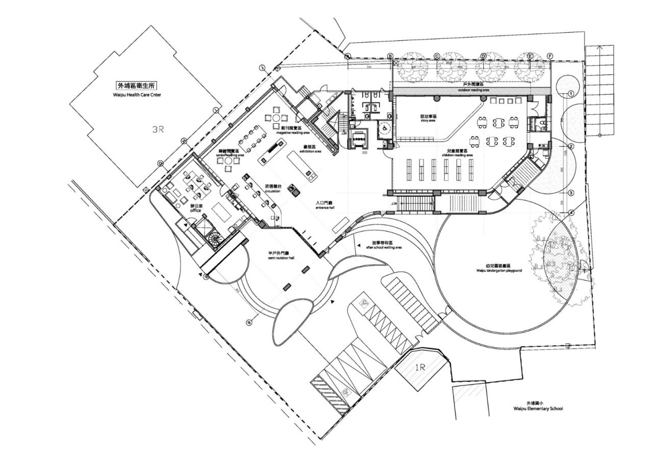
本案位于台中市外埔区外埔国小的西南角临甲后路,与外埔国小有区隔可独立管理,原图书馆为地下一层地上二层的建筑物,面积为553平方公尺,本案申请公共设施用地多目标使用基地范围约为2100平方公尺,但整体校园30000平方公尺的7%面积。
本案是全台第一个在学校范围内重新以扩建型式整合校园空间跟公共图书馆空间的规划设计案,在规划设计上必须可虑到公共图书馆的独立性,也必须考虑到与校园空间的连通关系。

本案将扩建将扩建量体集中于基地后方,保留较大的空地给入口空间,形成一个如同「埕」一样的空间,让读者及学童都有个良好可以停留的半户外活动空间,重新利用圆形的幼儿园游戏场整合与校园之间的空间,让学校与图书馆间产生有趣且方便的通路。


本案位于学校运动场旁的驳坎平台上,且正好位于北面,无遮蔽物的状况下,我们于二、三楼设计一整面的玻璃帷幕,可俯瞰整个运动场,让动与静之间有不同的交流,远方则是山峰绵延的铁钻山,把窗户给填满,读者不自觉的感觉在大自然里阅读。


外埔区目前以农业发展为主的产业型态,从空中发现农田分割后自然产生的地景风貌,大小不一的土地及不同的农作物,如同印在大地上的绿色条码,图书馆的立面设计采用垂直分割错落设计,利用开窗、 玻璃砖墙及涂料墙面三种材料交错,表达出图书馆的数位条码与外埔的田园印象。


















项目图纸

△扩建前

△扩建后

△项目模型图

△一层平面图

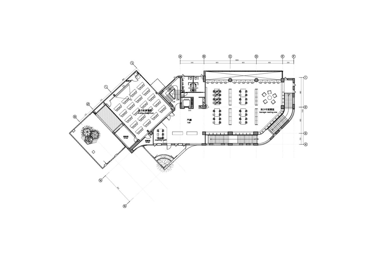
△二层平面图

△三层平面图
项目信息
建筑设计:TALI DESIGN
面积:2000 m²
项目年份:2021
摄影师:Hey! Cheese
厂家:Original BTC英国手工灯饰, SEVES 樱王, formica 富美佳, rainbow-house 虹牌, sanyuan-floor 三圆地材
主创建筑师:Tsai Shian-Gung
设计团队:Yingchen Liu, Shihyu Chu, Jinglong Huang, Yunzhong Lin, Jiayu Lin, Yangjhih Lai
照明设计:偶得设计有限公司
建筑承包商:巨合营造有限公司
室内设计:顶捷室内装修有限公司
结构设计:广益结构技师事务所
地点:中国,台中

BIM建筑网





评论前必须登录!
注册