【摘要】中国建筑设计研究院(简称“中国院”)创新科研示范楼位于北京市西二至三环之间,属于在城市有机更新区的建设项目。综合考虑周边城市环境,营造高品质的办公场所是本项目的目标。
一、项目背景
1、项目名称: 中国建筑设计研究院•创新科研示范中心
2、项目设计单位: 中国建筑设计研究院
中国建筑设计研究院(CAG)是2000年4月由原建设部四家直属的建设部设计院、中国建筑技术研究院、中国市政工程华北设计研究院和建设部城市建设研究院组建的大型骨干科技型中央企业,前身是创建于1952年的中央直属设计公司,改革开放后是第一批进入国际建筑市场并较早获得对外经营权的设计企业之一。2000年11月通过ISO9001国际质量体系认证。
3、相关软件应用:
Autodesk Revit Architecture
Autodesk Revit Structure
Autodesk Revit MEP
Autodesk Ecotect Analysis
Autodesk SimulationCFD
Autodesk Robot Structural Pro
Autodesk Project Vasari
Autodesk 360 Rendering
4、BIM应用评价与反馈:
BIM帮助我们在二维的空间里解决三维的问题,但作为建筑师而言,我们还要训练自己三维的头脑,在真实的世界里丰富个人的体验,让虚拟的BIM模型生动鲜活。
——中国建筑设计研究院一合建筑设计研究中心副主任、创新科研示范中心项目负责人柴培根
机电专业的BIM之路还有很长要走。
——中国建筑设计研究院绿色建筑研究中心副主任赵昕
欧特克提出的BIM理念作为一种系统化的工具和设计方法,不仅开启了行业本身工作方式的换代升级,更从思维方式理性拓展了建筑师的思路,并将带动评估建筑的科学标准的升级。
——中国建筑设计研究院一合建筑设计研究中心、创新科研示范中心项目负责人周凯
欧特克BIM软件的三维设计带来了新的设计理念,新的配合方式,同时也带来新的难度,未来的设计从BIM三维设计开始,展现一片可见的三维设计空间。
——中国建筑设计研究院结构一室工程师孙海林
基于BIM的Autodesk Revit软件,它让我感受到了全专业在一个模型里完成协同的强大功能。
——中国建筑设计研究院一合建筑设计研究中心建筑师任玥
二、正文
城市有机更新区的绿色建筑实践
——中国建筑设计研究院•创新科研示范中心
项目概况
中国建筑设计研究院(简称“中国院”)创新科研示范楼位于北京市西二至三环之间,属于在城市有机更新区的建设项目。综合考虑周边城市环境,营造高品质的办公场所是本项目的目标。

图1创新科研示范中心
中国建筑设计研究院创新科研示范楼项目地上14层,地下4层,地上建筑面积约2.1万平方米。综合考虑周边住宅等建筑的日照条件及面积最大化要求,通过日照反推形体形成建筑的基本形态。

图2日照反推的建筑形态
根据中国院发展规划要求,本项目将建成为一个高效的、节能的、智能控制的绿色建筑,并达到我国绿色建筑三星级标准,并在设计、施工、运营的建筑全生命周期采用BIM方式。
本项目工作方式为全专业BIM,且BIM团队人员即设计人员,最大程度保证设计过程与信息模型的即时性和一致性。截止2012年BIM设计大赛参赛提交作品,本项目BIM设计仍在进行。
解决方案
结合项目的三大特征进行BIM技术应用,打造真正的绿色建筑。
室外平台
因日照条件对建筑形体切削形成的层层跌落的室外平台是本建筑的最大特点之一。充分应用Autodesk Revit模型的三维优势,将传统二维方式下传达不清的各种信息充分表现,以解决结构处理方式、屋面构造系统、设备综合布置等问题。
利用分析模拟软件在平台的光、热环境等方面进行分析,并以此为依据安排平台人员活动的方式。
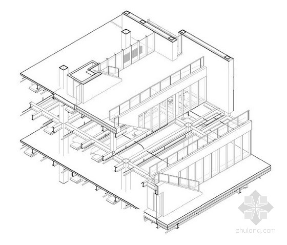
1、平台结构降板与管线综合
为保证室内外的无障碍联通,对平台处结构进行降板处理,于是这一部分成为本项目各专业需综合解决的一个系统问题。充分利用全专业BIM的协作能力,通过三维方式及时准确的传达信息,成为BIM高效解决此类问题的最大优势。
2、平台处轴侧管线综合图
在以往的BIM应用中,以最终施工图二维出图的标准来衡量Autodesk Revit软件的优缺点是个现象。

图3平台管线综合轴测图
中国院则希望更多的利用BIM三维的优势,以大量的剖轴侧图来传递信息,比如管综图、幕墙深化设计图等,并探讨以此改变国内二维出图标准的可能性。
3、平台建筑构件可视化比较
在深化设计阶段,对建筑构件进行有必要的方案调整是经常遇到的过程,针对平台部分,中国院利用Autodesk Revit快速替换栏杆构件的族系统,并使用Autodesk 360云渲染服务,进行可视化比较。

图4建筑构件可视化比较
4、平台监控点位模拟
室外平台因其极大的开放性对后期的运营维护提出挑战,根据物业等部门提出的对平台室外区域全部监控要求,中国院利用Autodesk Revit的相机结合摄像头的实际参数,对监控点位的数量和位置进行了模拟,Autodesk Revit模型指导了这一部分的相关设计。
5、平台得热分析
将Autodesk Revit模型通过dxf数据导入Autodesk Ecotect Analysis,对平台各个季节得热和日照阴影进行模拟。直接说明露台虽然朝北,但全年仍有大部分时间可得到阳光,并可以此为依据设置绿化植被位置和人员活动区域等。

图5平台得热分析
6、平台日照阴影分析
同样将Autodesk Revit模型通过dxf数据导入Autodesk Ecotect Analysis,对平台各个季节得热和日照阴影进行模拟。依据阴影分析,重新组织了联系室外平台的楼梯方向,为平台上的人员活动提供更好的环境条件。
7、平台的行为节能研究
本项目作为绿色建筑的另外一个重要理念是“健康”。大量的开放平台为员工开展健康的活动提供了机会,同时每层之间有楼梯连接,这也为员工提供了比使用电梯更健康也更节能的交通方式。
中国院将Autodesk Revit模型与IESVE软件相结合,对比了高峰时期(如中午同时下楼去食堂吃饭)平台楼梯和电梯的使用耗时对比。将IES软件中的疏散模拟转换为步行评测,电梯最长等候时间接近步行时间的40%,单从效率上讲,步行已经具备优势,而这些数据可作为将来高峰期电梯运营管理的依据。

图6行为节能模拟
8、平台风场及舒适度分析
将Autodesk Revit模型通过sat数据导入Autodesk SimulationCFD,对BIM楼室外各个季节的速度场和平台舒适度进行模拟分析。通过对BIM楼周边速度场进行模拟分析,可分析可开启窗户及设备取风口的位置,平台风速大小及风向,通过对平台舒适度进行模拟分析,可预知人员何时适宜在平台进行活动。

图7平台舒适度模拟分析
陶板幕墙
建筑外墙选用陶板及陶百叶组成的开放式幕墙系统,也是建筑的另外一个特点。
在方案及深化设计阶段,利用各软件之间信息交换进行采光遮阳、建筑得热等分析,并结合材料的不同构件尺寸使其效果,及用量造价实时呈现。
1、陶板幕墙系统的多方案可视化
在Autodesk Revit软件中直接修改局部方案,并使用Autodesk 360云渲染服务获得更真实的材料比较效果,且实效性不逊于以往Sketchup等软件,并且在Autodesk Ecotect中通过对立面得热的模拟分析获得支持立面设计的有效依据。
2、陶板幕墙与方案结合的得热分析
立面深化调整与Autodesk Ecotect分析相结合,得到支持优化设计的理性依据。

图8结合不同方案的立面得热对比
3、陶板幕墙系统构件统计分析
建筑西立面的“陶板+陶棍”系统幕墙呈现规律性不明显的参数化特征,利用Autodesk Revit中的明细表功能统计各个构件的数量,并结合各种构件的单价作为整体幕墙的造价控制依据。
4、陶板幕墙“立体墙身”图纸表达
利用BIM三维的优势,以大量的剖轴侧图来传递信息,比如幕墙深化设计图等。
钢结构
本项目地上结构形式采用钢结构体系,也是作为绿色建筑的最大特征之一。在结构的BIM应用中,主要进行了以Autodesk Revit为平台的数据传输计算等工作。
软件交互计算
PKPM与Autodesk Revit通过盈建科软件实现双向对接,从而可以单独在Autodesk Revit或者计算软件建模,提高工作效率。ETABS与Autodesk Revit实现双向对接,也可以单独在Autodesk Revit或者计算软件建模,本工程用Etabs做辅助计算。

图9基于Autodesk Revit结构模型的数据传递
软件交互节点设计
BIM设计、BIM施工,Autodesk Revit模型要为后期施工提供信息模型,本工程通过Autodesk Revit提供的信息模型,在三维详图软件XSTEEL中直接进行后续加工图设计。本工程也尝试用AutodeskRobotStructural软件交互进行节点设计。

图10钢结构节点设计
3、图纸表现
本工程通过尝试定义特殊族,生成符合国内制图规范的结构平面图。
探索与反思
一些想法虽然没能直接得出有效结论,但在BIM应用中设计思路得到了理性拓展。
1、城市有机更新区交通环境模拟
和谐的生长于城市环境之中是绿色建筑的核心本质,而立足于区域环境模型的模拟分析是其中的一部分重要工作,除了可以基于Autodesk SimulationCFD软件实现的自然条件环境分析之外,交通分析也是一个重要切入点。如在本项目中向西侧道路增加了两处开口,高峰时交通压力的影响如通过BIM进行模拟评估,应该能得到具有说服力的解释,但由于专业的制约,这一点的BIM应用我们仍在研究之中。
2、通过日照反切建筑最大容积研究
本方案因日照条件而生,在方案前期中国院是通过日照计算软件中的日照圆锥与建筑体量进行布尔运算再导入Sketchup中得到的原始体量,这也可以说是一个朴素而笨拙的BIM方式。在接触Autodesk系列软件之后,中国院试图用Vasari和Autodesk Ecotect得到这个体量,以实现后期深化设计中与Autodesk Revit进行无缝连接,但目前仍未获得理想的结果。
3、多层平台排水系统模拟
本方案逐层叠落的平台提供了很多可以通过BIM研究并得到有效结论的切入点,多层屋面的排水系统设置是本方案的一个难点,如果将排水系统与建筑形态结合,通过模拟分析得到各层雨水量与排水设施之间的关系,这也是中国院仍在努力探索的一个方面。

BIM建筑网





评论前必须登录!
注册