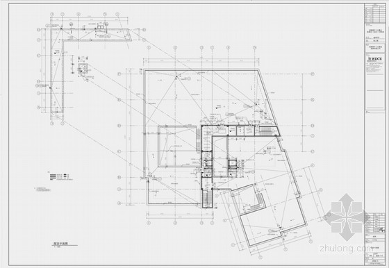
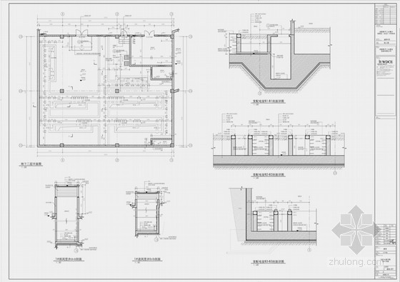
【摘要】成都青羊工业区G-9#办公楼包括地上十层,地下一层,建筑面积22000平方米,通过此项目的完成,总结出了如何在BIM平台实现多人协同工作。并制作整理了一套完整的企业级BIM项目模板。
成都青羊工业区G-9#办公楼施工图设计
樊珣
项目背景
1、项目名称: 成都青羊工业区G-9#办公楼
2、建筑面积: 22000平方米
2、建筑规模: 地上十层,地下一层

注:通过此项目的完成,总结出了如何在BIM平台实现多人协同工作。并制作整理了一套完整的企业级BIM项目模板。


微信公众号:xuebim
关注建筑行业BIM发展、研究建筑新技术,汇集建筑前沿信息!
← 微信扫一扫,关注我们+

BIM建筑网





评论前必须登录!
注册