
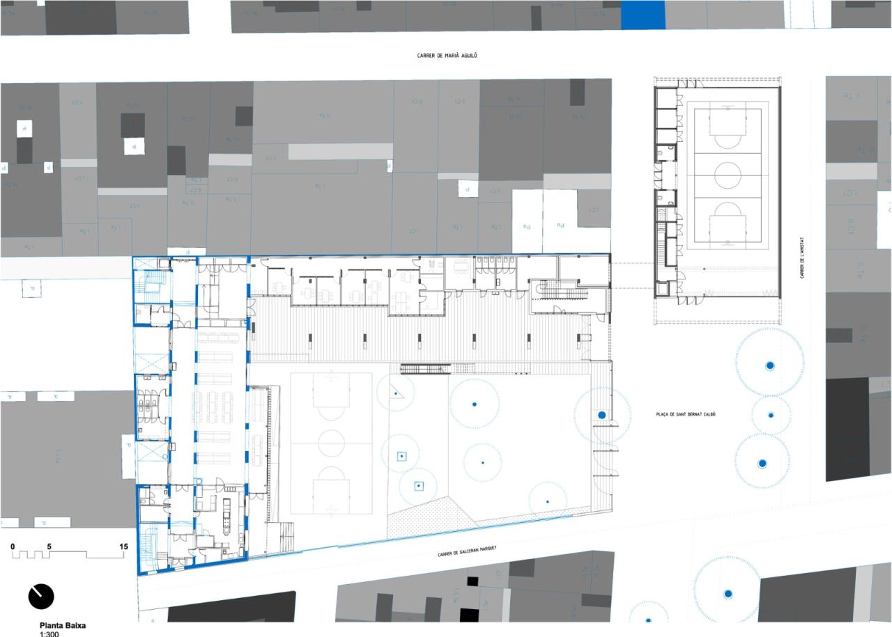
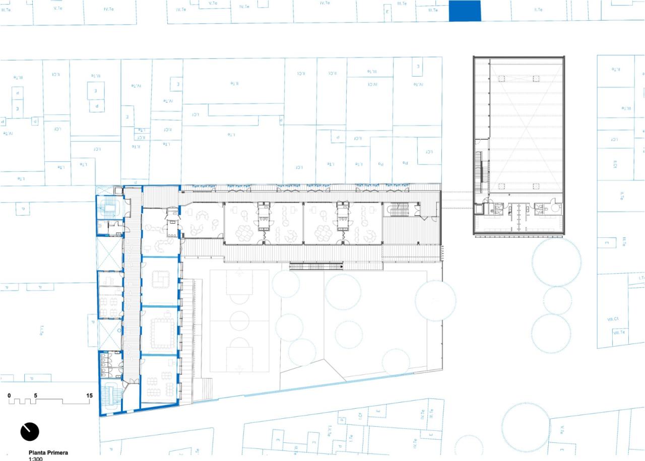
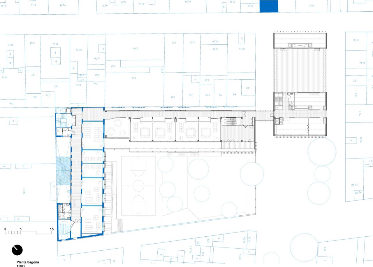
La Mar Bella 是对现有小学的翻新和扩建,目的在于使其容量增加一倍。三个相互连接的体量定义了一个总面积为 5400 平方米的综合体。对五十年代建造的现有建筑进行了深度翻新,并增加了两个新体块。位于 L形体量上的两个长形体量定义了学校开放空间的露台,它们满足了教室、小酒馆、厨房和办公区的功能需求。第三个体量有四个街道立面,面向广场,并通过公共空间上的桥梁与综合体相连,内部有一个健身房、更衣室和图书馆。当学校关闭时,这些空间可以由邻里共享。


不同的使用空间灵活多变,以促进新的教学项目。宽敞的流动空间成为教室的延伸,允许将学生分成更小的群体。新的体量的屋顶,成为城市场地上普遍稀缺的露天休闲空间的延伸。使用的材料表现着它们自己。建筑有着简单的解决方案、经久耐用的结构,以及极低的维护成本。混凝土、木材和可遮阳的纺织品是整个建筑群的主要材料。


该项目是一所节能学校,在 nZEB 参数下规划设计而成。建筑具有低热传导率的包覆,主要用于遮阳,内部自然通风性能高。同时,建筑采用低环境影响材料建造。该建筑有一个 50kwpic 的太阳能发电厂,可为户外游乐场空间遮阳。整个综合体的能源认证为A级。












项目图纸

△基地示意图

△一层平面图

△二层平面图

△三层平面图

△四层平面图

△立面图

△剖面图

△剖面图

△剖面图

△剖面图

△结构示意图

△细部大样图
项目信息
建筑设计:SUMO arquitectes
项目年份:2021
摄影师:Aitor Estévez Olaizola
厂家:AutoDesk,Cortizo,Ecophon,Fundermax,Prefabricats Pujol,Saint-Gobain,Viroc
主创建筑师:Marc Camallonga, Jordi Pagès, Pasqual Bendicho
结构:Manuel Arguijo
预算和造价计算:Joel Vives
委托方:CEB Consorci d’Enseyament de Barcelona
工程学:AIA Instal.lacions Arquitectòniques
建造方:Natursystem / Eurocatalana
地点:西班牙,Barcelona

BIM建筑网





评论前必须登录!
注册