
居住设计的创新缘何而来?
江南墅从总图、边界、审美等多方面入手
通过结合当地城市特征的回应与做法
对社区“度假感”提出新的诠释
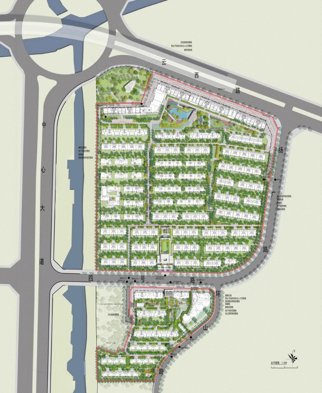
江南墅位于台州中央商务区,分南北区开发,南北区整体容积率在1.35左右,是台州市内为数不多的商务区中的低密开发项目。自2017年至2020年,goa大象设计完成了该项目的建筑设计工作。项目北区于日前竣工,收获强烈的市场反响。
混合产品社区,如何化限制为优势?
住宅建设中,混合产品搭配被市场俗称为“高低配”,背后是人们对于人群混合、空间混合所导致的失序问题的担忧。而事实上,高层建筑组团释放出了空旷的地面、花园、阳光、空气,低层建筑组团则给人以传统城市街巷中亲人的尺度感。只要假以合理的空间规划,反而能创造出单一产品社区难以提供的多元化的公共空间。
江南墅包括高层、洋房、叠墅及联排等多种产品。建筑师以“共享且独立”的原则进行总图规划,通过有序的公共系统将各类产品组织起来。自北往南依次安排高层、洋房、叠墅及联排。北侧高层与洋房自成一个围合组团,高层建筑被坚持控制为单排。


△ 总平面图(包含南北区)
高层南侧围合出接近1公顷的社区超级大花园,是整个社区中的绿色之肺和阳光空间,供整个社区中的居住者开展游泳、健身等活动;而南侧墅区静谧的、尺度亲密的街巷则适宜于更为静态的活动。两种截然不同而各具魅力的地面空间能够在同一社区内都能被所有住户共享。
各公共空间的平面形态不追求对称、稳定、一览无余,而是以非对称的、几何化的状态吸引人们在行进中探索。园路通而不透,曲径通幽,至最后的高层组团呈现开放的中心泳池和景观庭院。三角形、楔形等形态打破正交网格系统,在满足组团分区的同时为社区提供动态而活跃的感受。

△ 北区公共空间布局与形态
社区与城市的边界,如何差异化处理?
过去的封闭小区模式积累了若干的城市“孤岛”,当下时代的城市发展更注重城市与人的生活融合,需要建筑师以全新的态度再思考社区与城市的边界关系。
江南墅的设计中,一北一南两处入口被赋予一动一静两种性格,以不同的空间手段差异化地处理与城市之间的交互关系。


△ 北区北入口及空间序列
北侧边界紧邻葭沚大转盘与商务区,气氛活跃喧闹。折线形边界被设计为含有泳池更衣、幼儿园、诊室等的配套服务带,步行入口被设置于折线转角处。这样的选址将外部的城市街角花园、入口、内部的社区花园以及远处的葭沚山串联在一条轴线上,形成一条极为纵深的视线通廊。在保证社区管理的同时,加强了居住者在心理上和动线上与外部城市的联结。
社区南侧临接城市支路。步行主入口以多层次的院落序列塑造从外到内的过渡。整个入户序列深约70米宽约30米。建筑师在这里塑造了一串类同度假酒店入场前区的行进体验,框景、游廊等手法的运用借鉴了东方传统中对于自然的观游态度。


△ 北区南入口及空间序列




社区审美情境,如何实现“再创新”?
自国家开放商品房开发以来,居住社区的设计经历了三十年的审美更迭。在每个时代,关于审美的创新都从未停止。
goa大象设计持续以引领者的身份探索中国社区的模式。从1998年以古典主义审美的桂花城到2005年以现代感著称的蓝色钱江,再到对社区度假感进行关键性定义的滨江壹号院,goa的作品不断推动着时代浪潮中居住社区审美的更迭与演进。

△ 项目材料图谱
江南墅则试图在开发成本框架之下、结合滨海城市的在地特征,塑造出独属于自身的审美情境。建筑师希望社区“现代”而“轻松”,具有一种“温暖”的“度假感”。基于此,设计没有简单沿用高端项目中常见的冷灰调子,而是在现代主义的审美框架下融入更为温暖、地域化的材料和做法。

△ 高区花园效果图



△ 建筑实景
立面设计参考了热带滨海国家度假村、乡村田园别墅的做法,以暖色的、有着自然属性的材料完成近人尺度的界面。例如木纹铝板应用于高层住宅的外框、叠墅的屋檐底部,米色错缝石材用于地面景观墙体。
在处理建筑构件搭接细部时,没有简单采用现代建筑中常见的标准化做法,而是刻意以分离构件的方式展现更多的地域和人文气质。景观细部设计方面亦有创新处理,泳池区域没有完全采用硬性的、直线相交的方式,而是融入更为有机、活泼的圆角多边形形式。



△ 材料细部


△ 构件搭接关系


△ 泳池区域
户型的体验挖掘,如何做到极致?
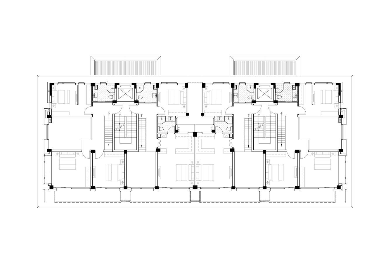
叠墅是江南墅项目中的主要居住形态。作为一种应时代而生的新产品,叠墅户型相关的创新做法仍是行业中的一个热点话题。
江南墅项目中,建筑师对叠墅户型进行精细化思考。设计决策更聚焦于具体场景的“可用性”和“易用性”,而非仅仅停留在功能的有无。例如,上叠户型中露台独享屋顶位置,实现了与主人私密区域的有效分离,规避了亲友聚会、露台派对等活动对卧室等空间的干扰问题。

△ 叠墅剖面
为保证设计理念的实现,户型设计的工作下沉到更末端的产品领域。所有户型中,餐客厅与户外的分隔推拉门定为双轨三分门,可开合至仅占用面宽的三分之一,更大程度上保证室内外通透的开敞空间。


△ 叠墅平立面
得益于开发商朗成具有家具研制生产背景的、极具技术实力的公司,项目的建筑、景观、室内各团队深度磨合,工作流程很大程度上接近“一体化”开发项目的方式。设计的价值也因此得以更大程度上的实现。
立足当下,探索社区新灵感
立足于当下时代,江南墅的设计在空间规划、城市边界、审美情境等多个方面实现了具有自身特色的回应,为居住社区领域的创新添加了新的灵感。
项目信息
所在地:浙江台州
设计/竣工:2018-2021
建筑面积:288751 ㎡
图片版权:goa大象设计、江南墅、RIF摄影工作室

BIM建筑网





评论前必须登录!
注册