
唯有在这里才得以成立的建筑在公共设施建设上,尤其在地方城市,创建出唯有在该地区才能完成的独特建筑有着重要的意义。结合当地人文历史地理环境,我们一贯秉承着将所建成的建筑呈现出在该地精准定位的理念。


关于【行桥】福冈县行桥市位于北九州市东南方向距离大约25km的地方,它是约有7万人口的京筑地区(位于福冈县与大分县交界处,东边面临濑户内海,西边被筑紫山系的群山环绕)的中心城市。“行桥”这一命名取决于城村改建合并时,旧行事村的“行”字与旧大桥村的“桥”字二字的结合。本次的建设规划用地位于流过旧行事村与旧大桥村村界的长峡河右岸,这里在保留了两地原有地区划分的同时,形成了现有的城市景观。

这片规划用地的正前方建有旧百三十银行行桥分行(现在的行桥红砖馆)。此红砖馆由建筑大师辰野金吾监督设计,在当时可谓是当地行政与经济实力的象征。

涵盖多种不同元素的建筑此次项目建成的意义在于提高当地居民生活的便利程度,同时可以作为一剂兴奋剂促进市中心的繁荣。对此,我们旨于提升图书馆的吸客能力,将此建筑设计为附有市民活动与支援幼儿教育功能的综合设施。在“行桥”这一具有历史意义的大地上,我们实现了建成包涵有“象征性”“地方性”“活泼”“安宁”等多种不同元素的、符合连接旧行事村与旧大桥村两地身份的建筑。


扭转的魔方外观我们在上层与下层魔方内部分别复原了旧行事村与旧大桥村的街景,并通过扭转楼体,将独立的两个空间结合起来。另外,我们还把楼体内部赋予多种功能,将风格设定为渐变式:下层的空间动感十足,越走向高处越安静祥和。下层的魔方部分面向红砖馆,我们将其打造成在尊重当地历史的同时,能够随时迎接市民们前来活动的新鲜活跃的空间。而在上层的魔方部分,我们设置了提供人们眺望长峡河与远山的阅读区和书桌,让人们能够在静谧的环境下小憩或学习。


为了能实现这个扭转楼体的外观,我们在构造设计上花费了很大功夫。上层魔方体我们采用钢结构,在减轻重量的同时实现了上层突出在外的景观。下层魔方体则采用钢骨钢筋混凝土结构,得以在构造力学上与上层钢结构保持受力平衡。此建筑在兼具经济效益与抗震性的基础上,拥有着扭转魔方的别致外观,并且呈现出了整体空间的开放性。

编写历史的建筑这个坐镇于市区中心的扭转魔方建筑,仅从外部形状来看,也许会招来人们稀奇的眼光。不过,随着人们移动变换观察角度,便可得知它着实是融合于周边街景之中的。


我们设想这个魔方体骨架能够不屈于时代的发展变化而永存于世。同时也期望着这个建筑能够作为崭新的一页,撰入当地的历史长河之中。












项目图纸

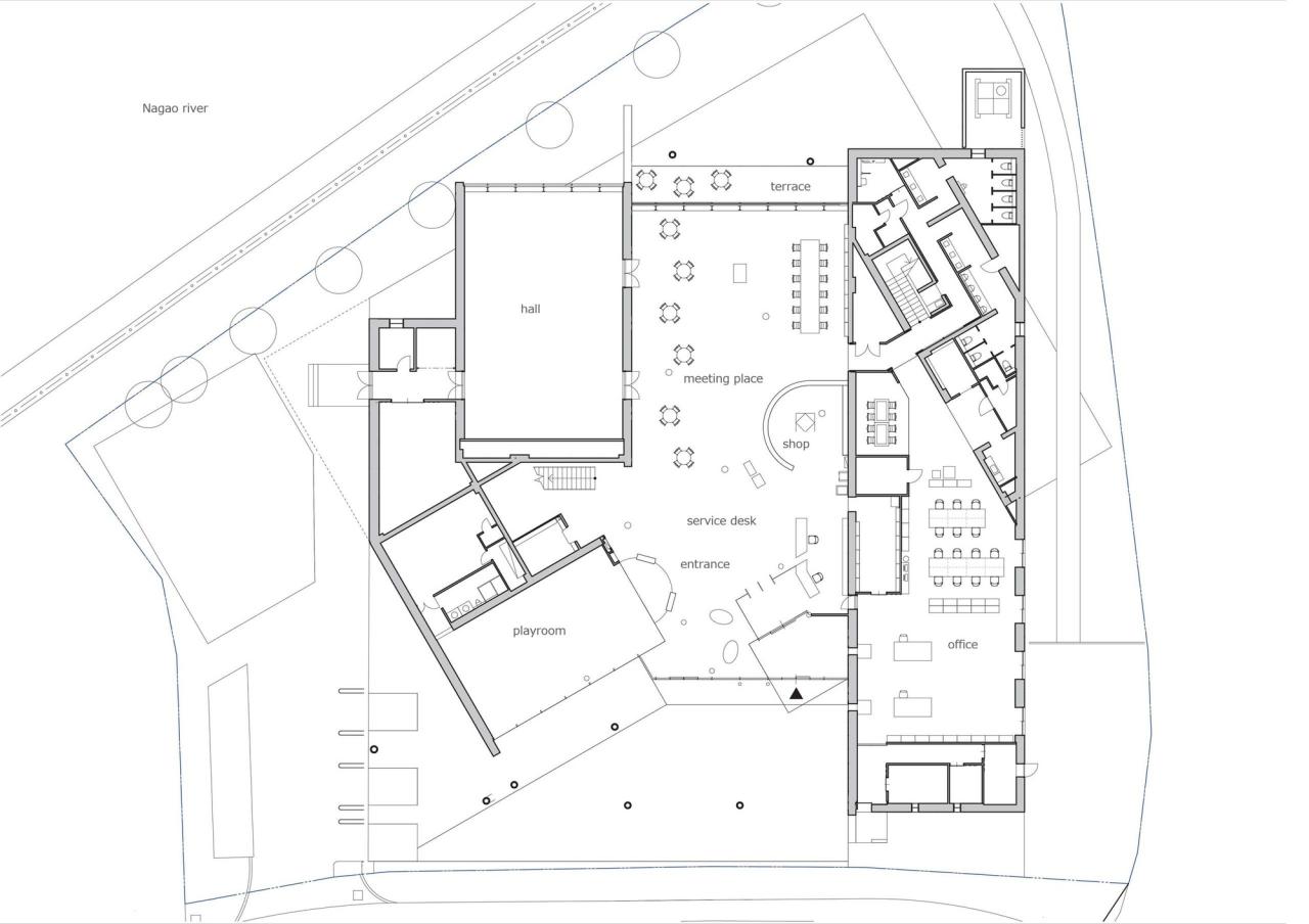
△一层平面图

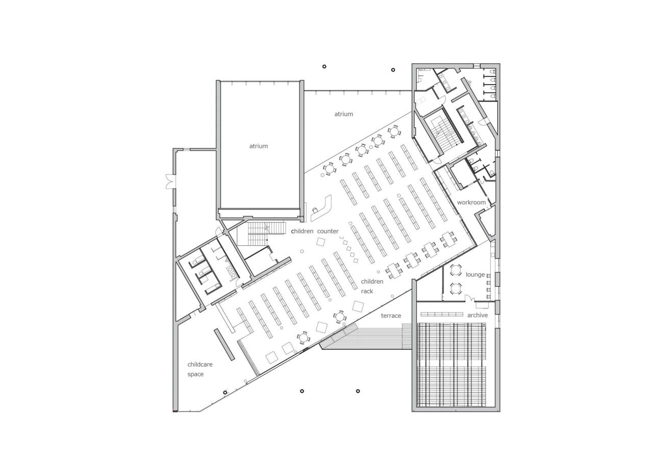
△二层平面图

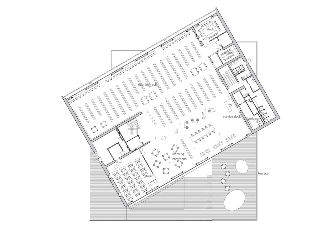
△三层平面图

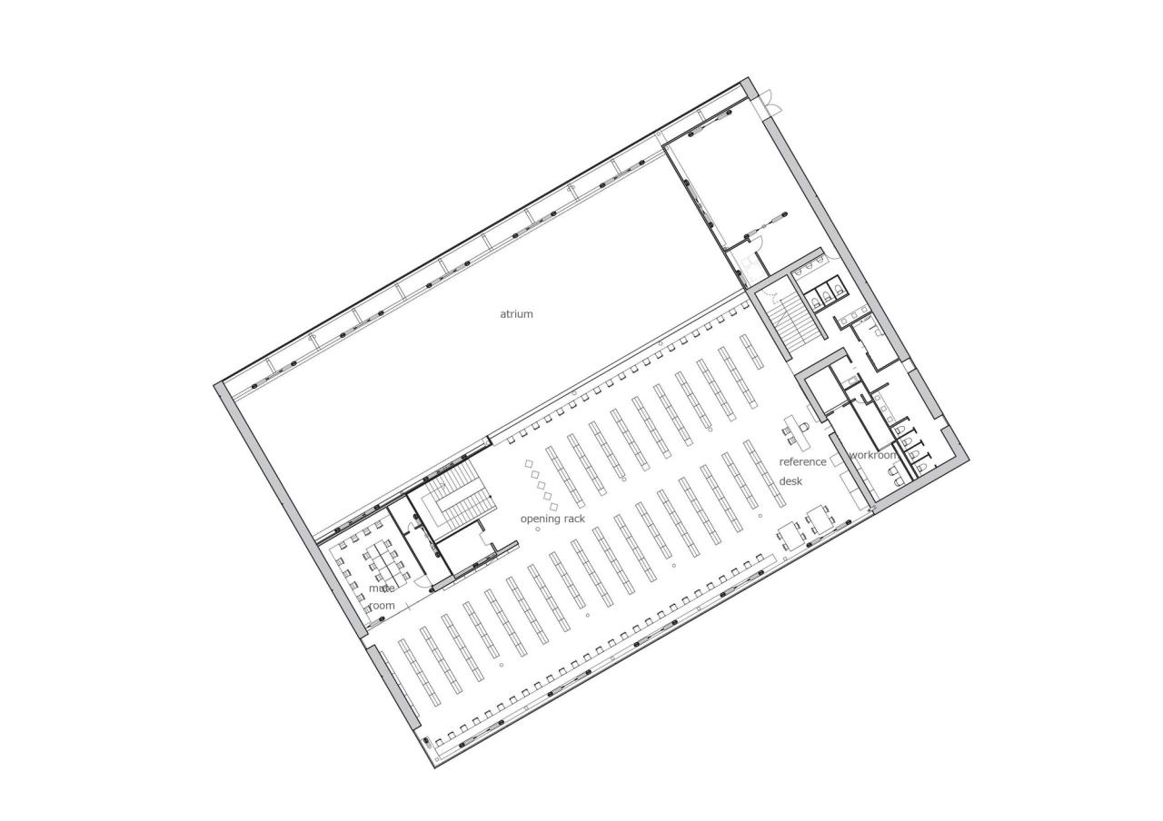
△四层平面图

△立面图

△剖面图

△剖面图
项目信息
建筑设计:三上建筑事务所
面积:2151m²
项目年份:2020
摄影师:Koji Horiuchi
主创建筑师:益子一彦
委托方:行橋イノベーション株式会社
结构及景观设计:三上建筑事务所
施工方:鹿岛建设株式会社 九州支店
合作方:ONomiya Consulting Engineer
地点:日本,行桥市

BIM建筑网





评论前必须登录!
注册