
△何须入山林,心静地自偏
古时的隐,是读书人郁郁不得志下的不得已而为之,当代的隐,却是现代人对生活品质的不懈追求。
藏繁华市井间,享世外桃源乐。设计师想要为居住者打造这样一个藏在都市里的疗愈圣地,给忙碌的人群一个放松愉悦的家园。

△鸟瞰图
西安,十三朝古都,有着厚重的文化底蕴,同时具备内敛而谦逊的城市品格。本案位于西安高新中央创新区,紧邻西安未来之瞳。
在这样一个古老的城市,设计师将传统的理念通过空间与秩序的表达,在现代语境下融入到当代建筑。
01取静于市·布局落点
新希望·锦麟天玺位于西安高新CID腹地,是新希望集团“锦鳞系”入驻西安的首个作品,拥有高规格城市立体交通网以及优越的医疗资源,临近大仁遗址公园(在建),对望秦岭山脉,形成宜居、宜业、宜游的峯层顶宅。

△区位分析图
基于场地及道路条件,西侧临主干道,昭示性强,启动区后场可选范围大,地块西侧成为展示中心和前期体验区的最佳城市接驳点和人流导入点。
02隐逸美学·空间探寻
展示区呈现出的空间序列让游览变成一个愉悦的探寻过程,场景叙事的线索串联出“隐”的完整故事,诠释了东方自然山水的哲学韵味。

△平面图
-序 曲-
故事的序曲是现代典雅的香槟金大门。参考古城围墙尺度,以秦砖汉瓦打造的门楼格栅,拉开了归隐自然的序幕。


△入口门头
-铺 垫-
穿过大门,来到故事的铺垫。浮桥边流水潺潺流过黑色石板,松树静静的矗立在水边,归家的情绪被勾起。隔着含蓄的景园,建筑出现在视野内,催动观者的脚步。


△前场空间
-高 潮-
正前方的建筑外形像是由几个小型的方形盒子组合而成的一个长方体,线条简洁、饱含匠心。精致的顶檐倒角为整体造型注入柔和感,超白玻的曲线造型一点点软化建筑坚硬的棱角,锋芒被柔软包裹。这是设计师表达的第一层隐逸之美,含而不露,兼具张扬与内敛。



△售楼处正立面
中国传统山水画作为建筑外表皮主要造型元素,与现代建材有机关联,通过解构、简化、重构、再生,以U玻立面形式最终呈现。色泽上采用白色与深灰色相辅,通过光与影的营造,构筑远山青黛的自然风景,在使建筑体上部块呈现出轻盈效果的同时表达出中国传统文化中归隐山林之意趣。

△售楼处细节图
进入建筑,即进入了整个故事的高潮,这是整个建筑语言中最精彩的部分。整个建筑体向下7米,两侧延展出等高的长廊,中庭自然形成一呈长方形的下沉庭院。至此,建筑布局,体量初现。

△售楼处
从建筑的布局来看,整个建筑是向内的,层层裹挟着,推动观者走向建筑内部。进入后才能发现内里的别有乾坤,设计师巧妙地构筑出一个府中有苑、苑中有园的城市会客厅。同时建筑外立面采用了大量的超白玻,布局上内向的建筑,视线上却是通达的,整个空间从围合到开放的表达正体现了中国人藏秀于内的传统美德。

△鸟瞰图
大量超白玻材料,强化建筑内外的流动感。超白玻璃由玻璃肋支撑,外嵌香槟金金属线条,细致的黑色封缝体现了材料与工艺的精雕细琢。


△售楼处玻璃墙
两侧长廊分别是洽谈区与游泳馆,向内部庭院展开视线,一侧是封闭的遮挡的,另一侧是通透的一览无余的。

△洽谈区

△游泳馆
其上层是可供通行的观景步道,由出地面楼梯口抵达。



△一层观景步道(右)
-尾 声-
庭院下沉,隐于山水,层叠的景观延续山体形势,错落有致;空间含而不露,意韵悠长。透过玻璃,庭院景观尽收眼底,人与自然,流动和谐。


△后场景观
结语
尊重与退让,是隐奢美学的核心原则。空间的形态与环境的尺度间蕴藏着微妙的平衡,多一分则满,少一分则空。本案将山水人文的历史脉络融入建筑的空间排布和肌理,塑造“出于自然、隐于自然”的格调人居场所。
项目图纸

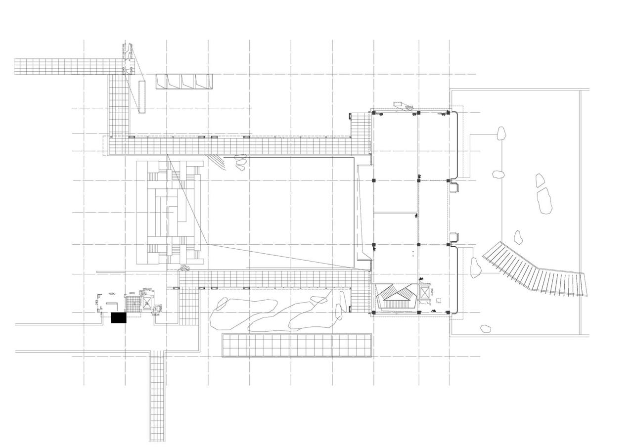
△B段一层平面图

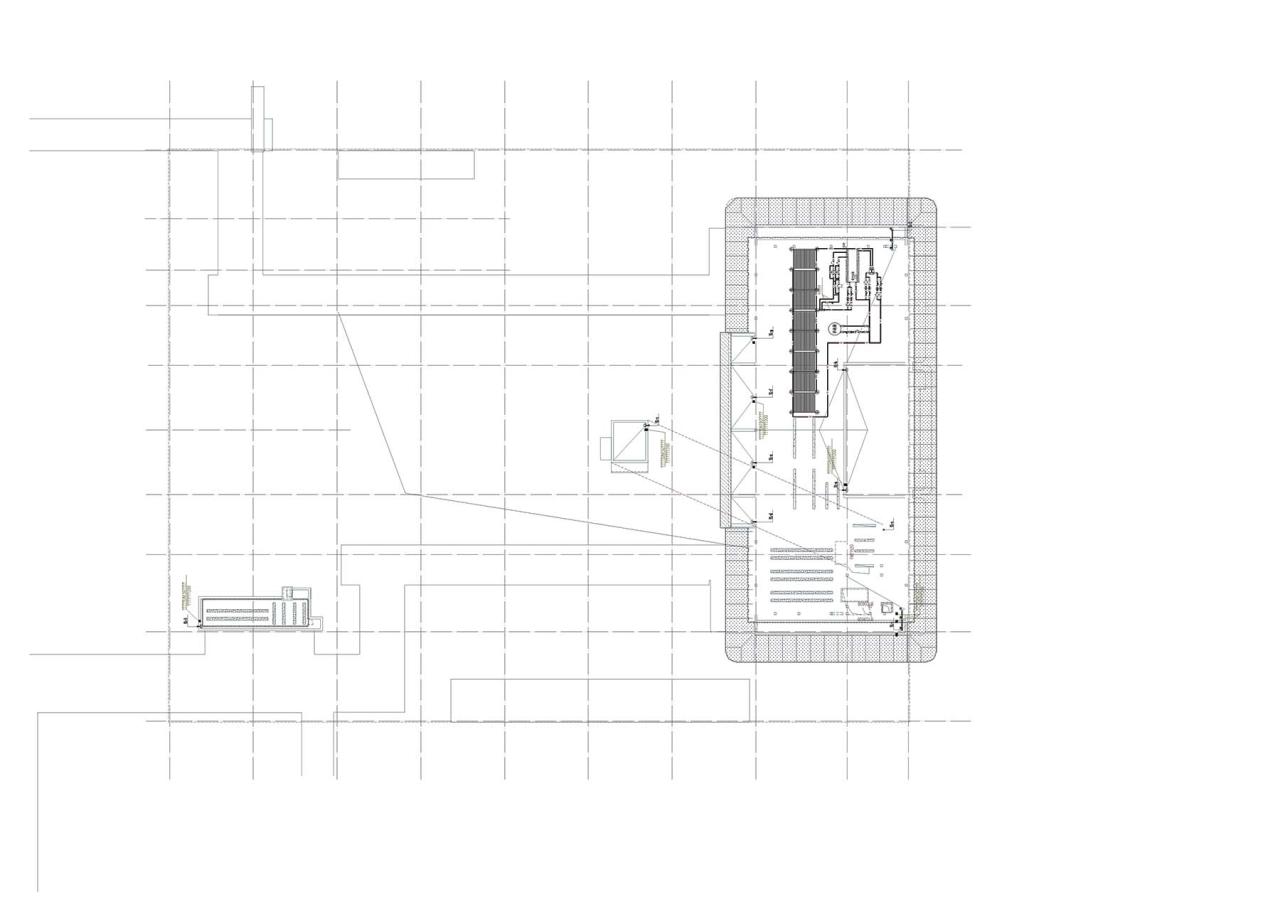
△B段屋顶平面图

△B立面图

△B剖面图

△B剖面图

△楼梯立面图
项目信息
项目名称:西安·锦麟天玺
业主信息:新希望集团
项目坐标:陕西省西安市
售楼部一层面积:807.69㎡
售楼部负一层面积:2921.46㎡
总建筑面积:3729.15㎡
设计:柏涛品林(上海)建筑咨询有限公司
主创设计师:张震、邹龑、张松
设计团队:张地、梅练、王春鹏、郭文迪、熊倩、李雨静

BIM建筑网





评论前必须登录!
注册