
代码之域是一个占地一万平方米的城市景观项目,环绕杭州杭黄社区未来城市体验中心,位于中国浙江省的省会和人口最多的城市-杭州。


杭黄未来社区示范区体验中心是将智能技术应用于城市功能单元的展示厅,是构成杭州富阳区新科技中心的建筑之一,杭州富阳区也是中国科技行业领先公司的所在地。


我们的目的是将这个鲜明的技术特征运用到周围的景观中,以二进制代码的形式,以黑白或全空的形式,应用于景观、人行道和绿植中。 因此,路面和绿化图案类似于一种二进制代码语言,我们在其基础上穿插了丰富多彩的活动,使其成为这片区域内的社交互动平台。

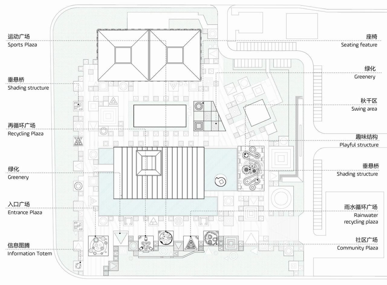
受主建筑的结构模块化的启发,我们构建了一个虚拟的网格,帮助我们在不同的尺度上分布几何景观功能,从小块的草丛,穿过几何灌木丛的中间部分,再到用于教育和娱乐的更大平台-城市家具和活动区。


在整个景观中,我们战略性地放置了几个焦点,作为休息区或聚集点,以及教育、休闲和娱乐空间。 通过这种方式,可以在步行入口处找到一个圆形广场作为游客的集合点; 位于观景台旁边的机器人游乐场 ,供孩子们娱乐; 一个系列的4个迷你广场构成了主流通区旁边的主要教育和活动区; 一个平静的编码花园被放置在了建筑物之间,以便为两座建筑物的工人和游客提供休息场所。


总而言之,在进入体验中心之前,景观就先入为主,增强和刺激游客在公共领域的体验。








项目图纸

△总平面图

△分析图
项目信息
项目名称:代码之域
设计:佰筑建筑设计咨询(上海)有限公司
设计团队:Marcial Jesús、Javier González、Mónica Páez、Lara Broglio、Ponyo Zhao、Keith Gong、Cosma Jiang、Hayley Huang、Michelle Aldora、Jango Zhang和Yuntong Liu。
项目管理团队:Jenny Fan, Nicholas Lv & Eva Jiang.
作品:杭州大航雕塑景观工程有限公司
客户:Sunac地产+中交城市投资
面积:10000平方米
状态:已建成
地点:杭州(中国)
摄影:Rex Zhou
视频:Rex Zhou

BIM建筑网





评论前必须登录!
注册