

场地位于重庆市水土新城,竹溪河畔,临近云汉大道并与数条次干道相接,周边规划建设多个公园与沿河景观带,内有高地及溪谷,梯田式景观保存完好。但基地地形起伏较大,高差达47m;且校园用地面积约120,000㎡,建筑面积亦超过120,000㎡,如何平衡场地与体量是项目面临的首要挑战。



由于校内设初、高中部,共120个班,设计团队提出了“双校门”的解决方案。初中部从北侧山地正门进入,顺势下行;高中部从南侧谷地进入,依山上行,交汇于图书馆、食堂等共享功能,形成可分可合、便捷联动的交通流线。消防车道就高差沿建筑展开;无障碍坡道亦可顺势到达每一栋单体。



设计团队打破了平地思维,以山城建筑手法,于场地内由北向南、由高至低展开一张“魔毯”,将所有教学楼顺应等高线,灵动、错落地置于地势之中,一座高密度校园就神奇地消隐于自然环境。同时,场地内预留出植物生长空间,令建筑随时间呈有机变化。


教学楼均呈U形布置,开敞处面向沿河景观绿带;首层顺地势架空,将原始地貌纳入建筑单体,与内部空间形成联动。潺潺溪水萦绕在场地周边,但同时也会成为教学噪音,因此方案将食堂置于瀑布和溪谷旁入口广场地下,通过中庭引风,形成“观水而不废食”的场景。场地中央的图书馆亦顺应梯田走势,消隐于花海之中。依山就势的自由体态,层叠错落的生态绿谷,不仅最大限度地消解体量、减少土方,亦暗合“游天地之美,析万物之理”的西大附中学风。



































项目图纸

△总平面图

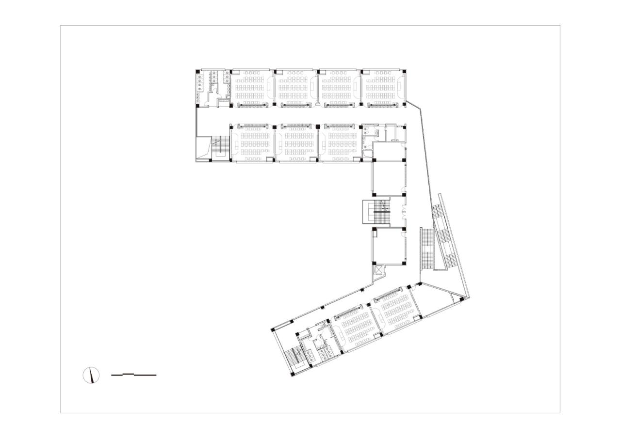
△初中部标准层平面

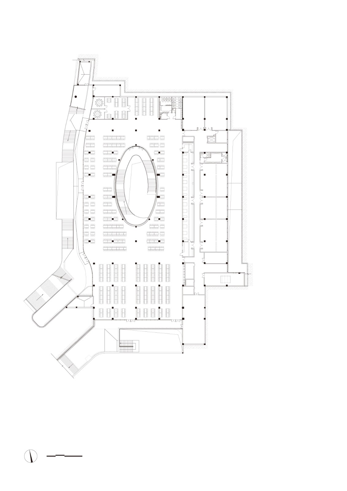
△风雨操场观众厅一层平面

△风雨操场和篮球场二层平面

△食堂平面

△礼堂和食堂组合剖面

△图书馆组合剖面

△图书馆轴测示意

△整体轴测示意
项目信息
项目名称:西南大学附属中学两江校区
项目地点:重庆·两江新区·水土新城
详细地址:重庆两江新区水土高新技术产业园云汉大道326号
项目类型:校园建筑
设计时间:2016.08-2018.05
建成时间:2020.09
项目规模:120100平米
设计单位:gad
项目总监:吴彦
项目主创:谭偲
完整团队成员
建筑:吴彦、谭偲、余杨、李琳、王灵艳、曹远行、郭鑫、曾思源、管雷宁、郭彧、杨建伟、徐士勇、王铮音、卢震、李敏、张路、李艳波、公衍伟
结构:杨卓兴、王连花、黄嘉、周波、舒启军、徐士杰、韩光、刘成欣、杨帆、孙广鑫、刘发钦、李涛、吕晓东、王华强、刘海洋、张希川
给排水:周逢源、赵丹、赖江涛、杨鹏、秦睿、崔俊芳、刁可德、陈建勇
暖通:夏继东、刘有智、杨胜利、刘元坤、刘争光、刘成、龚娇
电气:周兴悦、阳玉云、蔡长雨、隋媛媛、穆卫浩、冯龙生、周林、李盛、王煜团
其他参与者
室内设计:杭州典尚建筑装饰设计有限公司/广东建筑艺术设计有限公司
景观设计:gad青岛绿城建筑设计有限公司/重庆筑景景观设计咨询有限公司
幕墙设计:中机中联工程有限公司
标识设计:成都·华艺匠人
业主:重庆两江新区水土高新技术产业园建设投资有限公司
摄影:shiromio studio,麒文摄影
结构手法:框架结构,门式钢结构,钢桁架屋面
建筑材料:饰面砂浆,仿木纹埃特板,U型玻璃

BIM建筑网





评论前必须登录!
注册