
相对于以往,公共建筑的功能复合化在今天的城市建设中越来越成为共识,图书馆也不例外。“东台”这一名称已在中国历史上沿用了八百余年,位于黄海畔的这座城市具有悠久的历史,深厚的人文底蕴,强劲的经济实力,正努力建设人文与自然景观相融合的宜居环境。

东台新图书馆位于范公北路西侧、黄海路南侧,紧邻片区核心,位于城市主轴之上,属于低开发强度的城市重要节点区域。在我们接手方案的时候,图书馆的土建结构已然成形,但设计已时过境迁,原设计从硬件设施到软件配套,都滞后于高速发展的时代。虽是新城新馆,却已经面临更新改造的局面。


传统意义上,图书馆是历史记录的载体,文化传承的场所,是一个功能指向特别明确的建筑类型。但是应运时代发展,东台市政府希望它能够体现城市空间的开放精神,提供以图书阅读为基础核心的种类齐全的多样性功能服务,同时创造低碳绿色的优质环境。如何才能将这个图书馆从一个厚重严肃的形象改造为一个崭新的,开放的,对当代人有吸引力的公共场所,如何凸显与周边严肃的政府建筑的强烈反差,从而制造一种戏剧的冲突性?这些都是我们思考图书馆改造的设计出发点。


我们以“书帆”为概念为建筑形象立意,意指以书籍为船帆,文化为希冀航向未来的东台。另一个设计主旨在于提升整体建筑立面的通透性,打破原有建筑严肃封闭的立面状态,加上外部灯光及室内光线的运用,以更包容和开敞的立面形象提升建筑的昭示性与公共性。


建筑立面沿为经典的三段式,一至五层分别采用通透的玻璃幕墙、外挂冲孔压型铝板以及内衬遮阳帘的玻璃幕墙,形成了三个清晰的横向体量,造型简洁纯净,犹如书籍堆叠在城市核心建筑群之中。


首层采用现代的幕墙体系,形体简明,色调纯净。二三层为采用外挂冲孔压型铝板的幕墙构造,在满足自然采光的前提下将建筑的原有外墙遮蔽,同时又形成了双层立面的叠加效果和虚实变化。通过对冲孔范围的控制,沿街立面引入一系列跳跃的圆弧,即丰富了视觉体验,又隐喻了船帆及打开的图书。


四五层为内衬遮阳帘的玻璃幕墙盒子。每当夜晚时分建筑照明亮起,玻璃幕墙的直白透亮和冲孔铝板的细腻朦胧,为建筑笼罩了一层圣洁的光晕。特别是图书馆置身于严肃庄重的行政办公区,随之而来的强烈对比,带来了意想不到的戏剧性和冲突性。不同的风格和跨度,出现在同一场所,宛若一场超现实的时空错位。在这个新与旧,轻盈与庄重对比之中,对比的双方反衬彼此,进而同时获得了存在的意义,形成一种对立共生关系。


室内延续以书为帆的概念,结合建筑结构关系,我们构想在共享大厅通过一条富有活力及秩序美感的轴线进行贯通,结合空间流线形成集展示,体验,休闲与一体的立体长廊,有机串联各个区域,形成一条全方位有活力的轴线。让图书馆不再是一座传统意义上宏大严肃的建筑。


从功能排布上,我们在一二层引进了与图书相关的多业态功能,希望它成为充满活力的公共空间和活动场所,希望人们在阅读时间之外也可以在这种建筑里找到停留的理由。首层空间和室外的广场以及景观有着无缝连接,室内外的通透进一步加强了其公共属性。而三层及以上,则是安静阅览,查找资讯,沉浸学习的场所,与下部的活力场所形成了鲜明对比。书山和外部的屋顶露台则为空间提供了更加宜人的空间层次和选择。


这个项目让我们再一次思考公共建筑应以何种姿态存在:让空间和细节成为手段,从目的的第一线后退,支撑起功能使用,让位于场景氛围,为市民和游客提供一个可以自由出入休憩的主题性空间,一个城市里的自在场所。这个场所既是容纳,也是归还。














项目图纸

△手绘图

△手绘图

△一层平面图

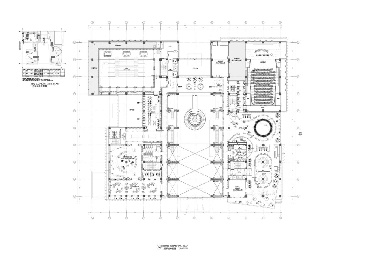
△二层平面图

△三层平面图

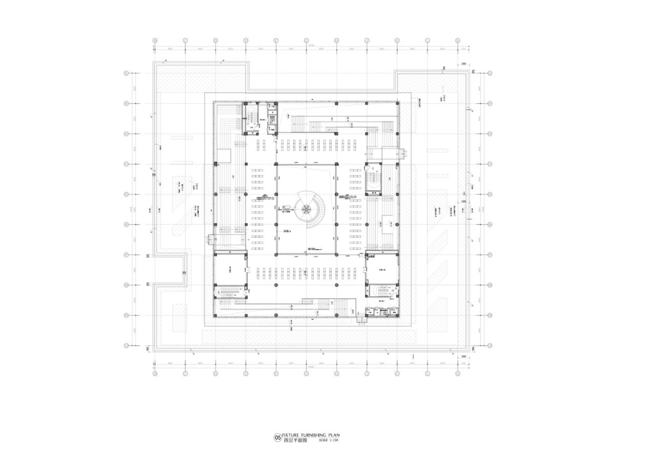
△四层平面图

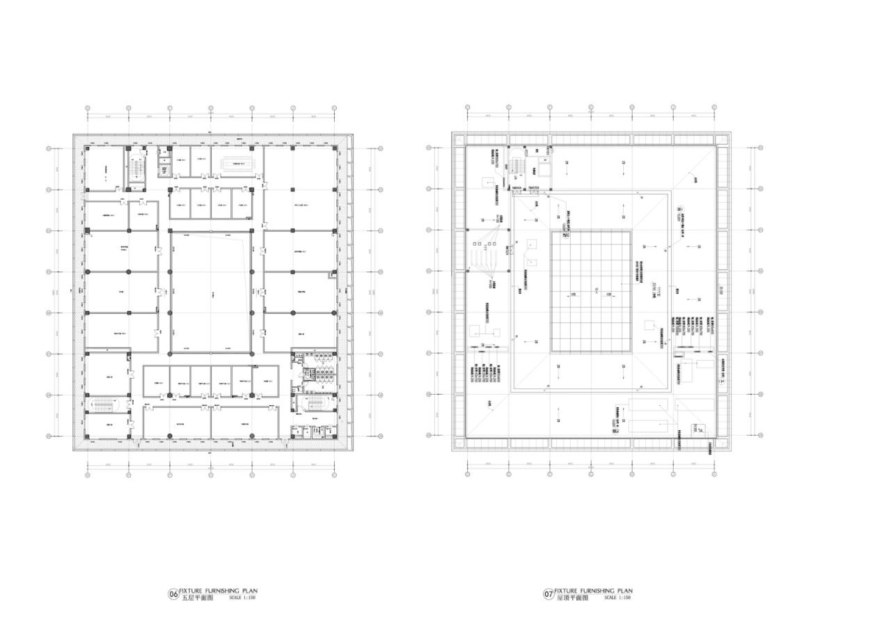
△五层平面图、屋顶平面图

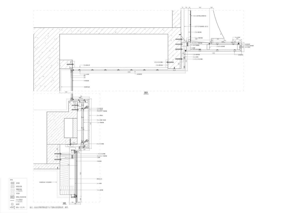
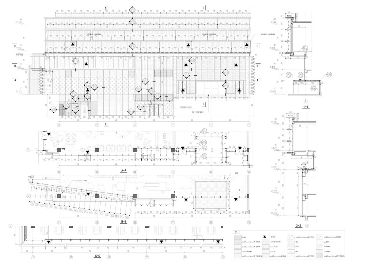
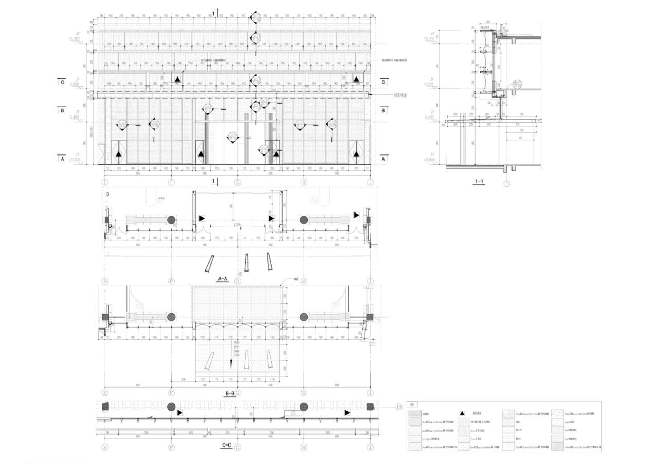
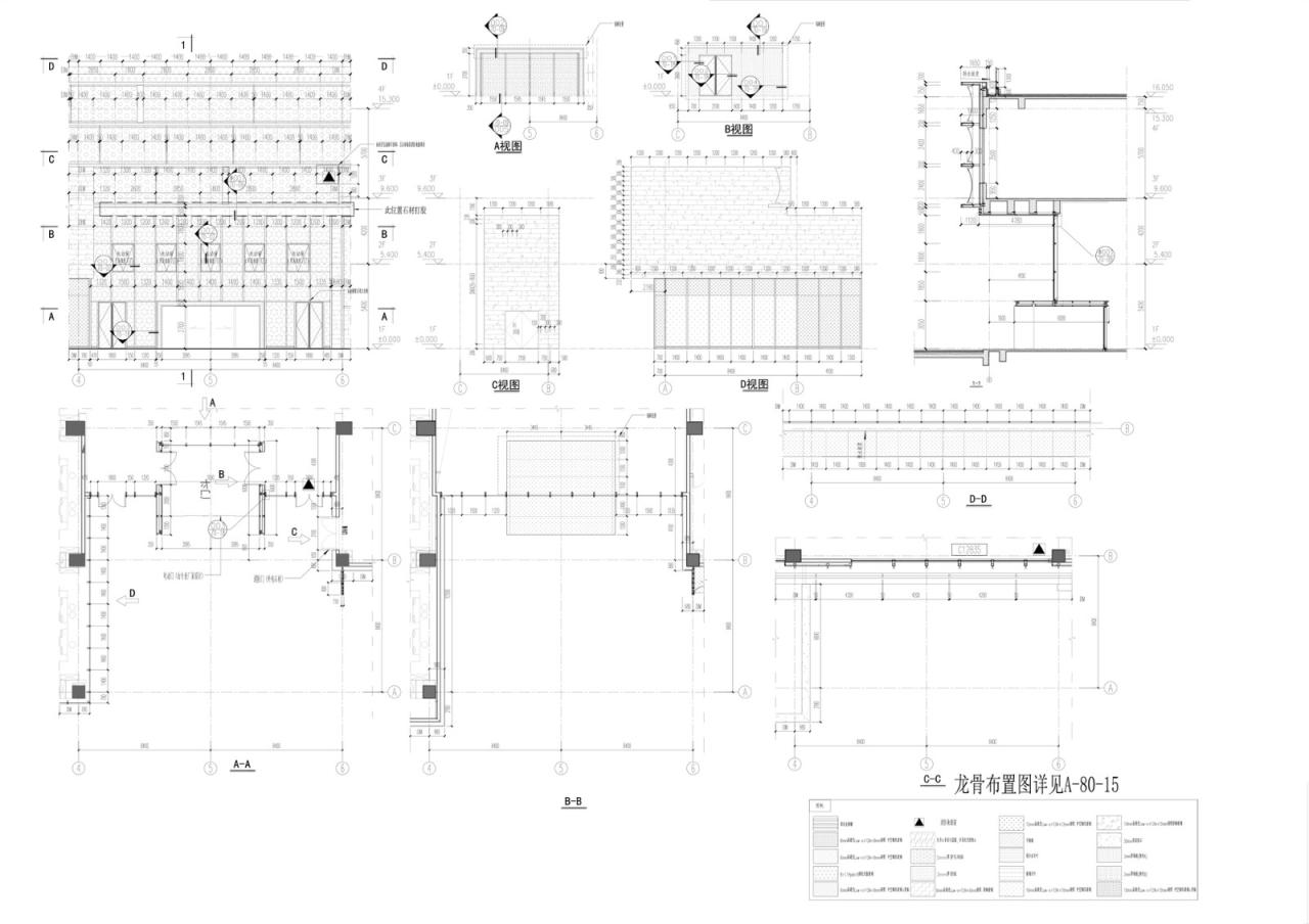
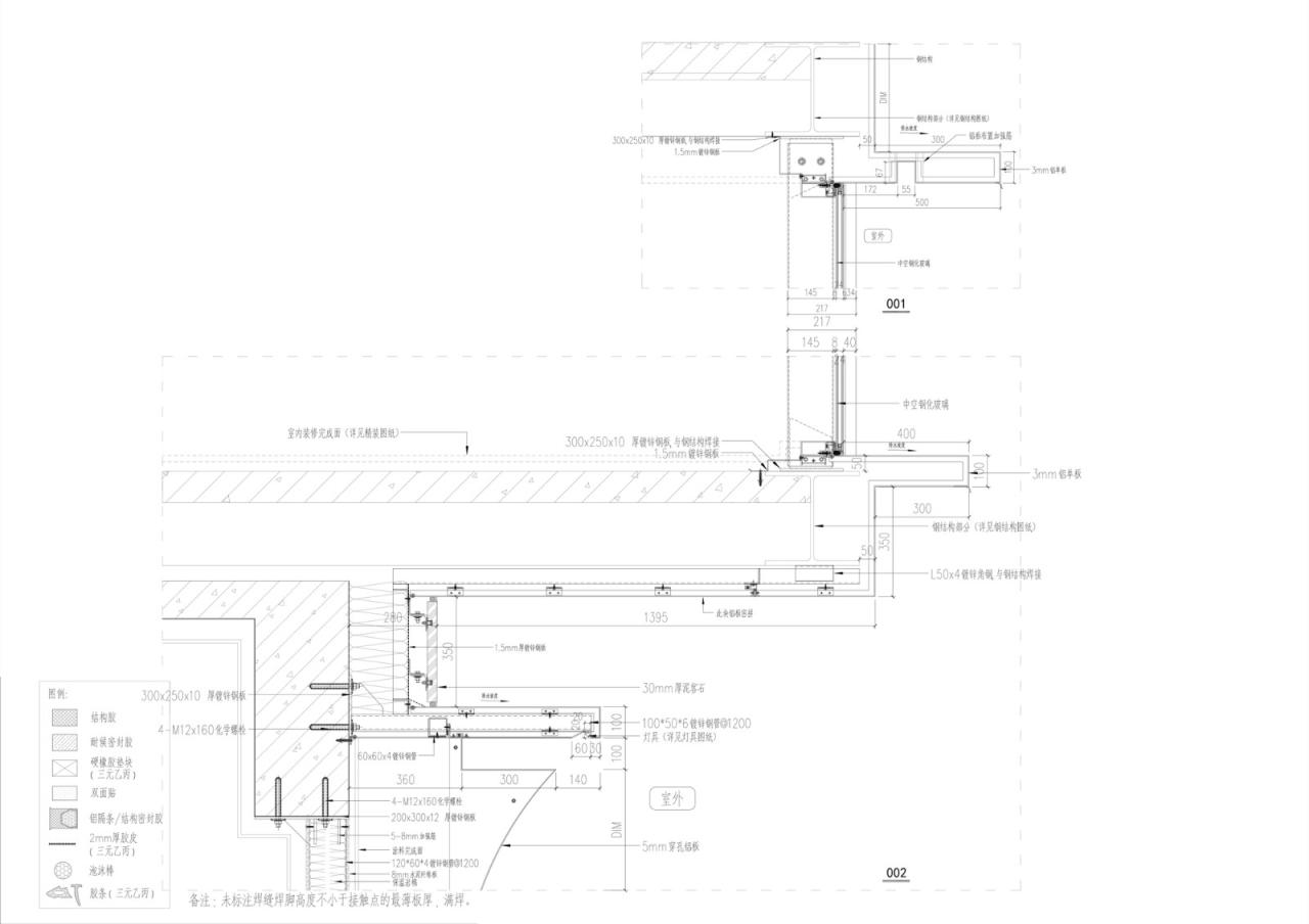
△幕墙大样图

△幕墙大样图

△幕墙大样图

△幕墙大样图

△幕墙大样图
项目信息
建筑设计:和睿建筑
面积:29974 m²
项目年份:2021
摄影师:是然建筑
厂家:Jiangsu Rainbow Aluminum Co., Ltd, Juyi Building Materials Nantong Co., Ltd, Mellow group Co., Ltd.
项目负责人:张滨
项目团队:张滨、张宇豪、黄若蓉、陈涵非、问羽琪、刘晔
设计负责人:张宇豪
深化设计:黄若蓉
委托方:东台市人民政府
室内设计:成都象上空间设计有限公司
景观设计:上海伍鼎景观设计咨询有限公司
灯光设计:上海博纵照明设计有限公司
幕墙设计:重庆长厦安基建筑设计有限公司
地点:中国,盐城

BIM建筑网





评论前必须登录!
注册