
2015 年,Dany 和 Jenny 在加拉帕戈斯的圣克里斯托瓦尔岛上创立了第一家名为 Cervecería Endémica 的手工啤酒厂。方案力求探索一种可持续性的、自然的以及地方性的设计;尽可能多地考虑岛屿在资源、能源供应和交通等方面的限制。四年的工作过后,这对夫妇也迎来了第一个孩子的降生,于是他们决定在位于巴克里索莫雷诺港城市边缘距海岸一公里的一块土地上建造自己的第一所房子。

与在啤酒厂中一样,他们寻求建造中可持续性和在地性,并尽可能对群岛的自然环境有所回应。这一地方性建筑旨在成为一个简单却高效的房屋,优先使用当地的劳动力和材料,并直面有限的预算和管理以及物流等方面的一项项重要挑战。

该项目占地约120平方米,后庭院的菜园向前方和一侧的退让延续出了绿地空间,另一侧则是由附近房屋围合出的一个长方形的空间,面向卫生间和底层的洗衣区域。房屋由竹结构(caña guadua)打造,材料是由当地建筑商在岛上收集和处理而来。为了节省成本,工作监控是远程进行的,这样的工作模式也在客户、建筑商和建筑师中建立了密切的关系。

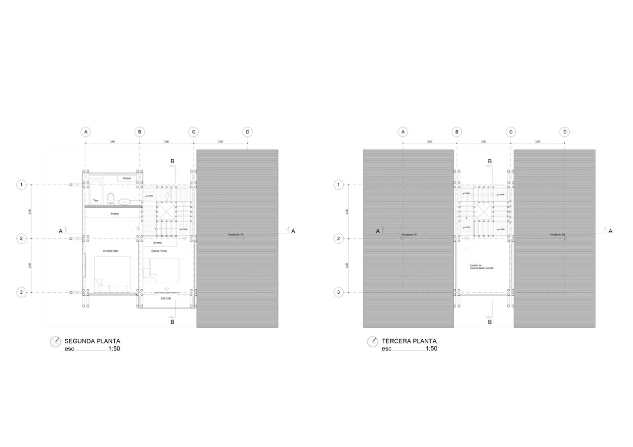
建筑共有三层,空间围绕着宽阔的楼梯井分布,楼梯通向最高层,可以一览海景,它作为项目中的生物化学性能的核心,允许热空气通过烟囱而发生对流。一楼为社交区域和会客区域,免除了爬楼梯的麻烦,方便了老年游客的使用。楼上有两个房间,一个半高的空间和一个浴室。楼层的变化使得主卧室和儿童游戏室之间建立联系,当对私密度的需求发生变化时,房间可以关闭以成为一个独立的空间。第三层是一个小的工作室,这一空间被抬升至附近建筑的高度之上,拥有了一个绝佳的面向海岸线的视野,并可以欣赏落日的余晖。

在内部,大部分家具、墙壁和隔板是由竹子或椿树材料打造,这是加拉帕戈斯群岛的一种典型木材。同样,阳台、露台和格子的外部细节用椿树材料和藤条所打造。房屋中的水是通过太阳能电池板加热,而灰水则通过植物净化系统进行处理,从而为绿地提供灌溉用水。此外,由于材料进口限制,屋面及其相应的保温层都由工业元素所制成。


值得一提的是,尽管当地材料十分易于使用,且加拉帕戈斯脆弱的生态系统更是对自然的建筑材料的使用起到了的推波助澜的作用,但这一地域性住宅只是圣克里斯托瓦尔采用竹子技术建造的第二个项目。在群岛的城市地区,大部分建筑都是用金属材料和混凝土建造的。








项目图纸

△总平面图

△一层平面图

△二-三层平面图

△立面图

△立面图

△剖面图
项目信息
建筑设计:ESEcolectivo Arquitectos
项目年份:2021
摄影师:José de la Torre
厂家:Acesco,AutoDesk,Trimble
客户:Jenny Quijozaca, Daniel Fraga
合作方:Paulina Pesantez, Lucie Daum, Leonardo Borja
地点:厄瓜多尔

BIM建筑网





评论前必须登录!
注册