
这家托儿所位于东京葛饰区的一个密集的城市居民区。一所破败的公立托儿所正在重建并转为私有,并举行了一场选择建筑师的竞赛。我们与一家申请接管该托儿所管理的公司合作提交了一份提案。竞赛要求设计考虑到学校的历史和环境以及当代社会的复杂需求。

我们的获胜方案满足了这些要求,同时还包括四个重叠的功能,以确保该设施在未来多年内保持被社区喜爱和使用:这是一个孩子们可以在其中自由玩耍的“房子”,他们的老师和家人都知道这是一个安全的环境;这是一个所有的学生都可以活动身体和发展心智的“公园”;这是一所他们可以学习感激生命和食物的价值的“学校”;这也是一个在附近的河水涨潮以及其他灾害发生期间保护社区的“堡垒”。


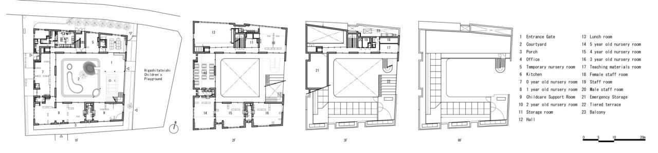
钢筋混凝土结构由可承受水压的混凝土平板和辐射状墙柱组成。十米高的建筑有三层,大部分教室位于第二层,在水平线之上3.7米高以抵御洪水。为了确保私密性和在密集住宅区减轻噪音,以及便于维护,建筑的外部三面封闭,围绕着一个庭院。C形建筑的第四面向一个相邻的公园开放。立面被划分成几部分,与周围建筑的规模相匹配。在北面,一层从建筑前的一条狭窄道路向后退让,拓宽了街道从而避免了拥挤以及早晚接送孩子的自行车和汽车高峰期事故的风险。


该设计包括了多条循环流线,包括一些在整个建筑内形成回路的路径,以使孩子们在日常的玩耍时间保持参与度,而另一些则是供紧急使用的垂直交通,火灾时可向下疏散,洪水时则向上疏散以确保安全。特殊地,螺旋坡道一直延伸到屋顶,宽阔的楼梯创造了供应急设施储藏的房间,屋顶高度根据年龄进行调整,而在二层,分层的座位可在紧急情况发生时容纳200到300人,包括学校的165名学生及员工,以及等待帮助的社区成员。


设计一所既防灾又有趣的建筑,通过毗邻的公园向社区开放,同时尊重邻居和街景,却不使其用户不断意识到它正扮演着这些多重角色,感觉像是在解决一个具有许多变量的多元方程。此外,我们试图达到设计的形式和颜色的平衡,确保建筑可以回应灾害以及长期的社会变化的灵活性,以及适于托儿所却不过分幼稚的外观-即一处结合了质量和力量的设施。



项目图纸

△基地示意图

△平面图

△立面图

△剖面图

△交通流线图

△抗灾示意图

△分析图
项目信息
建筑设计:Aisaka Architects’Atelier
面积:779 m²
项目年份:2021
摄影师:Shigeo Ogawa
地点:日本,Katsushika

BIM建筑网





评论前必须登录!
注册