2020年初,行维新筑接到倍格硅巷的邀请,将西安纹理学院一个废弃的校史馆改造成一个满足大学生日常社交,学习,毕业展,竞赛以及创业的复合空间。


▲项目前身©行维新筑
当剥离掉那些不属于它的“外皮”后,校史馆露出它原本的样子:一个及对称的盒子。一个大胆又有趣的想法在设计师的心里萌生。当更多的盒子组合在一起又会创造出如何的火花?

▲空间演变©行维新筑
在已有建筑外壳下做设计总是充满挑战,考虑到空间尺度,再考虑到项目预算受到了极大的限制。设计需要在保证实现项目功能的同时,又维持整体的概念。设立夹层,利用采光天窗,建造中庭,设计师通过一系列的手法来实现空间的最大化利用。

▲“情绪大厅”概念图©行维新筑

我们希望为年轻的学生们创造一个盒子的“情绪大厅”,在这里,他们是被信任的,可以毫无顾的展示自己。


▲“情绪大厅”©行维新筑
沿主入口处的大楼梯一侧为学生作品展台,另一侧由半透明的红色玻璃搭成的两个“盒子”。这两个红色透明盒子成了空间中唯一的颜色,包裹连接着的中央楼梯。




▲中央展台©行维新筑



▲“红色盒子”©行维新筑
设计保持了原建筑的顶部结构,阳光通过中庭挑空洒在后方的社交广场处,学生们喜欢三两聚集在这里聊天。



▲“社交广场”©行维新筑
项目图纸

▲楼层业态分布图©行维新筑

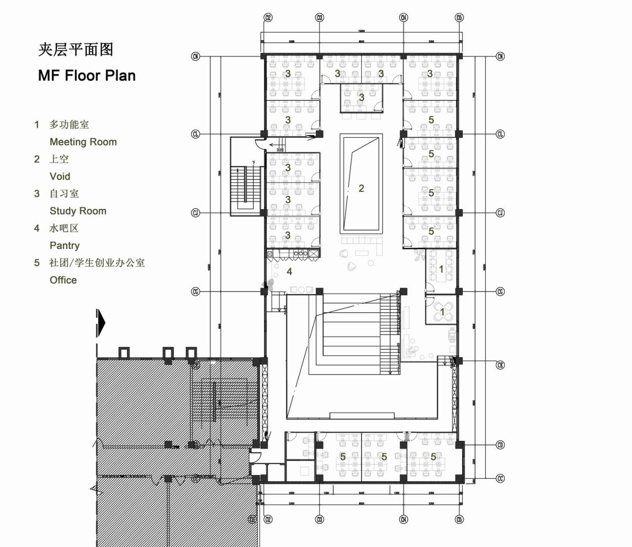
▲平面布置图©行维新筑

▲平面布置图©行维新筑
项目信息
项目名称:倍格硅巷 · 纹理洄游
设计方:行维新筑(北京)科技有限公司
联系邮箱:xwxz-office@foxmail.com
项目设计 & 完成年份:2021
主创及设计团队
主创:王震君,侯婵
团队:马梓菡,李振
项目地址:西安纹理学院
建筑面积:1500 平方米
摄影师:李胜阳

BIM建筑网





评论前必须登录!
注册