
未来的蒙克博物馆不仅仅是一个保护和展示挪威文化历史和自然遗产的设施。它还构成了一个独特的机会以发展现当代博物馆的概念,浸润在耀眼的城市角色及历史责任中,它作为一个在社群中有凝聚力的元素,其影响不仅仅对于奥斯陆,甚至辐射整个国家。

它的上升路线将前厅带顶棚的公共区域连接起来,这里用于娱乐、商业、文化及餐饮用途,包含了屋顶露台,观景台,俱乐部,这与爱德华蒙克作品的发现相平行,展现了奥斯陆市不同的历史时期。


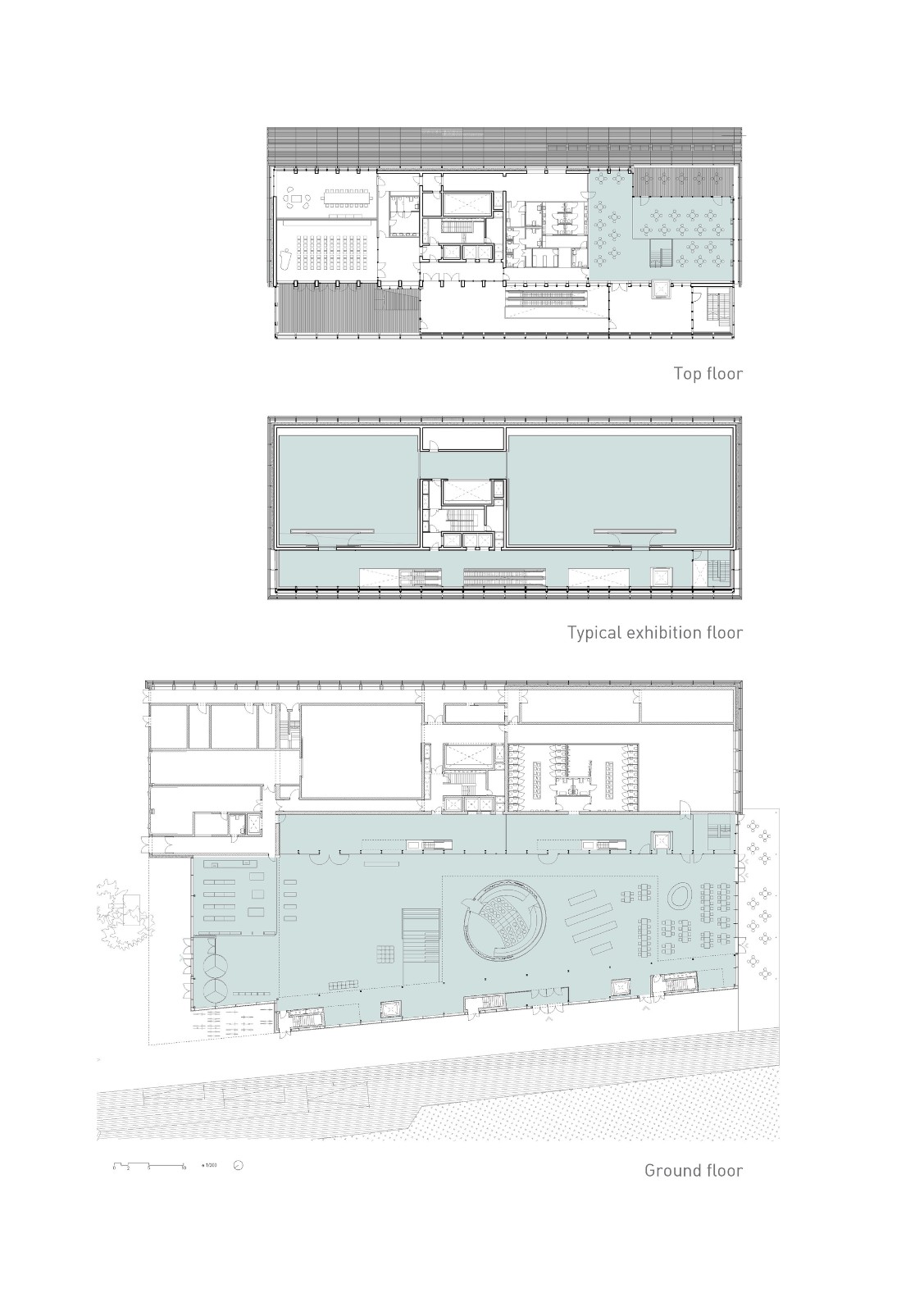
该博物馆采用非常规的竖向规划,该特点源自将公共空间或便于上攀的位置作为竖向交通的构想。然而,在这个过程中,访客可看到其他类型的设施,即餐厅、咖啡、行政办公室、科研图书馆及教育部门,这些设施造就了超出传统博物馆方案功能性的复杂程度,传统的方案为一系列的可供参观的展陈空间以及一系列的隐藏的由机构管理的配套设施。
该建筑严格致力于节能和保护自然环境,这是来自挪威社会的需求,通过整体结构,通风系统及施工配合的概念规划及相互协作,本项目与被动房的理念相符。最小化的碳足迹、可持续性、可回收性及运维构成了以其本身作为创新性及实验性对象的建造过程。


立面采用具有不同透明度的穿孔铝板制成,使建筑产生一种神秘且瞬息万变的感觉,这对奥斯陆气候的轻微波动产生回应,从而根据一天中不同的时刻营造完全不同的图像。24小时运转的巨大滑块;使用低排放回收混凝土及钢材;诸如此类的优势使本建筑在诸多不同方面成为先驱。


蒙克博物馆新馆于2021年秋季开放,将会成为一个充满活力的当代文化中心,面向不同年龄和兴趣的观众(专家、学童、游客、艺术爱好者),以期他们能被各式的展览所吸引并经常来访。其密集举行的活动将把奥斯陆的重心转移到其与峡湾的交汇点,从而通过文化及社会公众的活力重建这座城市的原始维京港口。








项目图纸

△平面图

△剖面图

△剖面图

△区位分析图

△功能分区图

△分析图

△天际线图
项目信息
建筑设计:Estudio Herreros
项目年份:2021
摄影师:Einar Aslaksen
厂家:Cembrit, Frapont, Lindner, Mutina, Vestre
建筑师:Juan Herreros, Jens Richter
客户:Oslo Kommune, Kultur- og idrettsbygg (KID)
项目经理:Gonzalo Rivas
项目团队:Beatriz Salinas, Carlos Canella, Andrea Molina, Paola Simone, Carlos Ramos, Iván Guerrero, Ana Torrecilla, Alberto Sánchez, María Franco, Raúl García, Frank Müller, Víctor Lacima, Carmen Antón, Ramón Bermúdez, Margarita Martínez, Luis Berríos-Negrón, Spencer Leaf, Verónica Meléndez, Xavier Robledo, Ricardo Robustini, Paula Vega
地方研究:LPO Arkitekter
建筑立面设计:Bollinger + Grohmann, ARUP
可持续发展:Asplan Viak
整体工程:Multiconsult, Hjellnes Consult, Brekke & Strand Akustikk
ICT:Rambøll Norge
地点:挪威

BIM建筑网





评论前必须登录!
注册