
粤港澳青年创业区项目是前海落实国家战略部署,推进大湾区青年创新创业的重要举措,肩负着打造前海首个聚焦产业加速的深港科创合作载体和具有全球影响力的大湾区青年科创平台这一历史使命。项目由前海服务集团有限公司投资建设和运营,以人工智能、大数据、生命健康、物联网、区块链、云计算、科技文创等产业为重点,是前海贯彻落实《粤港澳大湾区发展规划纲要》关于“拓展港澳青年创新创业空间”要求,助力深圳实现《中共中央国务院关于支持深圳建设中国特色社会主义先行示范区的意见》中“建成具有全球影响力的创新创业创意之都”发展目标的重要举措。


滨海公园创造了从陆地到海洋的过渡空间,城市客厅则是现代都市中必不可少的生活要素,在沿城市客厅伸展的区域内布置文化设施,引导人们由陆地行至滨海步道,正式拉开都市生活的序幕。粤港澳青年创业区作为城市客厅上重要的“连接点”,设计师希望能以开放、多元的姿态,塑造出中国传统山水画的意境,使“山峦”“陆地”“流水”三者间自然和谐的交织流动,带动城市客厅区域活力。



园区从唐长安城的规划中吸取灵感,提出新型、对外开放式“里坊制”街区模式,强调通透的轴线关系,同时提炼岭南园林布局形式,建筑成组成群地围合着一个大庭园,园内的空间像小街坊一样穿插组合,整个园区宛如岭南传统园林的现代诠释。



“地表-空中-地下”多层级立体步行体系与绿色体系紧密结合,串联整个园区。园区步行体系又嵌合于前海立体步行体系中,成为城市绿色步行体系的一个重要节点,整个园区高度开放共享。连廊漫步,眺望园区优质景观;各栋三层设置架空休闲区域,为办公人群提供休憩、交流、共享的多元空间,走出室外即到达空中步道,亦是工作亦是生活。



项目为15年租赁用地,为顺应绿色友好的开发要求,以建筑全周期可持续发展策略,采用装配式建造方法。主体结构设计为钢结构,“高技派”的建筑风格呼应了青年创业的主题与园区运营特征。同时,方案从中国传统岭南建筑中提取设计元素:骑楼、走廊、水景庭院,调节园区微气候,实现绿色生态友好节能园区。









项目图纸

△轴线总平面图

△功能分区图

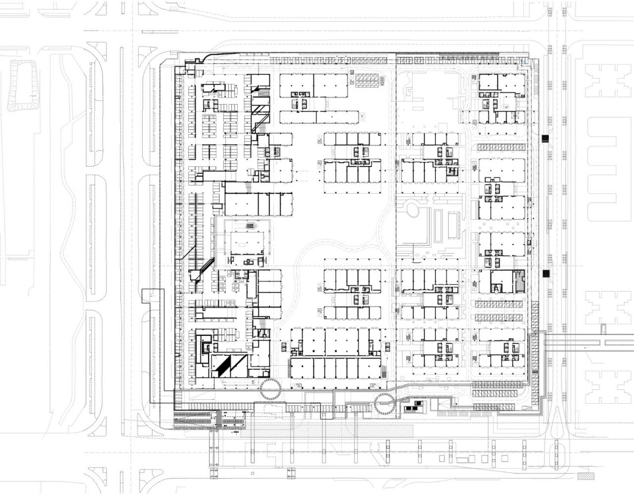
△总平面图

△一层平面图

△立面图

△剖面图

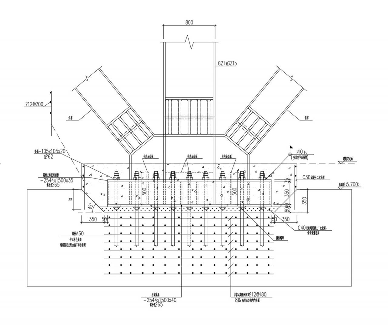
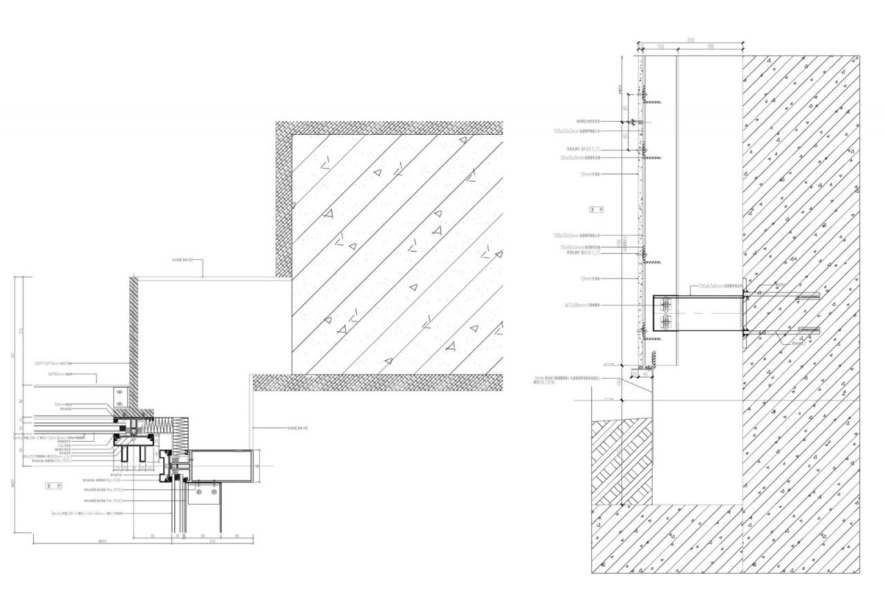
△结构大样图

△结构大样图

△结构大样图

△分析图
项目信息
建筑设计:Huayi Design, Rogers Stirk Harbour + Partners
面积:92000 m²
项目年份:2021
摄影师:张超, Canhui Luo
主创建筑师:刘小良
项目总负责:陈日飙、刘小良
建筑团队:孙永锋、张苏明、徐舟、林晓东、刘琼、苏恒博、龙颜、马国新、阳虹、王焕、张宁
结构团队:曾德光、俞歆晨、曾焕然、陈东亮、高祥、何晓熠、李名衔
给排水团队:高春艳、胡嘉伟、王珂欣、王深禾、贾怡楠
强电团队:刘相前、陈柳萤、李泽坤、聂磊
弱电团队:何雁、刘相前、柯文兵、舒杨、庄湘荣
暖通团队:文雪新、庄浩、陈倩、翟嘉聪
设计团队:Benjamin Warner, Stephen Spence, Harjinder Singh, Francis Yuen, Jasmine Yue, Alba Fernandez Arias, Juan Carpio Sánchez, Marian San Emeterio, Dan Hanna, Christophe Dembinski, Pei Yi Lin, Lu-min Guo
委托方:深圳市前海服务集团有限公司、中海地产(代建)
施工方:中建三局第二建设工程有限责任公司
景观设计:深圳奥雅设计股份有限公司
室内设计:深圳米窦设计顾问有限公司
地点:中国,深圳

BIM建筑网





评论前必须登录!
注册