
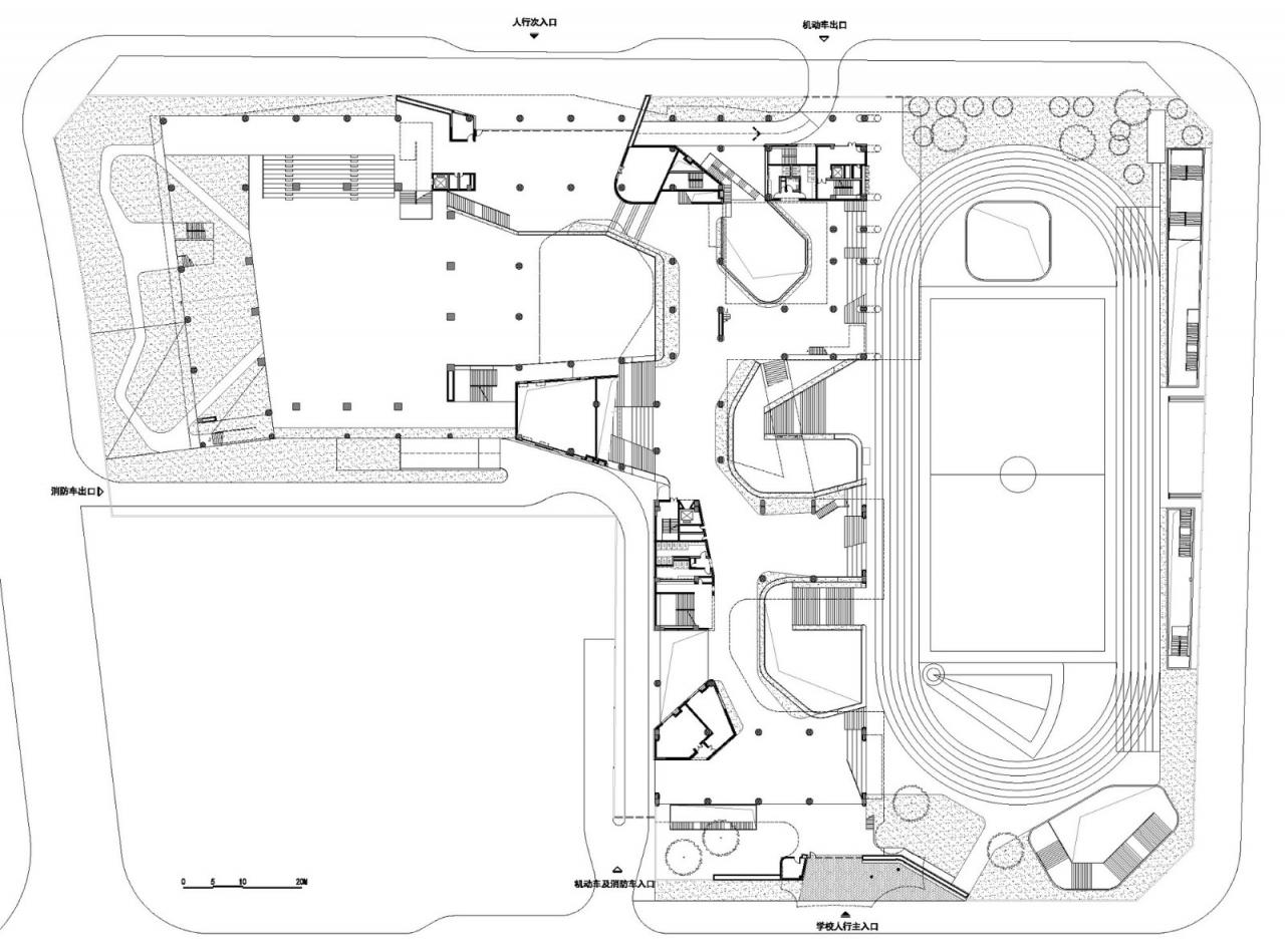
项目背景深圳是一个经历四十年高速发展的年轻城市,与此伴随而来的是当前可建设用地紧缺;同时,新增加的人口对教育资源的需求更是加剧了教育用地的紧张程度——自然而然,高密度校园成为一个新的热门话题。上星学校位于深圳市宝安区新桥街道,用地面积21171.6平米。因所在片区巨大的学位缺口,项目需将原规划的36班九年制学校扩容至48班,总建筑面积增至48269平米,容积率达到1.79。此外,基地还受到一些外部条件约束:刀把型用地;西侧需退让河道红线;北侧现有道路跨入用地红线;现状嘈杂的农批市场导致北侧不适合做礼仪性主入口;南侧超高层住宅对项目日照的影响。这些因素使得本次设计面临更多限制。


应对九年制学校分区需求的组织策略九年制学校是用地紧张条件下的特殊产物。初中生、小学生在年龄、体格以及课程设置上差异较大,此类学校通常都要求:一,明确中、小学分区,普通教学区之间流线互不干扰;二,在使用共享部分时不干扰普通教学区。综合其他因素,我们将功能重组成五个组团:小学部、初中部、艺体中心、综合服务中心以及教工宿舍。小学部和初中部经由综合服务中心联系,共享综合服务中心及地下一层的艺体中心;宿舍独立管理,与教学区互不干扰。组团之间既分又合的空间模式,满足了九年制学校的分区需求,也利于学校以后多元化使用(如校中校、分时共享等)。

运动场地数量的最大化我们认为,高密度校园不仅仅是建筑面积的简单增加,更是不同大小、数量以及其它物理属性的空间之间的有效复合。目前正在进行的校园扩容及新教学模式的尝试,都要求有更多的运动场地,在用地面积不增反减的前提下,这就对设计的复合度提出了更高的要求。显然,过去将各种运动场地平铺在首层的布局模式已不再适用,于是,我们将目光投向了更高的“地面”——屋顶。

运动场地设置在屋顶,需要解决场地尺寸及噪音干扰。我们利用宿舍所在的综合服务中心(宿舍平面为内廊,屋顶两侧悬挑)的屋顶,不仅获得足够大的平面,也减少了运动场地对主要教学区的影响。整个建筑东侧悬挑3~9米,在总平面上与操场有局部重叠。在首层满足了250米操场的同时,二层及以上也拥有最大平面机会。

多层次的、就近的、日常的活动场地
结合常规走廊,我们将其局部放大成平台,这样形成了一个多层次的活动平台系统:既满足学生课间就近户外休息的需求,同时为互动式教学提供了灵活的场地。此外,建筑西侧半地下风雨操场的屋顶自然地形成了小学低年级的活动大平台。

大架空与小尺度首层架空,将整个建筑漂浮于场地之上。在回应城市底部环境的同时,提供了遮风避雨的活动场地。我们比较“贪心”,既想要“大大”的架空,也希望有“小小”的尺度。于是我们在6.3米高的架空层里置入了一些3~4米的小房子,使小朋友们在大架空里的感受依然是亲切的。


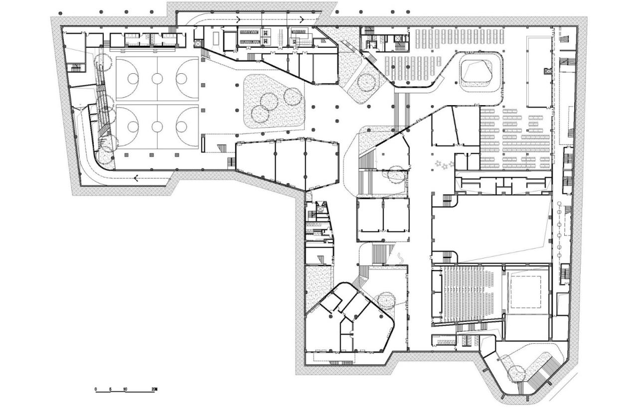
多孔空间结构下的优质甲方希望操场放在首层,这样“在街道上就能看见操场”——我们认为这是一个朴素的城市共享意识,同时也区别于当时流行的抬升操场的做法,有其独立的思考,是值得肯定以及付出时间和精力去尝试的。为此我们要有效地组织和利用约15000平米的负一层大平面,同时满足建筑的采光通风以及消防规范的要求。我们采用了一个多孔空间结构——在水平和垂直方向互相渗透,通过架空、庭院、采光井引入了光和风,很好地适应了南方气候,同时提供了消防上的安全疏散区域。这样,这些地下空间拥有了与地面相仿的品质。



漫游系统
作为一个附加的交通系统,这是在一个相对均质的常规交通里介入的异质元素,不仅解决公共功能的联系,同时塑造新的空间氛围。它的存在激发了新的路径,让一个常规的校园空间有了漫游的体验。在地面建筑的几何中心(即综合服务中心),或通过放大的室外楼梯,或利用房间的屋顶,或是风雨连廊,共同建立起这条连续的室外路径,从负一层至五层串联起食堂、操场、图书馆、屋顶球场、屋顶花园等各个标高上的活力点。


“留白”——用出来的多意空间使用需求是不断发展变化的,设计师能做的是留下一些弹性空间,为学校未来使用保留一定余地,让使用者有更多机会持续参与完善校园功能的过程,并赋予这些空间自己的定义:既是走廊也是画廊;既是大台阶也是休憩平台和室外小课堂;既是室外休息平台也是课后舞蹈区;既是报告厅的侧舞台又是羽毛球场……上星学校投入使用后,这些设计中的留白悄悄地成了灵活的多意空间。


结语上星学校是综合策略下形成的一个结果,类似甚至更高密度的校园以后在深圳将会是常态。高容积率的建筑终有各种各样的设计手法来实现,作为建筑师,我们的核心追求依然是建筑品质,以建筑为媒介,去关注使用者的切身感受。








项目图纸

△街区总平面图

△一层平面图

△二层平面图

△三层平面图

△四层平面图

△五层平面图

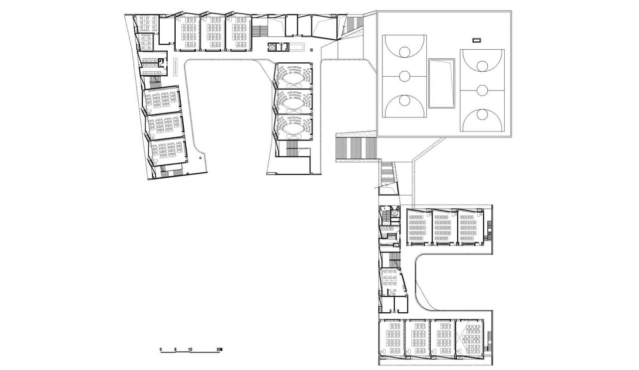
△负一层平面图

△负二层平面图

△概念剖面图

△学校游园图

△设计生成图

△功能分析图
项目信息
建筑设计:5TH ARCHITECTS
面积:48269 m²
项目年份:2020
摄影师:张超, Zhiyi Huang
厂家:东莞市北航曲面工程玻璃有限公司, 华特尔环保涂料有限公司, 深圳市风和同创工程有限公司
主创建筑师:黄志毅、张震
设计团队:李颖、欧阳祎、吴芮豪、卢虹绵、林艺、刘嫣然、彭钰辰、张晶、戎宇锐、徐玺贽、张圣媛、黄山、张守亮、向肖雨
委托方:深圳市宝安区教育局
结构工程:筑博设计股份有限公司
景观设计:深圳本末度景观设计有限公司
施工方:深圳市万科城市建设管理有限公司(代建单位)
地点:中国,深圳

BIM建筑网





评论前必须登录!
注册