
MTL 是一座在建筑系统上重点下功夫的办公建筑。业主希望他的业务体能反映在这栋 4 层楼高的拥有 3000 平方米的功能区的建筑中。业主另一个兴趣点,则是他希望这座办公楼能给人带来一种亲切感。


起初,该场地是一片空地,有很多树木。实地考察后,建筑师提出了设计理念,即人们对建筑的观感应该与建造前保持一致。


瑕疵性是设计的一个重要关键。建筑通过允许鸟类或杂草等其他生物在里面生长和生活,使建筑成为自然的一部分。



另外,流通空间和功能分区之间的界限是模糊的。每个部分之间没有明确的分隔,而是一种打散了的边界,可以根据功能自由调整空间。



对于立面,我们使用了 50,000 块砖来创建一个自组织立面,让自然控制砖的外观,成为建筑的特征。




















项目图纸

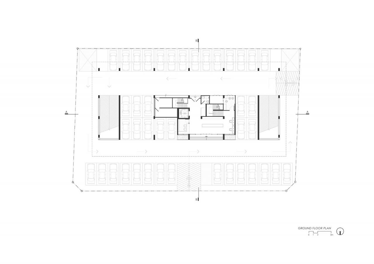
△一层平面图

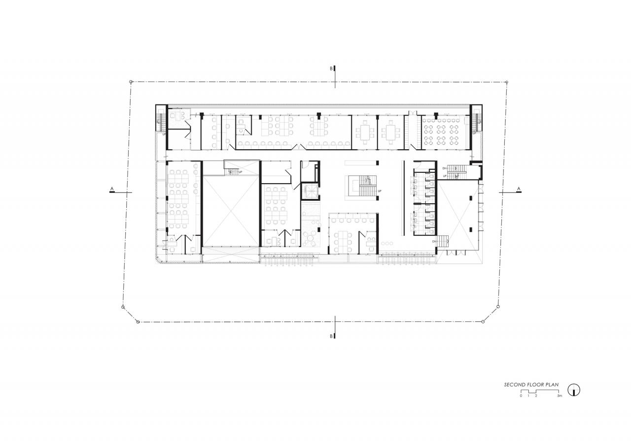
△二层平面图

△三层平面图

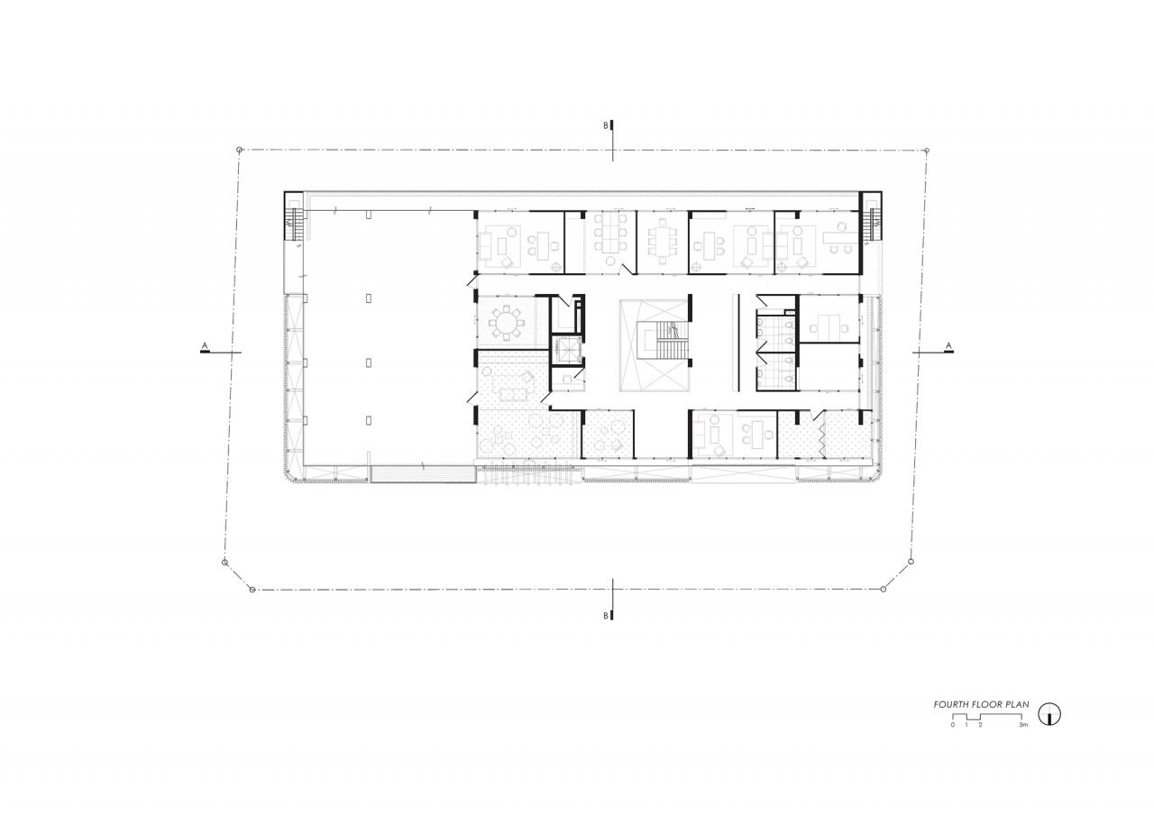
△四层平面图

△立面图

△立面图

△立面图

△剖面图

△剖面图

△分析图

△分析图

△日照通风图
项目信息
建筑设计:Junsekino Architect and Design
面积:3836m²
项目年份:2021
摄影师:Spaceshift Studio
厂家:BPK brick,Bio Wood,L and E lighting,Lamptitude,M.V.P. Four Star
地点:泰国,Bangkok
微信公众号:xuebim
关注建筑行业BIM发展、研究建筑新技术,汇集建筑前沿信息!
← 微信扫一扫,关注我们+

BIM建筑网





评论前必须登录!
注册