
在波哥大南部的博萨市(Bosa),幼儿园和社会福利中心“玩乐时光”作为重要的项目,已成为该市新的教育中心。

该项目坐落于一个细长场地的角落,呈现出一种非连续的形态。小广场将幼儿园与城市肌理相连,并作为花园的主要入口对社区开放。同时,广场也作为学习和会议中心融入到环境之中。

建筑被放置在交通流线的中轴上,横向穿过幼儿园和社会福利中心所在的街区。这样的结构设计在空间上连接并阐明了进行培训活动的学习空间。

交通流线在一系列的庭院、露台和延展空间中充分演绎。建筑之间用通高空间、室内阳台、坡道和楼梯互相连接,从而最大化使用者和机构教员之间的交流与控制。这样的设计使得建筑整体内形成微景观,增加了课程设置的多样性,并借此实现不同的教学用途。

幼儿园和社会福利中心在前两个阶段被先行开发建造。大部分公共空间则被放置在第三栋建筑中,以确保这些功能与主入口直接相连。同时,私人空间如卧室等则与公园相连。


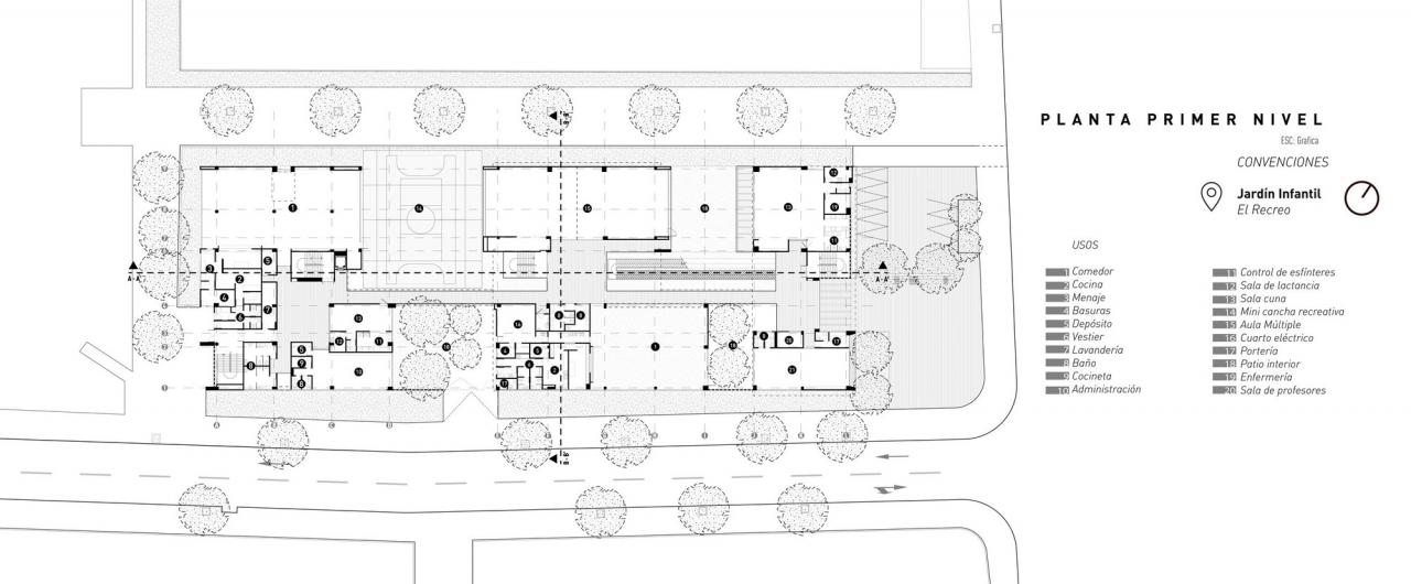
公共空间与基本的教室、厨房、餐厅等被布置在首层,向庭院和公共空间开放的位置。这样一来,这些区域便可以用于各种课外活动,从而支持和加强中心与社区之间的关系。托儿所与学步车能穿过的地方同样位于该层,因为使用者的年龄更小,因此也是优先疏散的区域。


基本的教室等教学环境被灵活地排布在开放的二层空间。在这里,光线和可透光材料整合出了空间的连续性。滑动门和折叠门使得每个区域都能与周围的空间流动起来,以增加利用率和与外部环境的联系。哥伦比亚广播公司的卧室与最大的空间相对应,放置在三楼的训练中心,与项目西侧的公园直接相连。


建筑的结构设计简单而可靠,并使用当地的简单技术与材料,以保证其功能与长久的稳定性。

“玩乐时光”幼儿园力求以连续和慷慨的方式积极呼应城市文脉,为所在城市的结构做出贡献。该设计通过与户外区域和社会区域灵活的连接,促进不同规模的活动与合作教学,从而提升学习效果。







项目图纸

△总平面图

△一层平面图

△二层平面图

△三层平面图

△四层平面图

△立面图

△立面图

△剖面图

△剖面图

△爆炸图

△流线分析图

△分析图

△分析图

△结构大样图
项目信息
建筑师:DARP
面积:5013 m²
项目年份:2019
摄影师:Mauricio Carvajal, Sergio Gómez
厂家:Hunter Douglas, Alfa, Argos, Gerflor, Ladrillera Santafé, Louis Poulsen
主创建筑师:Jaime Cabal, Jorge Buitrago
设计团队:Juan Portillo, Milena Jaramillo, David Carmona, José David Gómez, Astrid González, Pamela Pérez, Daniel Veenstra, Leonardo Correa, Jenyfer Botero, Sebastián Morillo
客户:Secretaria de Integración Social
工程师:CNI Ingenieros
景观设计:DARP
合作方:SISTEC Sistemas Integrados De Energía Y Tecnología S A S.
地点:哥伦比亚

BIM建筑网





评论前必须登录!
注册